Bildegalleri

Nyere, delikat og usjenert hytte på Vegglifjell med stort tomt på 1,7 mål.
Klassisk og moderne familiehytte med høyfjellsidyll og nærhet til tur-/skiløyper | 5 sov | 2 bad og vaskerom | Badstue
- Omkostninger
- 206 840 kr
- Totalpris
- 7 696 840 kr
- Kommunale avg.
- 14 930 kr per år
- Formuesverdi
- 1 845 000 kr
Nøkkelinfo
- Beliggenhet
- På fjellet
- Boligtype
- Hytte
- Eieform
- Eier (Selveier)
- Internt bruksareal
- 137 m² (BRA-i)
- Bruksareal
- 160 m²
- Eksternt bruksareal
- 23 m² (BRA-e)
- Balkong/Terrasse
- 63 m² (TBA)
- Tomteareal
- 1 721 m² (eiet)
- Byggeår
- 2017
- Soverom
- 5
- Rom
- 6
- Energimerking
- C - Gul
Fasiliteter
Visning
Husk å lese komplett salgsoppgave før visning. Bestill komplett, utskriftsvennlig salgsoppgave.
VisningspåmeldingOm boligen
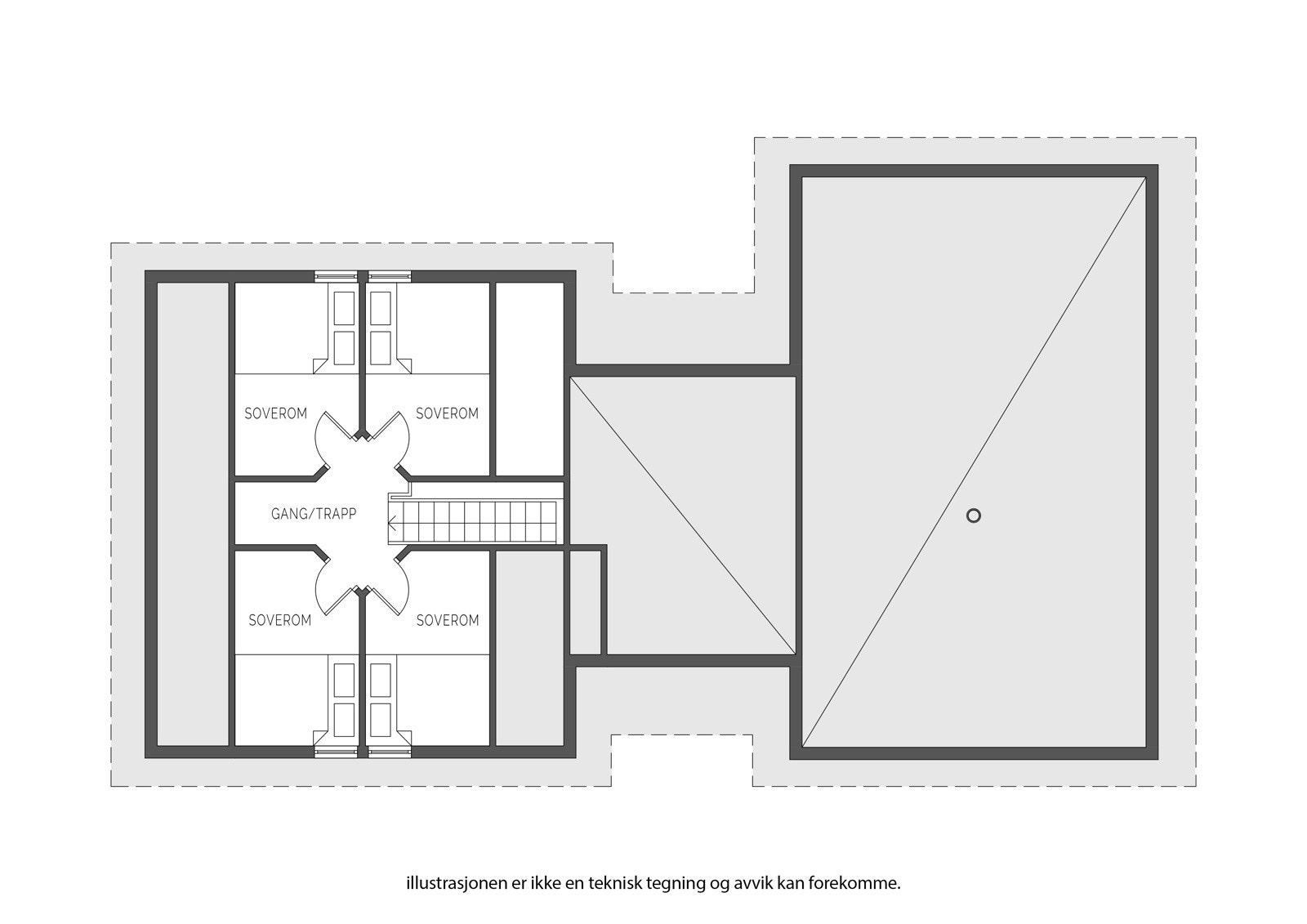
Velkommen til en påkostet og velholdt hytte på Vorset, sentralt i naturskjønne Vegglifjell. Hytten har lys og luftig stue med åpen kjøkkenløsning fra Uvdal Snekkerverksted, store vindusflater, stemningsfull peis og egen badstue. Fem soverom fordelt på to etasjer gir gode overnattingsmuligheter, og badene har delikat innredning med praktiske løsninger. Eget vaskerom, stor terrasse på 63 m² og frittstående bod gir rom for både avslapning og aktivitet.
Boligen fremstår som svært velholdt, moderne - likevell en klassisk stil. Idyllisk og privat beliggenhet, alene og adskilt fra øvrige hytter. Her kan du nyte sommer- og vinterdager i fred og ro, med umiddelbar tilgang til tur- og skiløyper, badeplasser og servicetilbud i Veggli sentrum - perfekt kombinasjon av høyfjellsidyll og komfort.
Salgsoppgaven beskriver vesentlig og lovpålagt informasjon om eiendommen
Se komplett salgsoppgaveNyttige lenker
Nærområdet

PrivatMegleren Drammen
Annonseinformasjon
| FINN-kode | 422188745 |
|---|---|
| Sist endret | 24. jan. 2026 03:09 |
| Referanse | 83250153 |
Annonsene kan være mangelfulle i forhold til lovpålagt opplysningsplikt. Før bindende avtale inngås oppfordres interessenter til å innhente komplett informasjon fra meglerforetaket, selger eller utleier.




































































