Bildegalleri

EiendomsMegler 1 v/Rune Johansen har gleden av å presentere "Skaugumbu" !
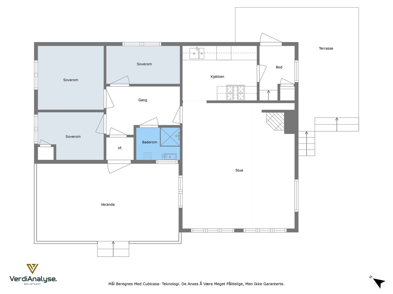
Flott hytte på fjellet i idylliske omgivelser. 3 soverom, wc og dusj. Aggregat.
Prisantydning980 000 kr
- Omkostninger
- 25 590 kr
- Totalpris
- 1 005 590 kr
- Kommunale avg.
- 4 160 kr per år
- Formuesverdi
- 259 466 kr
Nøkkelinfo
- Boligtype
- Hytte
- Eieform
- Eier (Selveier)
- Internt bruksareal
- 65 m² (BRA-i)
- Bruksareal
- 65 m²
- Tomteareal
- 1 300 m² (eiet)
- Byggeår
- 1980
- Soverom
- 3
- Rom
- 4
- Energimerking
- G - Oransje
Visning
Ta kontakt for å avtale visning.Husk å lese komplett salgsoppgave før visning. Bestill komplett, utskriftsvennlig salgsoppgave.
VisningspåmeldingOm boligen
EiendomsMegler 1 v/Rune Johansen har gleden av å presentere hytte i Osmarka!
Drømmen om enkelhet og naturnær ro - din egen fjellhytte i Osmarka
Denne sjarmerende hytta ligger idyllisk til på en solrik naturtomt i vakre Osmarka, omgitt av skog, fjell og stillhet- perfekt for deg som søker det enkle hyttelivet, med nærhet til naturen og frihet fra hverdagens mas. Enten du drømmer om lange turer i fjellheimen, bålkos under stjernehimmelen eller bare vil nyte stillheten, er dette stedet for deg..
Hytta inneholder:
Vindfang, entré, wc, stue, kjøkken, gang og 3 soverom.
Velkommen på visning!
KONTAKT MEGLER FOR VEIBESKRIVELSE. Ca. 20 minutters gange fra p-plass. .
Drømmen om enkelhet og naturnær ro - din egen fjellhytte i Osmarka
Denne sjarmerende hytta ligger idyllisk til på en solrik naturtomt i vakre Osmarka, omgitt av skog, fjell og stillhet- perfekt for deg som søker det enkle hyttelivet, med nærhet til naturen og frihet fra hverdagens mas. Enten du drømmer om lange turer i fjellheimen, bålkos under stjernehimmelen eller bare vil nyte stillheten, er dette stedet for deg..
Hytta inneholder:
Vindfang, entré, wc, stue, kjøkken, gang og 3 soverom.
Velkommen på visning!
KONTAKT MEGLER FOR VEIBESKRIVELSE. Ca. 20 minutters gange fra p-plass. .
NB: Knappen for å vise hele beskrivelsen har kun en visuell effekt.
NB: Knappen for å vise hele beskrivelsen har kun en visuell effekt.
Salgsoppgaven beskriver vesentlig og lovpålagt informasjon om eiendommen
Se komplett salgsoppgaveNyttige lenker
Nærområdet
EiendomsMegler 1 Kristiansund
Vi loser deg trygt gjennom hele boligsalget
Annonseinformasjon
| FINN-kode | 422015222 |
|---|---|
| Sist endret | 28. feb. 2026 09:01 |
| Referanse | 17250313 |
Annonsene kan være mangelfulle i forhold til lovpålagt opplysningsplikt. Før bindende avtale inngås oppfordres interessenter til å innhente komplett informasjon fra meglerforetaket, selger eller utleier.





















