Bildegalleri

Sjarmerende hytte over en og en halv etasje på Gammelskolla i Ringsakerfjellet, opprinnelig oppført i 1937.
Hytteidyll på Gammelskolla i naturskjønne omgivelser- laftet hytte med tilbygg - uthus med utedo
Prisantydning850 000 kr
- Omkostninger
- 25 340 kr
- Totalpris
- 875 340 kr
- Kommunale avg.
- 2 042 kr per år
- Eiendomsskatt
- 2 240 kr per år
- Verditakst
- 850 000 kr
Nøkkelinfo
- Beliggenhet
- På fjellet
- Boligtype
- Hytte
- Eieform
- Annet
- Internt bruksareal
- 48 m² (BRA-i)
- Bruksareal
- 48 m²
- Tomteareal
- 1 000 m² (festet)
- Festeavgift
- 5 980 kr
- Byggeår
- 1937
- Soverom
- 2
- Energimerking
- G - Oransje
- Overtakelse
- Etter nærmere avtale med selger. Vær vennlig å angi ønsket overtagelsesdato i vedlagte budskjema.
Fasiliteter
Balkong/Terrasse
Barnevennlig
Bilvei frem
Peis/Ildsted
Bademulighet
Fiskemulighet
Turterreng
Visning
Ønsker du å delta på visningen ber vi deg melde deg på slik at vi vet at du kommer. Da kan vi bistå alle best mulig og gi deg tiden du trenger på visningen. Visningen avholdes bare dersom det er påmeldte. Ta gjerne kontakt med megler før visning hvis du har noen spørsmål. Velkommen!
VisningspåmeldingOm boligen
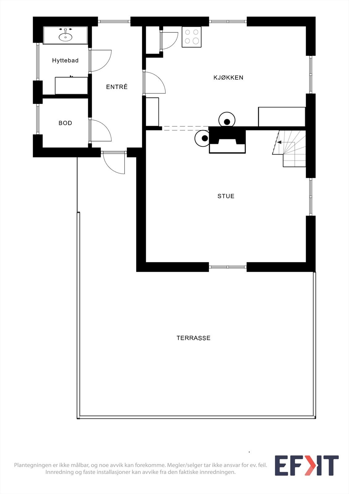
Velkommen til denne sjarmerende hytta i 1,5 etasje på Gammelskolla, opprinnelig oppført i 1937, med tilbygg fra 2000 med gang, hyttebad og bod. Her får du vegger i laftet tømmer som gir varme og lune rom og den ekte hyttefølelsen. Bilveg helt frem til hytta året rundt, skiløypa rett i nærheten og gode jakt-og fiskemuligheter i området. Kjeller under kjøkkenet. Her får du ekte hyttesjarm i naturskjønne omgivelser, perfekt for både vinter - og sommerbruk. 1. etasje inneholder entrè, hyttebad, kjøkken, stue og bod. 2. etasje inneholder gang m/trapp, 2 soverom. Murt åpen peis og vedovn på stue. Vedovn på kjøkken og i 2. etasje. Taktekking fra 2001 og 2007, vindu på kjøkken og soverom mot øst i 2005. Uthus med utedo. Festet tomt, muligheter for innløsning i 2034.
NB: Knappen for å vise hele beskrivelsen har kun en visuell effekt.
NB: Knappen for å vise hele beskrivelsen har kun en visuell effekt.
Salgsoppgaven beskriver vesentlig og lovpålagt informasjon om eiendommen
Se komplett salgsoppgaveNyttige lenker
Nærområdet
EiendomsMegler 1 Brumunddal
Vi loser deg trygt gjennom hele boligsalget
Annonsene kan være mangelfulle i forhold til lovpålagt opplysningsplikt. Før bindende avtale inngås oppfordres interessenter til å innhente komplett informasjon fra meglerforetaket, selger eller utleier.








































