Bildegalleri

Velkommen til Toppagrenda 119!
Koselig, varm hytte med ekstra isolasjon. Flott utsikt. Nytt alpintanlegg i Valsfjell klar til jul.
Prisantydning4 200 000 kr
- Omkostninger
- 106 350 kr
- Totalpris
- 4 306 350 kr
- Kommunale avg.
- 16 865 kr per år
- Eiendomsskatt
- 6 048 kr per år
- Formuesverdi
- 1 333 704 kr
Nøkkelinfo
- Beliggenhet
- På fjellet
- Boligtype
- Hytte
- Eieform
- Eier (Selveier)
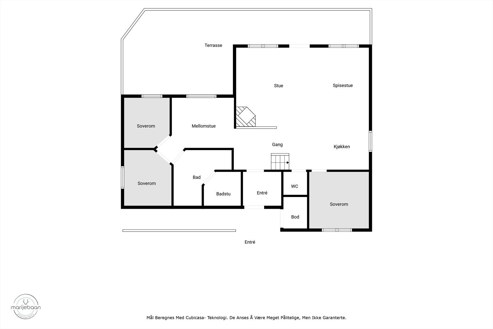
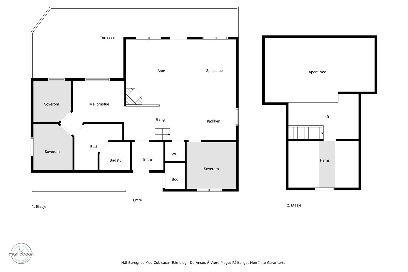
- Internt bruksareal
- 82 m² (BRA-i)
- Bruksareal
- 84 m²
- Eksternt bruksareal
- 2 m² (BRA-e)
- Balkong/Terrasse
- 46 m² (TBA)
- Tomteareal
- 1 328 m² (eiet)
- Byggeår
- 2004
- Soverom
- 3
- Energimerking
- E - Oransje
- Overtakelse
- Overtakelse etter avtale med selger. Dersom budgiver har ønske/krav knyttet til overtakelsestidspunkt, skal dette angis i kjøpetilbudet.
Fasiliteter
Balkong/Terrasse
Barnevennlig
Bilvei frem
Garasje/P-plass
Peis/Ildsted
Rolig
Utsikt
Fiskemulighet
Innlagt strøm
Offentlig vann/kloakk
Turterreng
Visning
Ved annonsert visning er det viktig at du melder deg på visningen ved å bruke visningspåmeldingsknappen eller kontakter megler. Annonserte visninger hvor det ikke er noen påmeldte innen kl. 14.00 dagen før visningsdagen vil ikke bli avholdt.
For visninger utover dette, ta direkte kontakt med megler.
Husk å lese komplett salgsoppgave før visning. Bestill komplett, utskriftsvennlig salgsoppgave.
VisningspåmeldingOm boligen
Velkommen til Toppgrenda 119!
En lun og koselig fjellhytte beliggende i naturskjønne omgivelser, med nydelig panoramautsikt over Gålåvatnet og Valsfjellet med nytt alpinanlegg (jul 25). Her får du en fredelig tilværelse med høy trivselsfaktor, enten du søker ro og avslapning, aktive helger eller kvalitetstid med familien.
Hytta har en gjennomtenkt og praktisk planløsning med åpen stue- og kjøkkenløsning, flere soverom, god lagringsplass og fine detaljer som gir ekte hyttestemning. Stuen er lys og romslig, med store vinduer som slipper inn utsikten og naturen. Peisen gir varme og hygge.
Ute venter en solrik terrasse hvor du kan nyte morgensolen eller se sola gå ned bak fjellene. Tomten er usjenert og barnevennlig, med kort avstand til både skiløyper, turstier og flotte naturområder.
En lun og koselig fjellhytte beliggende i naturskjønne omgivelser, med nydelig panoramautsikt over Gålåvatnet og Valsfjellet med nytt alpinanlegg (jul 25). Her får du en fredelig tilværelse med høy trivselsfaktor, enten du søker ro og avslapning, aktive helger eller kvalitetstid med familien.
Hytta har en gjennomtenkt og praktisk planløsning med åpen stue- og kjøkkenløsning, flere soverom, god lagringsplass og fine detaljer som gir ekte hyttestemning. Stuen er lys og romslig, med store vinduer som slipper inn utsikten og naturen. Peisen gir varme og hygge.
Ute venter en solrik terrasse hvor du kan nyte morgensolen eller se sola gå ned bak fjellene. Tomten er usjenert og barnevennlig, med kort avstand til både skiløyper, turstier og flotte naturområder.
NB: Knappen for å vise hele beskrivelsen har kun en visuell effekt.
NB: Knappen for å vise hele beskrivelsen har kun en visuell effekt.
Salgsoppgaven beskriver vesentlig og lovpålagt informasjon om eiendommen
Se komplett salgsoppgaveNærområdet
Aktiv Innlandet
Annonseinformasjon
| FINN-kode | 421408117 |
|---|---|
| Sist endret | 13. nov. 2025 08:45 |
| Referanse | 1214250105 |
Annonsene kan være mangelfulle i forhold til lovpålagt opplysningsplikt. Før bindende avtale inngås oppfordres interessenter til å innhente komplett informasjon fra meglerforetaket, selger eller utleier.












































