Bildegalleri

Eksklusiv H-hytte med oppstue i Varden med fantastisk utsikt mot Kvitfjell vest og alpinbakken
- Omkostninger
- 92 500 kr
- Totalpris
- 14 802 500 kr
Nøkkelinfo
- Beliggenhet
- På fjellet
- Boligtype
- Hytte
- Eieform
- Eier (Selveier)
- Internt bruksareal
- 192 m² (BRA-i)
- Bruksareal
- 192 m²
- Balkong/Terrasse
- 87 m² (TBA)
- Tomteareal
- 1 110 m² (eiet)
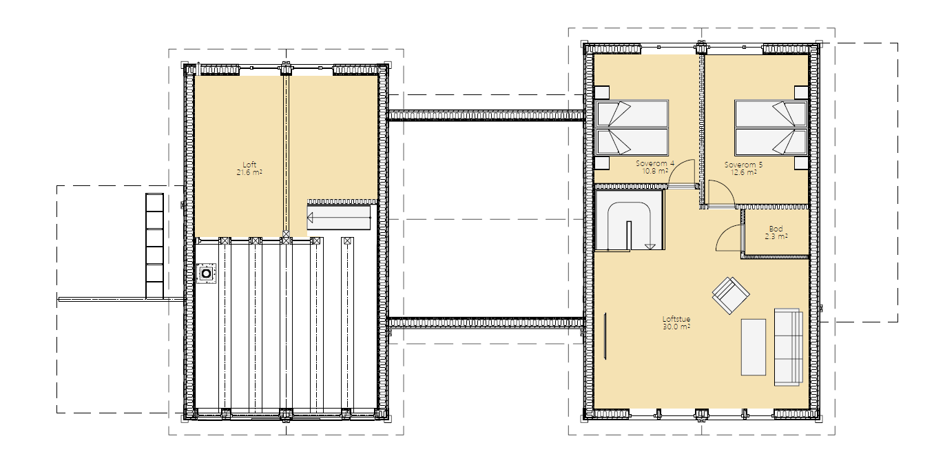
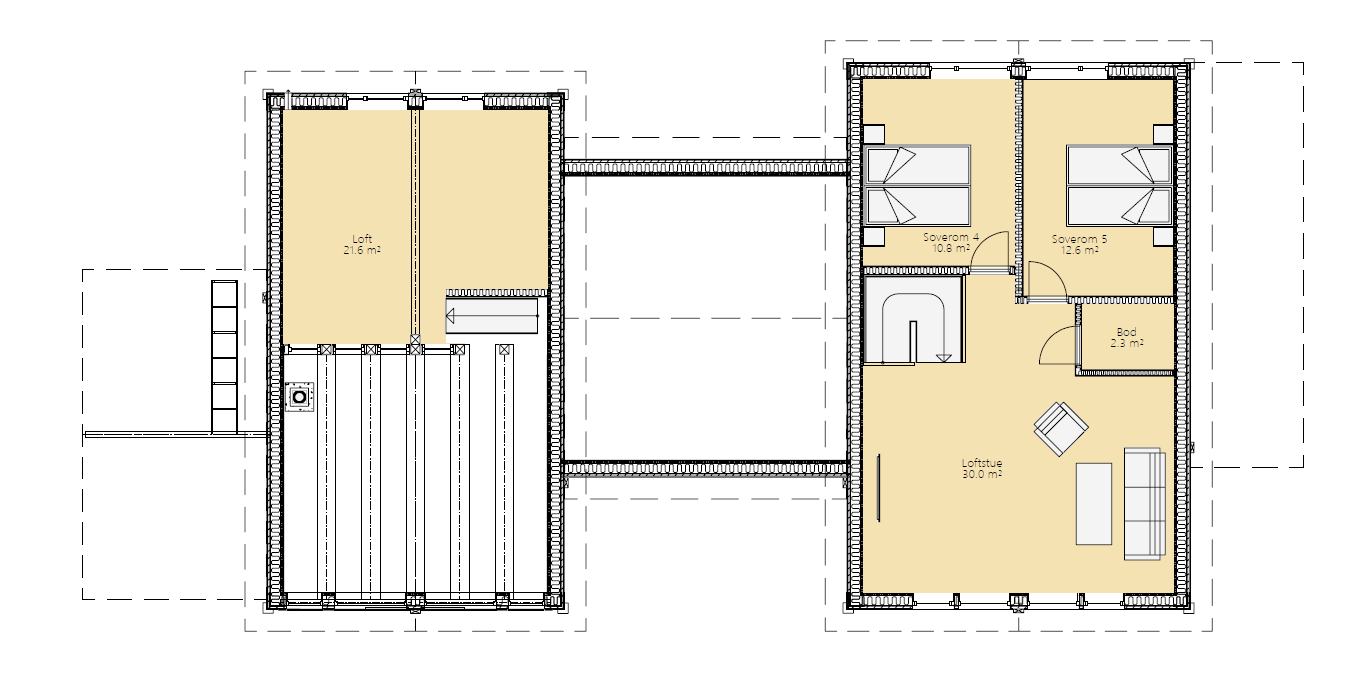
- Soverom
- 5
- Rom
- 6
Fasiliteter
Om eiendommen
Beliggenhet
Vestsiden av Kvitfjell er et ideelt utgangspunkt for barnefamilier og skientusiaster, med enkel adkomst fra E6 og nytt servicebygg med skikafé, skiutleie og sportsbutikk. Her finner du utfordringer for alle nivåer – fra den olympiske utforløypa til trygge og lekne familieområder.
Kvitfjell byr ikke bare på fantastiske snøforhold, men også på matopplevelser i særklasse. Med en rekke autentiske serveringssteder og restauranter får du en smak av alpefølelsen i norsk fjellnatur – fra lokale delikatesser til internasjonale retter.
Om sommeren forvandles området til et eldorado for fjellfolk, med urørte fjellområder, seterstuler og frisk luft – perfekt for fotturer, sykling og naturopplevelser.
Adkomst/Tomteforhold
Ta av fra E6 ved Fåvang og følg skilting mot Kvitfjell Vest. Vegen slynger seg oppover i dalsiden mot Kvitfjell Vest. Etter å ha passert Servicesenteret (ligger på høyre side av vegen) tar man til venstre opp mot Varden. Følg denne vegen i ca. 2 km og ta veien inn til høyre i svingen gjennom tunellen på Veg 1326, og følg veien frem til adresse 13 (tomt 40)
Generelt
På et sentralt og flott beliggende felt på Kvitfjell Varden kommer nå eksklusiv og moderne stavlafthytte for salg – med fantastisk utsikt mot Kvitfjell Vest og alpinbakkene. Her bor du i et snøsikkert og naturskjønt område, med ski-inn/ski-ut, og gangavstand til både langrennsløyper, alpinbakker, restauranter og matbutikk. Dette er et eksklusivt hytteområde hvor vi har valgt hytte med en kvalitet og et materialvalg som ligger over normal standard. Derfor har vi rettet fokuset mot det barske uttrykket fra Rå-serien til Tindehytter med stavlaftdetaljer og et norsk robust uttrykk.
Kvitfjell er kjent for en meget høy standard på alpinanlegget og langrennsløypene. OL og de årlige World Cup-arrangementene ligger i Kvitfjells DNA og alle som jobber her strekker seg langt for å alltid kunne levere den beste kvaliteten på skiløypene. Men Kvitfjell er mye mer enn rå utforløyper i olympisk kvalitet. Kvitfjell er stolte av å alltid levere de best preparerte løypene for sine gjester og er trolig Norges best preparerte skianlegg! Her får du 34km med alpinløyper fordelt på 31 løyper og 14 heiser, samt kveldskjøring på mandager og fredager. Det er 600 km tilgjengelig langrennsløyper - et sammenhengende løypenett fra Kvitfjell til Gålå og Skei, med omkringliggende fjellområder.
Få destinasjoner har et så variert og mangfoldig ski-tilbud, som passer for absolutt alle interesser og ferdighetsnivåer.
Eksklusiv H-hytte med oppstue for storfamilien!
Det er utarbeidet et konsept av elementer som både passer fint i omgivelsene og i en hytte litt utenom det vanlige. Her vil du kunne ha mulighet til å kunne påvirke hyttens standard og innhold. Store vinduer slipper lys og naturen inn i hytta. Ei fantastisk innholdsrik hytte med fem soverom, to bad, badstue, vaskerom, bod og hems. Utvendig leveres hytta med stavlaftdetaljer og stående låvepanel ytterkledning i mix bredder beiset i fargen Jernvitrol. Taket tekkes med torv. Dører og vinduer er i fargen dempet sort. Steinforblendet inngangsparti samt pipe over tak. Romslig og lun terrasse med delvis overbygget.
Beliggenhet
DESTINASJON KVITFJELL 45 minutter nord for Lillehammer ligger Kvitfjell, skientusiastenes vinterparadis. Her finner du utfordringer og skiglede for alle nivåer; enten du vil bryne deg på den olympiske utforløypa eller om du ønsker å legge dine første skiopplevelser i et av familieområdene. Vestsiden er et perfekt utgangspunkt for barnefamilier. I Kvitfjell Vest finner du nytt servicebygg med ski kafé, skiutleie og sportsbutikk. Kvitfjell er et komplett og snøsikkert skianlegg med skiutfordringer for alle nivåer. Anlegget er gjerne det første alpinsenteret til å åpne løypene om høsten og av de siste som stenger i slutten av april. Kvitfjell ble av VG kåret til landets beste alpinanlegg for alpinister. Nøkkelen til suksessen er å tilby skiopplevelser på øverste hylle. Over 100 snøkanoner og det samme crewet som preparerer til de årlige World Cup-rennene, sørger for at du alltid kan glede deg til å føle perfekt, ny preppet snø under skiene. Les mer på www.kvitfjell.no
Generelt
Varden III ligger fint til i Varden i Kvitfjell ca. 770 moh. Varden ligger i Kvitfjell Vest og er den tredje fjellsiden som bygges ut i Kvitfjell. Dette er et eksklusivt hytteområde og er et supert utgangspunkt for fritidsopplevelser både sommer og vinter. Kvitfjell kan også tilby milevis med oppkjørte langrennsløyper. Spenn på deg skiene og gå en tur mot Svinslåa, eller rundt om Skeikampen. Skituren kan avsluttes med en matbit og noe godt i glasset på Tyrihanstunet for de det passer for. Kvitfjell Vest er et sted for alle. Sommerstid byr området på fine turmuligheter både med og uten sykkel.
GODE UTLEIEMULIGHETER
Flere og flere ønsker å leie bort hytta si når man selv ikke bruker den. Hafjell Kvitfjell Booking trenger flere utleiesenger og dette kan gi gode leieinntekter til hytteeier. Ta kontakt med synnove@hafjellkvitfjell.no for nærmere informasjon.
Adkomst/Tomteforhold
Ta av fra E6 ved Fåvang og følg skilting mot Kvitfjell Vest. Vegen slynger seg oppover i dalsiden mot Kvitfjell Vest. Etter å ha passert Servicesenteret (ligger på høyre side av vegen) tar man til venstre opp mot Varden. Følg denne vegen i ca. 2 km og ta veien inn til høyre i svingen gjennom tunellen på Veg 1326, og følg veien frem adresse 13 (tomt 40)
For mer info ta kontakt med
•Linn Lorentzen - Tlf: 958 66 696 - Epost: linn.lorentzen@venafritid.no
•Torbjørn Randen - Tlf: 950 30 500 - Epost: torbjorn.randen@venafritid.no
Utvendig leveranse kort fortalt
- Stavlaftdetaljer og stående låvepanel ytterkledning i mix bredder beiset i fargen Jernvitrol.
- Torv på tak
- Steinforblendet inngangsparti og pipe over tak
- Romslige utvendige terrasser
- Frostfri utekran
- Astrourstyrte utelamper
Standard innvendig leveranse
Det er i valg av panel vektlagt betydningen av hva som skaper hyttefølelsen, inn i det moderne interiørbildet og som samtidig bærer høy kvalitet. Det er valgt å kle både vegger og himling med samme panel. I interiørkonsept blir innvendig panel beiset i en lun farge som gir et dempet og sofistikert uttrykk. Gulvene i hytten får et flott Bjelin gulv som står fint i stil med panelen som er valgt på vegger og i himlingen.
Vindfang blir flislagt og det gjøres for at det skal være enklere å holde den ren, samt beskytte mot fuktskader. Det er valgt store fliser på 60x60 cm.
Bad
Gulvene på badet blir levert med store, pene fliser. Disse er på 60x60 cm og gir et eksklusivt uttrykk. Dette er forøvrig også samme flis som er valgt i hall, som vil gi et fullført helhetsinntrykk av hytten
Veggene blir kledd med store fliser på 60x60 cm. Himlingen på badene blir kledd med samme panel som de øvrige veggene i hytten. Her vil beisen følge interiørkonseptet som blir valgt. I badstuen får gulvene sokkelflis i samme utførelse som gulvene. Badet har i likhet med de øvrige rommene i hytten taklister i samme beisfarge som vegg- og takpanel. I badstuen blir øvrig listverk i ubehandlet osp.Det skal være lunt og behagelig å være på badet. I likhet med resten av hytten er det valgt sorte detaljer på det meste av innredning. Baderomsmøbel leveres i sort Eik med speil og lys med matt sort armatur. Over baderomsinnredningen vil det bli montert speil med belysning. Dusjhjørne leveres med pyxis hev/senk og sort matt takdusj. Toaletter er vegghengt med soft close sete.
Hytten har egen badstu! Etter en lang dag ute i vinterkulden er det ikke mye som slår varmen i badstuen. I badstuen blir vegger, himling og benker kledd med ubehandlet osp. Det samme blir listverket. Dør mellom bad og badstue vil få sotet glass.
Kjøkken
Kjøkkenet leveres i god standard fra Aubo i et eksklusiv design og det er lagt stor vekt på å skreddersy gode løsninger som er tilpasset hyttens interiørkonsept. Kjøkkenet er i Sense-serien, og som vi mener er svært dekorativt i seg selv, og vi har valgt i fargekonsept Sense sort eller Sense warm grey.
Oppvarming
Nordpeis type Geneve med gulvplate i glass.
Varme i gulv i stue/kjøkken, TV-stue, vindfang og våtrom.
• Tinde har ansvar for byggesøknadsprosessen
• Utførelse og leveranse i henhold til dagens tekniske krav
• Kontrakt fra Norsk Standard 3425 (med henvisninger til Bustadoppføringsloven)
• Garanti for 10% av kontraktssummen i byggeperioden,5% i reklamasjonstiden (5 år) (med henvisninger til Bustadoppføringsloven)
Det tas forbehold om prisendringer og endelig godkjenning fra Ringebu kommune.
Omkostninger og avgifter 2025
Utgifter i tillegg til pris
2,5% dokumentavgift av tomteverdi: Kr 92.500,-
Tinglysningsgebyr: Kr 545
Tilskudd skiløyper (indeksreguleres): Kr 850,-
Tilknytning vann Ringebu Kommune: Kr 44.349,-
Tilknytning avløp Ringebu Kommune: Kr 27.869,-
Tilknytningsavgift Fremre Svinslåvegen Veglag: Kr 10.000,-
Prisene er beregnet med sist kjente indeks fra SSB og vil bli justert til enhver tids gjeldende indeks. Det tas forbehold om endring av tomtepris.
Selger tar forbehold om endringer i omkostninger og avgifter. I tillegg tilkommer det årlig kommunale avgifter som hytteeier
plikter å betale.
Fremre Svinslåvegen Veglag vil kreve inn tilknytningsavgift på kr 10.000 pr enhet. Kjøper forplikter seg til å betale tilknytningsavgiften,
der denne vil bli KPI-justert fra 1.1.2025
Felles for leveransen
• Byggekonktrakt etter Norsk Standard 3425 (henvisning til Bustadsoppføringsloven)
• Tinde Hytter AS stiller 10% garanti av kontraktssummen i byggetiden og 5% i reklamasjonstiden (5 år)
• Forsikring i vår byggeperiode
• Utførelse og leveranse i henhold til dagens tekniske krav (TEK 17)
• Fakturering i henhold til framdrift
• Protokollført overlevering
• 1-års befaring
Informasjon fra selger
Tomt
Vena Fritidseiendom AS,
Lomovegen 21, 2640 Vinstra
Org.nr.: NO 963 024 746
Hytte inkl. grunnarbeid/betong
Tinde Hytter AS, Lomovegen 21, 2640 Vinstra
Org.nr.: NO 985 135 282
Oppgjørsmegler
Advokatfirmaet Thallaug ANS
Org.nr.: NO 950 522 550
Offentlige forhold
Regulering
Eiendommene er regulert for fritidsbebyggelse, under reguleringsplan for Varden II i Ringebu Kommune. Planen er endelig vedtatt med ikrafttredelse 20.06.2023
Link: https://www.arealplaner.no/3439/arealplaner/219
Ferdigattest
Utbygger vil besørge ferdigattest.
Tinglyste heftelser
Eiendommen skal overføres fri for pengeheftelser til kjøper.
Følgende rettigheter vil tinglyses ifb. Med matrikkelforing av nye bruksnummer:
• Veirett
• Pliktig medlemskap i hytteeierforening
Tomt og beliggenhet
Adresse
Veg 1326 13, 2634 Fåvang
Gnr. 108, bnr. 129 i Ringebu kommune
Eierform
Selveiertomt.
Tomten er så langt ikke fradelt, men vil begjæres fradeling etter inngåelse av kontrakt. Tomtestørrelse utgjør 1.110 kvm.
Det er pliktig medlemskaps i hytteeierforeningen.
Tomt
Det er felles interne veier til hyttene som er private og vedlikeholdes i fellesskap av hytteeierforening.
Tomten opparbeides og ferdigstilles med stedlige masser. Parkeringsareal og vegarealer blir grusbelagt.
Parkering
Det medfølger 2 parkeringsplasser
Øvrige forhold
Overtagelse
Ferdigstillelse og overtakelse etter nærmere avtale. Byggetid for det konkrete salget vil bli endelig fastsatt ved kontraktinngåelse.
Ved overlevering vil kjøper motta en bruksanvisning (FDV mappe) med informasjon om de produkter som er brukt i fritidsboligen og med tips i forhold til vedlikehold.
Kjøper må sette seg inn i denne å etterleve de råd og vedlikeholdsrutiner som er angitt.
Reklamasjoner som skyldes manglende vedlikehold eller uriktig bruk vil bli avvist. Eiendommen overtas i byggerengjort stand. Med byggerengjort menes utrydding, kosting og støvsuging av hytta.
Arealangivelser
Arealene oppgitt på tegninger og i prislisten er angitt i bruksareal (BRA) som er boligens mal innvendig, innbefattet innvendige boder, vegger og
sjakter, men ikke medregnet yttervegg. Arealene oppgitt som P-rom er bruksareal (BRA) minus innvendig bod.
Tinde Hytter AS, Lomovegen 21, 2640 Vinstra
Org.nr.: NO 985 135 282
Oppgjørsmegler
Advokatfirmaet Thallaug ANS
Org.nr.: NO 950 522 550
Offentlige forhold
Regulering
Eiendommene er regulert for fritidsbebyggelse, under reguleringsplan for Varden II i Ringebu Kommune. Planen er endelig vedtatt med ikrafttredelse 20.06.2023
Link: https://www.arealplaner.no/3439/arealplaner/219
Ferdigattest
Utbygger vil besørge ferdigattest.
Tinglyste heftelser
Eiendommen skal overføres fri for pengeheftelser til kjøper.
Følgende rettigheter vil tinglyses ifb. Med matrikkelforing av nye bruksnummer:
• Veirett
• Pliktig medlemskap i hytteeierforening
Tomt og beliggenhet
Adresse
Veg 1326 13, 2634 Fåvang
Gnr. 108, bnr. 129 i Ringebu kommune
Eierform
Selveiertomt.
Tomten er så langt ikke fradelt, men vil begjæres fradeling etter inngåelse av kontrakt. Tomtestørrelse utgjør 1.110 kvm.
Det er pliktig medlemskaps i hytteeierforeningen.
Tomt
Det er felles interne veier til hyttene som er private og vedlikeholdes i fellesskap av hytteeierforening.
Tomten opparbeides og ferdigstilles med stedlige masser. Parkeringsareal og vegarealer blir grusbelagt.
Parkering
Det medfølger 2 parkeringsplasser
Øvrige forhold
Overtagelse
Ferdigstillelse og overtakelse etter nærmere avtale. Byggetid for det konkrete salget vil bli endelig fastsatt ved kontraktinngåelse.
Ved overlevering vil kjøper motta en bruksanvisning (FDV mappe) med informasjon om de produkter som er brukt i fritidsboligen og med tips i forhold til vedlikehold.
Kjøper må sette seg inn i denne å etterleve de råd og vedlikeholdsrutiner som er angitt.
Reklamasjoner som skyldes manglende vedlikehold eller uriktig bruk vil bli avvist. Eiendommen overtas i byggerengjort stand. Med byggerengjort menes utrydding, kosting og støvsuging av hytta.
Arealangivelser
Arealene oppgitt på tegninger og i prislisten er angitt i bruksareal (BRA) som er boligens mal innvendig, innbefattet innvendige boder, vegger og
sjakter, men ikke medregnet yttervegg. Arealene oppgitt som P-rom er bruksareal (BRA) minus innvendig bod.
Salgsoppgaven beskriver vesentlig og lovpålagt informasjon om eiendommen
Se komplett salgsoppgaveNærområdet
Tindehytter AS
Annonsene kan være mangelfulle i forhold til lovpålagt opplysningsplikt. Før bindende avtale inngås oppfordres interessenter til å innhente komplett informasjon fra meglerforetaket, selger eller utleier.























