Bildegalleri

EIE eiendomsmegling ved Daniel Lanto har gleden av å presentere Nedre Åtloaunvegen 6! Foto: Jonas Kvello
Frosta
Fritidsbolig beliggende i naturskjønne omgivelser | 3 soverom | Vedovn | Stor tomt på 1 155 m² | Bilvei helt frem
Prisantydning990 000 kr
- Omkostninger
- 46 000 kr
- Totalpris
- 1 036 000 kr
- Kommunale avg.
- 7 630 kr per år
- Formuesverdi
- 272 768 kr
Nøkkelinfo
- Boligtype
- Hytte
- Eieform
- Eier (Selveier)
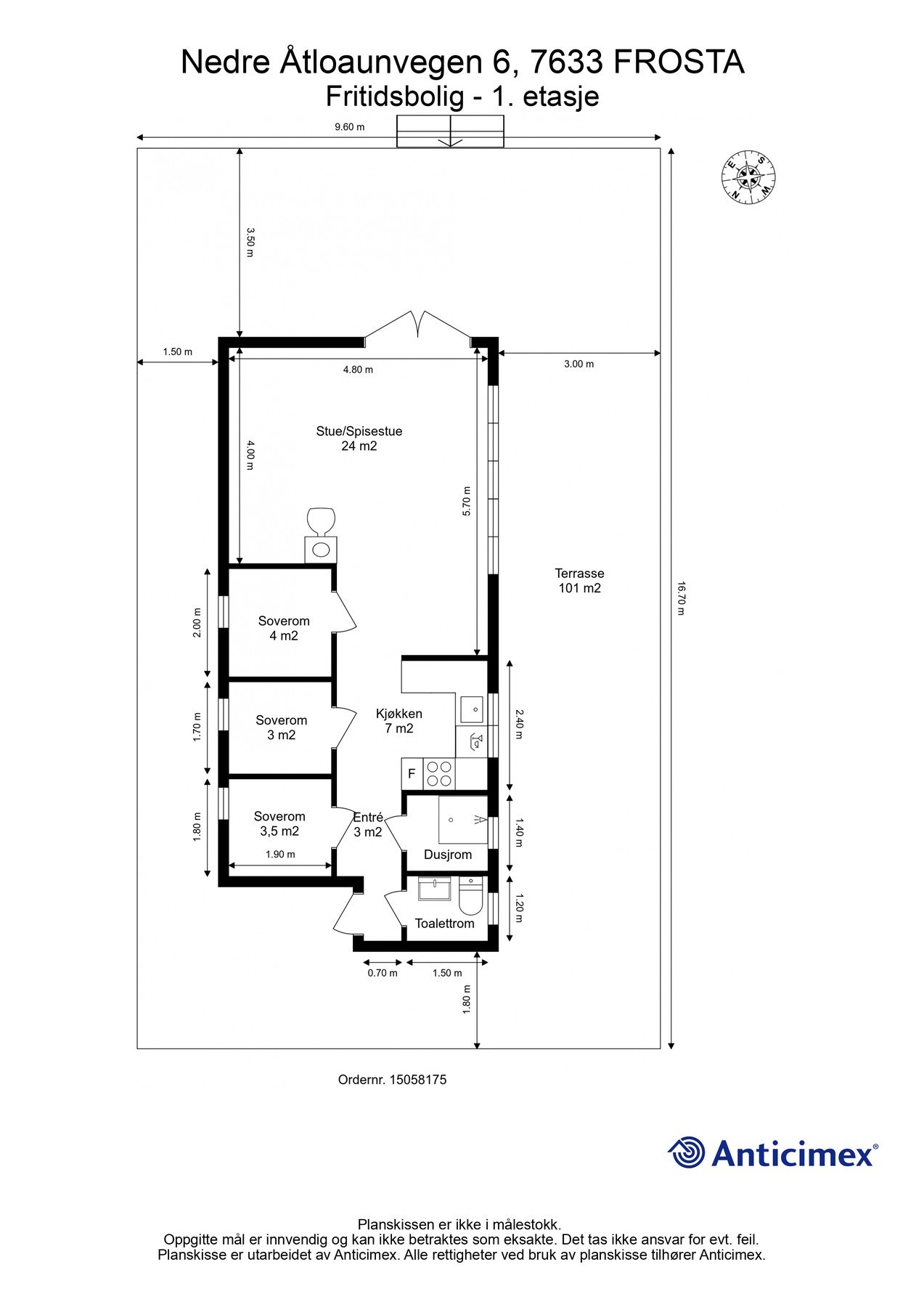
- Internt bruksareal
- 51 m² (BRA-i)
- Bruksareal
- 54 m²
- Eksternt bruksareal
- 3 m² (BRA-e)
- Balkong/Terrasse
- 101 m² (TBA)
- Tomteareal
- 1 155 m² (eiet)
- Byggeår
- 1978
- Soverom
- 3
- Rom
- 4
- Energimerking
- F - Oransje
Fasiliteter
Balkong/Terrasse
Fiskemulighet
Turterreng
Bilvei frem
Innlagt strøm
Innlagt vann
Visning
Ta kontakt for å avtale visning.Husk å lese komplett salgsoppgave før visning. Bestill komplett, utskriftsvennlig salgsoppgave.
VisningspåmeldingOm boligen
EIE eiendomsmegling ved Daniel Lanto har gleden av å presentere Nedre Åtloaunvegen 6! - En flott hytte med 3 soverom i naturrike omgivelser på populære Frosta.
Hytta ligger skjermet til, samtidig som det bare er en kort kjøretur til en rekke moderne fasiliteter. Kort vei til og fra Trondheim med omtrent 1 time og 15 minutters kjøretur. For daglige behov og shopping er Frostasenteret bare en 12 minutters kjøretur unna. Det er nærhet til en rekke rekreasjonsmuligheter, slik som treningssenter og golfbane. Fra terrassen kan man nyte gode solforhold på sommerstid.
Merk deg dette:
. 3 soverom
. Vedovn
. Flott turterreng rett utenfor døren
. Gode solforhold
. Skjermet beliggenhet
. Mye boltreplass
. Stor terrasse
. Nærhet til en rekke rekreasjonsmuligheter
Velkommen til visning!
Hytta ligger skjermet til, samtidig som det bare er en kort kjøretur til en rekke moderne fasiliteter. Kort vei til og fra Trondheim med omtrent 1 time og 15 minutters kjøretur. For daglige behov og shopping er Frostasenteret bare en 12 minutters kjøretur unna. Det er nærhet til en rekke rekreasjonsmuligheter, slik som treningssenter og golfbane. Fra terrassen kan man nyte gode solforhold på sommerstid.
Merk deg dette:
. 3 soverom
. Vedovn
. Flott turterreng rett utenfor døren
. Gode solforhold
. Skjermet beliggenhet
. Mye boltreplass
. Stor terrasse
. Nærhet til en rekke rekreasjonsmuligheter
Velkommen til visning!
NB: Knappen for å vise hele beskrivelsen har kun en visuell effekt.
NB: Knappen for å vise hele beskrivelsen har kun en visuell effekt.
Salgsoppgaven beskriver vesentlig og lovpålagt informasjon om eiendommen
Se komplett salgsoppgaveNyttige lenker
Nærområdet
EIE eiendomsmegling Trondheim sentrum
Annonseinformasjon
| FINN-kode | 420637206 |
|---|---|
| Sist endret | 19. nov. 2025 13:22 |
| Referanse | 33251118 |
Annonsene kan være mangelfulle i forhold til lovpålagt opplysningsplikt. Før bindende avtale inngås oppfordres interessenter til å innhente komplett informasjon fra meglerforetaket, selger eller utleier.































