Bildegalleri

Solgt
Hommersåk
Vakkert, solrikt og totalt usjenert landsted like i vannkanten - Aneks med soveplasser
Prisantydning1 490 000 kr
- Omkostninger
- 58 240 kr
- Totalpris
- 1 548 240 kr
- Kommunale avg.
- 3 010 kr per år
Nøkkelinfo
- Beliggenhet
- Ved sjøen
- Boligtype
- Hytte
- Eieform
- Selveier
- Internt bruksareal
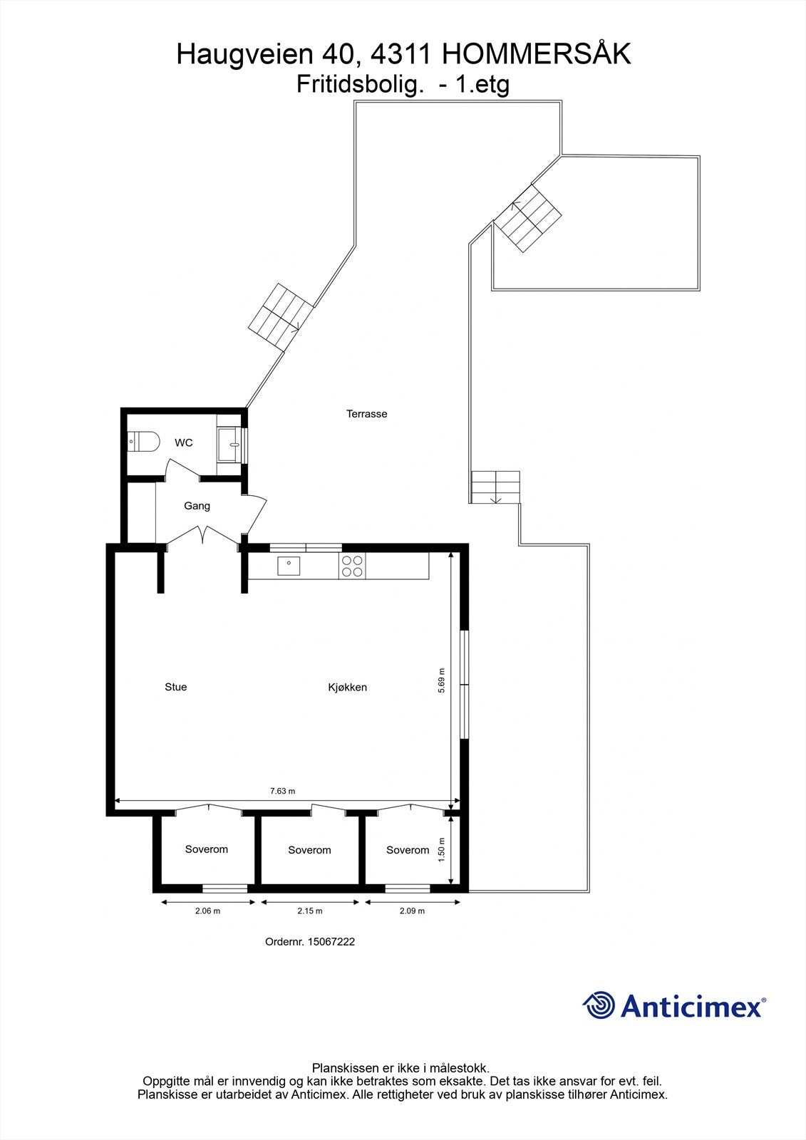
- 46 m² (BRA-i)
- Bruksareal
- 70 m²
- Eksternt bruksareal
- 24 m² (BRA-e)
- Tomteareal
- 788 m² (eiet)
- Byggeår
- 1950
- Soverom
- 3
- Rom
- 4
- Overtakelse
- Etter nærmere avtale.
Fasiliteter
Balkong/Terrasse
Barnevennlig
Bilvei frem
Hage
Rolig
Utsikt
Bademulighet
Turterreng
Om boligen
Denne koselige hytten i vannkanten på Hommersåk kan nå bli din. Her får du en helt egen grønn oase, hvor du kan nyte freden usjenert og totalt skjermet for innsyn. Hytten ble delvis oppusset i 2015/16, men holder alikevel relativt enkel standard uten innlagt vann/kloakk. Det er oppført et isolert aneks med gode, ekstra soveplasser og det er toalettrom i både hytte og aneks. Denne idyllen koster ikke skjorta og er verdt en titt!
- Utradisjonell og artig planløsning
- Stort terrasseanlegg med flere nivåer
- Sol fra morgen til kveld
- Aneks med soveplasser
- Parkering ved veien rett ved hytten
- Utradisjonell og artig planløsning
- Stort terrasseanlegg med flere nivåer
- Sol fra morgen til kveld
- Aneks med soveplasser
- Parkering ved veien rett ved hytten
NB: Knappen for å vise hele beskrivelsen har kun en visuell effekt.
NB: Knappen for å vise hele beskrivelsen har kun en visuell effekt.
Salgsoppgaven beskriver vesentlig og lovpålagt informasjon om eiendommen
Se komplett salgsoppgaveNyttige lenker
Nærområdet
Krogsveen Stavanger
Verdien av en god megler.
Annonseinformasjon
| FINN-kode | 419505105 |
|---|---|
| Sist endret | 23. des. 2025 07:17 |
| Referanse | KR35.2532 |
Annonsene kan være mangelfulle i forhold til lovpålagt opplysningsplikt. Før bindende avtale inngås oppfordres interessenter til å innhente komplett informasjon fra meglerforetaket, selger eller utleier.




















































