Bildegalleri

Velkommen til Vardelie 16, en fritidseiendom presentert av EiendomsMegler 1 Fjellmegleren!
Inaktiv
Filefjell
Flott fritidseiendom beliggende på Filefjell i nydelige omgivelser!
Prisantydning8 990 000 kr
- Omkostninger
- 226 070 kr
- Totalpris
- 9 216 070 kr
- Formuesverdi
- 528 449 kr
Nøkkelinfo
- Beliggenhet
- På fjellet
- Boligtype
- Hytte
- Eieform
- Eier (Selveier)
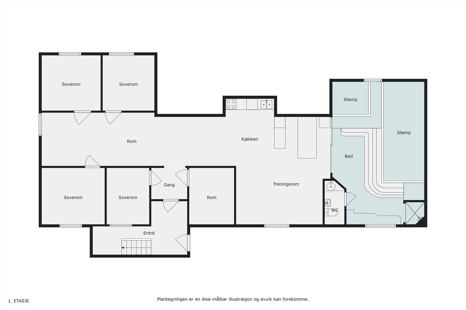
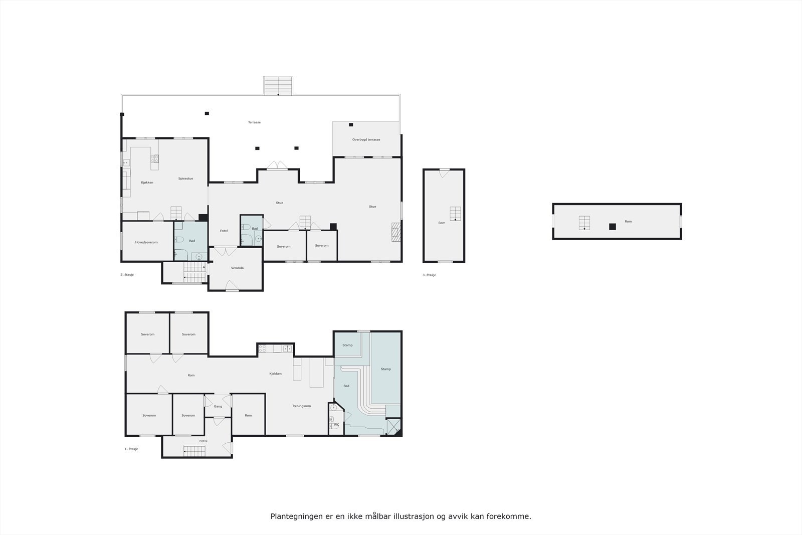
- Internt bruksareal
- 338 m² (BRA-i)
- Bruksareal
- 338 m²
- Balkong/Terrasse
- 104 m² (TBA)
- Tomteareal
- 1 640 m² (eiet)
- Byggeår
- 2008
- Soverom
- 3
- Overtakelse
- Etter nærmere avtale med selger. Vær vennlig å angi ønsket overtagelsesdato i vedlagte budskjema.
Fasiliteter
Innlagt vann
Alpinanlegg
Balkong/Terrasse
Barnevennlig
Peis/Ildsted
Rolig
Utsikt
Bademulighet
Fiskemulighet
Innlagt strøm
Turterreng
Visning
Velkommen til visning! Positive tilbakemeldinger fra markedet, gjør at vi fortsetter med visningspåmelding. Meld deg på ved å trykke på Visningspåmelding . Bare å ringe oss dersom du har spørsmål.
For visninger utover de annonserte, ta kontakt med megler på telefon 901 94 417.
Husk å lese komplett salgsoppgave før visning. Bestill komplett, utskriftsvennlig salgsoppgave.
VisningspåmeldingOm boligen
Vi har gleden av å presentere Vardelie 16, nydelig hytte med gode solforhold og fantastisk turterreng!
Eiendommen er et perfekt for deg som er glad i friluftsliv, samt å nyte den rolige hyttetilværelsen. Tyin-Filefjell har en unik natur og blir regnet som inngangsporten til Jotunheimen nasjonalpark.
- God plass til store familier eller vennegrupper
- Hytten har en gjennomgående moderne og tidsriktig design
- Beliggende i nærheten av Otrøvatnet og Filefjell skisenter
- Vann, strøm og avløp.
- Privat vei til hytta. Ikke vintervei.
Velkommen på visning!
Eiendommen er et perfekt for deg som er glad i friluftsliv, samt å nyte den rolige hyttetilværelsen. Tyin-Filefjell har en unik natur og blir regnet som inngangsporten til Jotunheimen nasjonalpark.
- God plass til store familier eller vennegrupper
- Hytten har en gjennomgående moderne og tidsriktig design
- Beliggende i nærheten av Otrøvatnet og Filefjell skisenter
- Vann, strøm og avløp.
- Privat vei til hytta. Ikke vintervei.
Velkommen på visning!
NB: Knappen for å vise hele beskrivelsen har kun en visuell effekt.
NB: Knappen for å vise hele beskrivelsen har kun en visuell effekt.
Salgsoppgaven beskriver vesentlig og lovpålagt informasjon om eiendommen
Se komplett salgsoppgaveNyttige lenker
Nærområdet
EIE Fjellmegleren Valdres
Annonsene kan være mangelfulle i forhold til lovpålagt opplysningsplikt. Før bindende avtale inngås oppfordres interessenter til å innhente komplett informasjon fra meglerforetaket, selger eller utleier.

































































