Bildegalleri

Velkommen til Hatterveien 45 - Romslig og fin hytte
Skaidi - Innholdsrik fritidsbolig med 4 soverom, 2 stuer, garasje/carport og skjermet beliggenhet
Prisantydning3 650 000 kr
- Omkostninger
- 94 285 kr
- Totalpris
- 3 744 285 kr
- Kommunale avg.
- 3 310 kr per år
- Formuesverdi
- 49 894 kr
Nøkkelinfo
- Boligtype
- Hytte
- Eieform
- Eier (Selveier)
- Internt bruksareal
- 119 m² (BRA-i)
- Bruksareal
- 187 m²
- Eksternt bruksareal
- 68 m² (BRA-e)
- Balkong/Terrasse
- 39 m² (TBA)
- Tomteareal
- 999 m² (festet)
- Festeavgift
- 1 366 kr
- Byggeår
- 2005
- Soverom
- 4
- Rom
- 6
- Energimerking
- G - Rød
Visning
Ta kontakt for å avtale visning.Husk å lese komplett salgsoppgave før visning. Bestill komplett, utskriftsvennlig salgsoppgave.
VisningspåmeldingOm boligen
Eiendomsmegler1 presenterer Hatterveien 45.
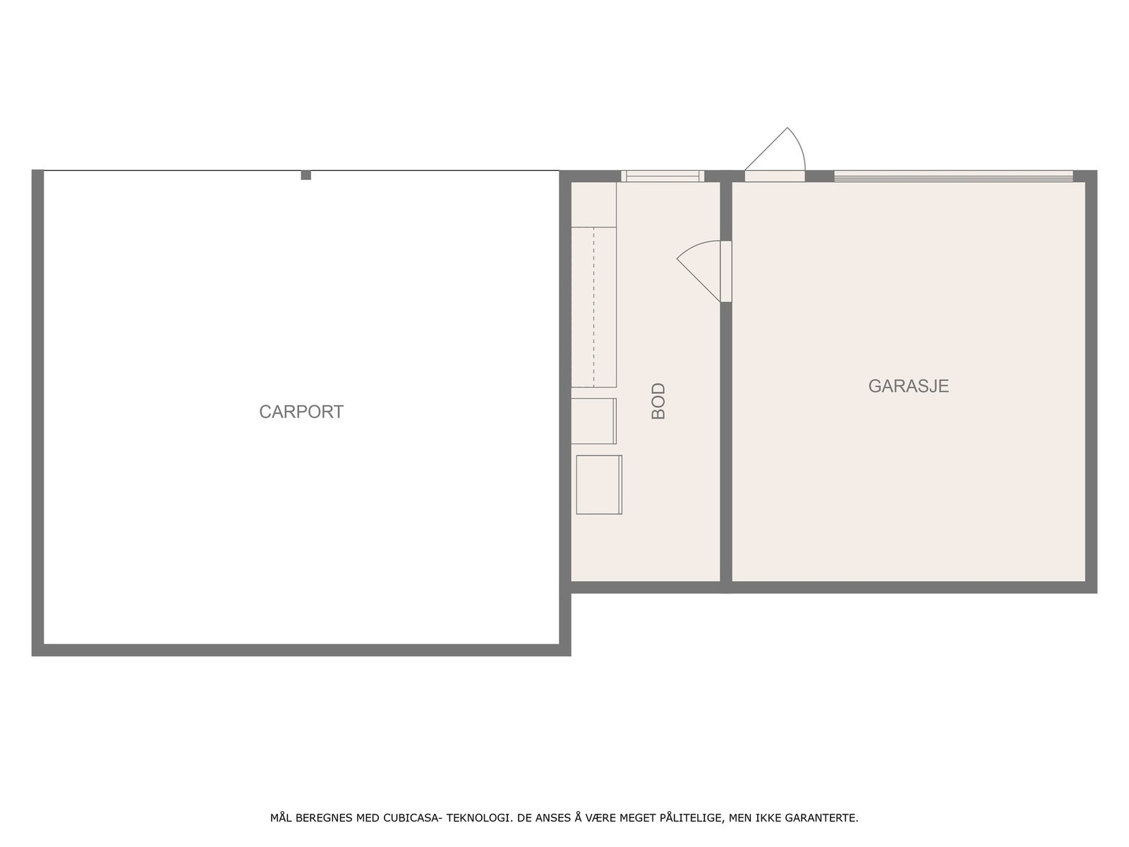
Dette er en romslig fritidsbolig over to plan, oppført i 2005. Boligen har innholdsrike og fine planløsninger, og inneholder bla. entré, stue, kjøkken, fire soverom, loftstue, bad, badstue, trapperom og bod. Standard fra byggeår, men anses som velholdt. Romlige terrassearealer med egen badestamp, balkong fra loftstue og godt med biloppstillingsplasser på eiendommen. Garasje med tilbygd carport på eiendommen.
Fritidsboligen er beliggende i et attraktivt hytteområde, med flere muligheter for friluftsinteresserte.
Kort fortalt:
- 4 gode soverom
- 2 stuer
- Badstue og plass til badestamp
- Garasje og Carport
Velkommen på visning
Dette er en romslig fritidsbolig over to plan, oppført i 2005. Boligen har innholdsrike og fine planløsninger, og inneholder bla. entré, stue, kjøkken, fire soverom, loftstue, bad, badstue, trapperom og bod. Standard fra byggeår, men anses som velholdt. Romlige terrassearealer med egen badestamp, balkong fra loftstue og godt med biloppstillingsplasser på eiendommen. Garasje med tilbygd carport på eiendommen.
Fritidsboligen er beliggende i et attraktivt hytteområde, med flere muligheter for friluftsinteresserte.
Kort fortalt:
- 4 gode soverom
- 2 stuer
- Badstue og plass til badestamp
- Garasje og Carport
Velkommen på visning
NB: Knappen for å vise hele beskrivelsen har kun en visuell effekt.
NB: Knappen for å vise hele beskrivelsen har kun en visuell effekt.
Salgsoppgaven beskriver vesentlig og lovpålagt informasjon om eiendommen
Se komplett salgsoppgaveNyttige lenker
Nærområdet
EiendomsMegler 1 Hammerfest
Vi er der du er - EiendomsMegler 1
Annonsene kan være mangelfulle i forhold til lovpålagt opplysningsplikt. Før bindende avtale inngås oppfordres interessenter til å innhente komplett informasjon fra meglerforetaket, selger eller utleier.


















































