Bildegalleri

Velkommen til Neråsvegen 31!
Tomrefjord
Innholdsrik fritidsbolig / rorbu med nydelig beliggenhet - Båtplass* - Terrasse på over 100 m2 - 4 sov og 2 bad
Prisantydning2 800 000 kr
- Omkostninger
- 71 090 kr
- Totalpris
- 2 871 090 kr
- Kommunale avg.
- 18 749 kr per år
- Formuesverdi
- 787 500 kr
Nøkkelinfo
- Boligtype
- Hytte
- Eieform
- Eier (Selveier)
- Internt bruksareal
- 108 m² (BRA-i)
- Bruksareal
- 145 m²
- Eksternt bruksareal
- 37 m² (BRA-e)
- Balkong/Terrasse
- 149 m² (TBA)
- Tomteareal
- 878 m² (eiet)
- Byggeår
- 2008
- Soverom
- 4
- Rom
- 5
Fasiliteter
Balkong/Terrasse
Garasje/P-plass
Fiskemulighet
Turterreng
Utsikt
Bilvei frem
Båtplass
Innlagt strøm
Innlagt vann
Visning
Ta kontakt for å avtale visning.Husk å lese komplett salgsoppgave før visning. Bestill komplett, utskriftsvennlig salgsoppgave.
VisningspåmeldingOm boligen
Velkommen til Neråsvegen 31!
Eiendommen er beliggende på Vik, i nærheten av både båthavn og badeplass. Området har en attraktiv og naturskjønn beliggenhet, preget av rorbuer og hytter.
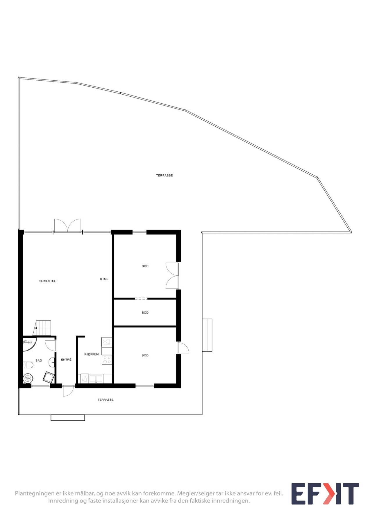
1. etasje: Stue/kjøkken, gang, bad, 2 boder.
2. etasje: Gang, 4 soverom, bad.
Eiendommen er beliggende på Vik, i nærheten av både båthavn og badeplass. Området har en attraktiv og naturskjønn beliggenhet, preget av rorbuer og hytter.
1. etasje: Stue/kjøkken, gang, bad, 2 boder.
2. etasje: Gang, 4 soverom, bad.
NB: Knappen for å vise hele beskrivelsen har kun en visuell effekt.
NB: Knappen for å vise hele beskrivelsen har kun en visuell effekt.
Salgsoppgaven beskriver vesentlig og lovpålagt informasjon om eiendommen
Se komplett salgsoppgaveNyttige lenker
Nærområdet
EiendomsMegler 1 Molde
Vi loser deg trygt gjennom hele boligsalget
Annonseinformasjon
| FINN-kode | 417687706 |
|---|---|
| Sist endret | 08. sep. 2025 13:45 |
| Referanse | 13250112 |
Annonsene kan være mangelfulle i forhold til lovpålagt opplysningsplikt. Før bindende avtale inngås oppfordres interessenter til å innhente komplett informasjon fra meglerforetaket, selger eller utleier.























