Bildegalleri

Velkommen til Mikkel Saxlunds veg 147! Meget skjermet og usjenert beliggenhet med flott utsikt mot Mjøsa!
ESPA
Meget sjarmerende fritidseiendom med fantastisk Mjøsutsikt - 3 soverom - Stor, solrik tomt - Innlagt strøm
Prisantydning1 750 000 kr
- Omkostninger
- 44 840 kr
- Totalpris
- 1 794 840 kr
- Kommunale avg.
- 2 353 kr per år
- Eiendomsskatt
- 4 558 kr per år
- Formuesverdi
- 603 162 kr
Nøkkelinfo
- Beliggenhet
- Ved sjøen
- Boligtype
- Enebolig
- Eieform
- Selveier
- Internt bruksareal
- 109 m² (BRA-i)
- Bruksareal
- 157 m²
- Eksternt bruksareal
- 48 m² (BRA-e)
- Balkong/Terrasse
- 62 m² (TBA)
- Tomteareal
- 1 792 m² (eiet)
- Byggeår
- 1936
- Soverom
- 3
- Rom
- 4
- Energimerking
Fasiliteter
Balkong/Terrasse
Barnevennlig
Bilvei frem
Hage
Peis/Ildsted
Rolig
Utsikt
Innlagt strøm
Turterreng
Visning
Ta kontakt for å avtale visning.Husk å lese komplett salgsoppgave før visning. Bestill komplett, utskriftsvennlig salgsoppgave.
VisningspåmeldingOm boligen
Velkommen til Mikkel Saxlunds veg 147 på Espa!
Meget sjarmerende fritidseiendom på stor og solrik tomt, med nydelig mjøsutsikt!
Stor selveid, pent opparbeidet tomt med flere uteplasser. Det er gjort store oppgraderinger, spesielt utvendig de senere år.
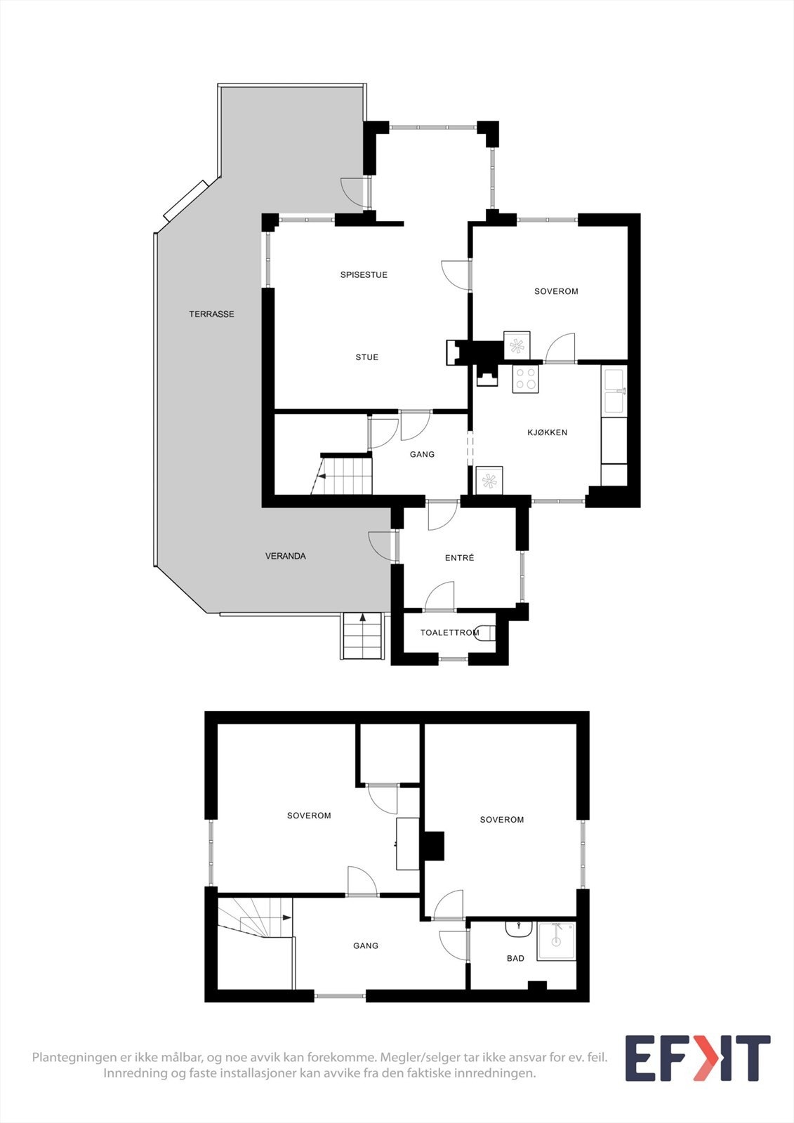
Fritidsboligen inneholder stue, kjøkken, 3 soverom, bad, toalettrom med Cinderella-forbrenningstoalett, entré og innergang. Grovkjeller. To eldre uthus.
Velkommen til en hyggelig visning!
Meget sjarmerende fritidseiendom på stor og solrik tomt, med nydelig mjøsutsikt!
Stor selveid, pent opparbeidet tomt med flere uteplasser. Det er gjort store oppgraderinger, spesielt utvendig de senere år.
Fritidsboligen inneholder stue, kjøkken, 3 soverom, bad, toalettrom med Cinderella-forbrenningstoalett, entré og innergang. Grovkjeller. To eldre uthus.
Velkommen til en hyggelig visning!
NB: Knappen for å vise hele beskrivelsen har kun en visuell effekt.
NB: Knappen for å vise hele beskrivelsen har kun en visuell effekt.
Salgsoppgaven beskriver vesentlig og lovpålagt informasjon om eiendommen
Se komplett salgsoppgaveNyttige lenker
Nærområdet
EiendomsMegler 1 Stange
Vi loser deg trygt gjennom hele boligsalget
Annonseinformasjon
| FINN-kode | 416337919 |
|---|---|
| Sist endret | 11. mai 2026 13:48 |
| Referanse | 6040260034 |
Annonsene kan være mangelfulle i forhold til lovpålagt opplysningsplikt. Før bindende avtale inngås oppfordres interessenter til å innhente komplett informasjon fra meglerforetaket, selger eller utleier.







































