Bildegalleri

Velkommen til Gravbergsvegen 323!
Våler/Tøråsen- Koselig hyttetun med frittstående bygninger! Romslig, solrik tomt. Tøråssjøen ligget i umiddelbar nærhet.
Prisantydning990 000 kr
- Omkostninger
- 39 140 kr
- Totalpris
- 1 029 140 kr
- Kommunale avg.
- 2 067 kr per år
- Eiendomsskatt
- 1 282 kr per år
Nøkkelinfo
- Beliggenhet
- Innlandet
- Boligtype
- Hytte
- Eieform
- Eier (Selveier)
- Internt bruksareal
- 43 m² (BRA-i)
- Bruksareal
- 122 m²
- Eksternt bruksareal
- 79 m² (BRA-e)
- Balkong/Terrasse
- 19 m² (TBA)
- Tomteareal
- 1 806 m² (eiet)
- Soverom
- 2
- Rom
- 3
Fasiliteter
Balkong/Terrasse
Bilvei frem
Garasje/P-plass
Peis/Ildsted
Rolig
Utsikt
Turterreng
Visning
Ta kontakt for å avtale visning.Husk å lese komplett salgsoppgave før visning. Bestill komplett, utskriftsvennlig salgsoppgave.
VisningspåmeldingOm boligen
Velkommen til Gravbergsvegen 323!
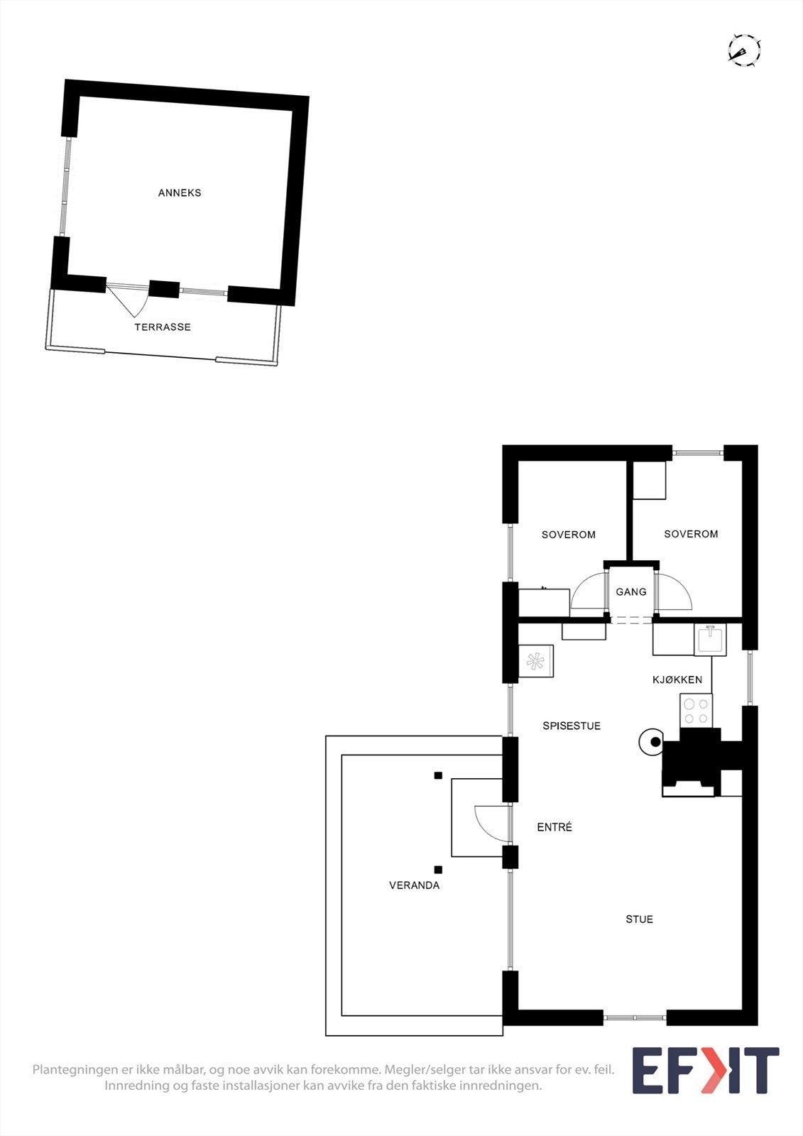
Sjarmerende fritidseiendom med hytte, frittstående bygninger med anneks, garasje, toelettrom og garasje/verksted. Hytta inneholder stue, kjøkken, 2 soverom og entre. Solcelle, ikke innlagt vann. Egen brønn på tomten.
Romslig, solrik tomt. Kort vei til Tøråssjøen med gode bade- og fiskemuligheter. Område rundt med storslått natur og gode rekrasjonsmuligheter under alle årstider.
Velkommen til visning!
Meld deg på via påmeldingsknappen eller ta kontakt med Hans Petter Carlsson, eiendomsmegler MNEF på tlf. 911 25 518.
Sjarmerende fritidseiendom med hytte, frittstående bygninger med anneks, garasje, toelettrom og garasje/verksted. Hytta inneholder stue, kjøkken, 2 soverom og entre. Solcelle, ikke innlagt vann. Egen brønn på tomten.
Romslig, solrik tomt. Kort vei til Tøråssjøen med gode bade- og fiskemuligheter. Område rundt med storslått natur og gode rekrasjonsmuligheter under alle årstider.
Velkommen til visning!
Meld deg på via påmeldingsknappen eller ta kontakt med Hans Petter Carlsson, eiendomsmegler MNEF på tlf. 911 25 518.
NB: Knappen for å vise hele beskrivelsen har kun en visuell effekt.
NB: Knappen for å vise hele beskrivelsen har kun en visuell effekt.
Salgsoppgaven beskriver vesentlig og lovpålagt informasjon om eiendommen
Se komplett salgsoppgaveNyttige lenker
Nærområdet
Meglerhuset Østlandet AS
Annonseinformasjon
| FINN-kode | 415606754 |
|---|---|
| Sist endret | 15. des. 2025 15:11 |
| Referanse | GAR14.2585 |
Annonsene kan være mangelfulle i forhold til lovpålagt opplysningsplikt. Før bindende avtale inngås oppfordres interessenter til å innhente komplett informasjon fra meglerforetaket, selger eller utleier.




























