Bildegalleri

Velholdt og idyllisk hytte med 3 soverom. Flott utsikt til sjøen. Nær badeplass og alpin anlegg. Innlagt strøm og vann.
- Omkostninger
- 74 360 kr
- Totalpris
- 2 369 360 kr
- Kommunale avg.
- 1 500 kr per år
Nøkkelinfo
- Beliggenhet
- Innlandet
- Boligtype
- Hytte
- Eieform
- Eier (Selveier)
- Internt bruksareal
- 74 m² (BRA-i)
- Bruksareal
- 74 m²
- Tomteareal
- 857 m² (eiet)
- Byggeår
- 1993
- Soverom
- 3
- Rom
- 4
Fasiliteter
Om eiendommen
Om boligen
Familiehytte beliggende i naturskjønne omgivelser. Tilrettelagt for bade-, fiske og vannsportmuligheter sommertid.
Vintertid er det flere mil med langrennsløyper, lysløype og nærhet til akebakke og alpinanlegg i Trysil fjellet.
Søre Osen er en aktiv grend hvor det arrangeres padle regatta, sykkelritt, sommer treff, løp og skirenn.
Dette er et sted hvor hele familien vil trives!
Beliggenhet
Hytta ligger idyllisk til i ei koselig hyttegrend bare noen meter fra Osensjøen. Her kan man både bade, dra på båttur, fiske og drive med vannsportsaktiviteter på sommeren. Vinterstid kan man gå på langrenn, det er milevis med oppkjørte skiløyper og lysløype i nærområdet. Området rundt Osensjøen byr på flott tur- og villmarksopplevelser med mulighet for bad og lek på stranden, bærsanking, småviltjakt, sykkel og fotturer.
Nærmeste matbutikk ligger 1 km unna. Hytta ligger 2,5 timers kjøretur fra Oslo og det er ca. 40km til Trysilfjellets alpin bakker. Trysil har et godt utvalg av butikker og spisesteder. Selv om Trysil er mest kjent for sitt alpinanlegg har det etter hvert etablert seg til et eldorado av aktiviteter, både sommer og vinter med bl.a. sykkelstier, toppturer, golf, rafting og kanopadling i Trysilelva.
Annet
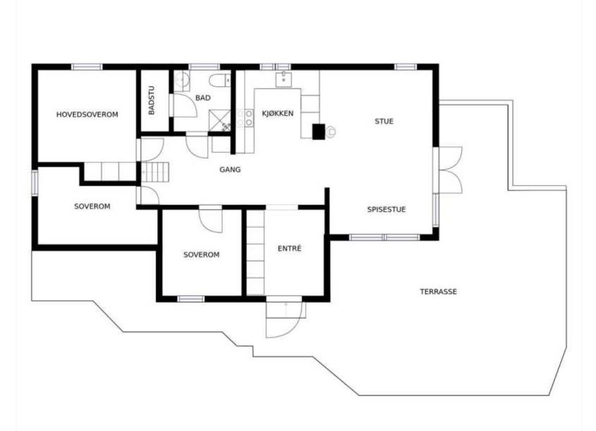
Hytta har 3 romslige soverom og 2 hemser, dette gir mange sengeplasser ved behov. Barna elsker å leke på hemsen. Det er flere garderobe løsninger i hytta som gir godt med plass for oppbevaring.
Hytta har lyse duse farger, moderne innredning og alle fasiliteter. Den er lun, trivelig og hjemmekoselig. De lyse overflatene og den gode takhøyden sammen med takvinduer gir en luftig, åpen og lys atmosfære.
Med sørvendt platting i forbindelse med inngangspartiet, som kobler sammen med terrassen på stue siden, har man mulighet for flere hyggelige uteplasser.
Romslig entree med stor garderobe løsning og flislagt gulv med varme.
Stuen har god plass til sofahjørne og egen spisekrok. Peisovnen gir god og lun varme. Fra stuen har man fin utsikt mot sjøen. Det er lov til diverse vannsports aktiviteter på sjøen som Vannscooter , vannski etc. Det er også tillat å lande med sjøfly.
Kjøkkenet har åpen planløsning med tidløse hvite fronter. Mye skapplass og god arbeidsflate i heltre. Integrert koketopp, ovn, oppvaskmaskin og kjøleskap. Varmtvannsbereder er plassert i benken (115L).
Bad med flislagt gulv med varme og vegger i malt trepanel. Dusjkabinett og servant på skap. I tilknytning til badet er det en liten badstue med gulvbelegg og sitte benk.
Hytta har romslig tomt med mulighet for videre utvikling. Hyggelig sted for bålpanne på baksiden av hytta.
Hytta har i tillegg en bod på 11m2, her har man plass til både vinter og sommer utstyr samt ved.
Privat bilveg helt frem til hytta med parkeringsmulighet på egen tomt.
Vann og avløp deles på hytte 199 og 203, felles brønn og septiktank. Varmekabler til brønn går på strømmåler til hytte 199, utgifter på septiktanken deles på 2. Drikkevannet kan være litt brunt, og misfarget. 3 vannfilter er plassert i samme skap som varmtvannsbereder
Oppvarming. Elektrisk gulv varme i entree og bad, panelovn på soverom, varmepumpe i stue, samt vedfyring. Hytta er godt isolert.
Utleie
Det er mulighet for utleie av hytta. Eier har tidligere leid ut hytta i perioder for ferie opphold. Inntekten varierer, men man kan anta en årlig leie inntekt på 50 000-90 000/ året.
Visning
Husk å lese komplett salgsoppgave før visning.
Meld deg på visning gjennom skjema eller på SMS/telefon til Cecilie 41636041
Omkostninger
15 900 kr (HELP boligkjøperforsikring (valgfritt))
57 370 kr (Dokumentavgift)
545 kr (Tinglysing av pantedokument)
545 kr (Tinglysing av skjøte)
---
74 360 kr (Omkostninger totalt)
---
2 369 360 kr (Totalpris inkl. omkostninger)
NB: Regnestykket forutsetter at det kun tinglyses én låneobligasjon og at eiendommen selges til prisantydning.
Det tas forbehold om endringer i offentlige og private gebyrer.
Selger er selv ansvarlig for følgende gebyr:
545 kr (Panterett med urådighet)
Salgsoppgaven beskriver vesentlig og lovpålagt informasjon om eiendommen
Se komplett salgsoppgaveNyttige lenker
Nærområdet
Propr.no
Annonsene kan være mangelfulle i forhold til lovpålagt opplysningsplikt. Før bindende avtale inngås oppfordres interessenter til å innhente komplett informasjon fra meglerforetaket, selger eller utleier.


































