Bildegalleri

Velkommen til Bekkestuvegen 40 på Eina!
Hytte til jul? Fritidseiendom beliggende like ved Lygnasæter og Einafjorden! Innlagt vann og strøm. Båtplass. Bilveg.
Prisantydning1 700 000 kr
- Omkostninger
- 43 850 kr
- Totalpris
- 1 743 850 kr
- Kommunale avg.
- 5 000 kr per år
- Eiendomsskatt
- 1 828 kr per år
Nøkkelinfo
- Beliggenhet
- Innlandet
- Boligtype
- Hytte
- Eieform
- Eier (Selveier)
- Internt bruksareal
- 51 m² (BRA-i)
- Bruksareal
- 64 m²
- Eksternt bruksareal
- 13 m² (BRA-e)
- Balkong/Terrasse
- 30 m² (TBA)
- Tomteareal
- 1 782 m² (eiet)
- Byggeår
- 1967
- Soverom
- 2
- Energimerking
- F - Oransje
Fasiliteter
Balkong/Terrasse
Barnevennlig
Hage
Peis/Ildsted
Rolig
Bademulighet
Turterreng
Visning
Ta kontakt med megler for å avtale visning.
Husk å lese komplett salgsoppgave før visning. Bestill komplett, utskriftsvennlig salgsoppgave.
VisningspåmeldingOm boligen
Usjenert og landlig beliggende fritidsbolig i naturskjønne omgivelser med kort veg til Einafjorden.
Her finner man en avslappende og rolig atmosfære, og man har et deilig sted å lade egne batterier.
Fritidsboligen har rom for hele familien med sin koselige stue, med plass til både spisebord og sofakrok.
Delvis åpen løsning mellom kjøkken og stue, gir en god romfølelse.
Kjøkkenet er lyst og pent, og et hyggelig sted å tilberede dagens måltider.
Hytta har store vindusflater på flere sider, med mye naturlig lysinnslipp.
God varme på kjølige kvelder med vedfyring.
Fra stuen er det utgang til stor veranda hvor man kan nyte solrike dager og frisk luft.
Det er 2 gode soverom i hytta. Bad med dusj og servant, separat toalettrom.
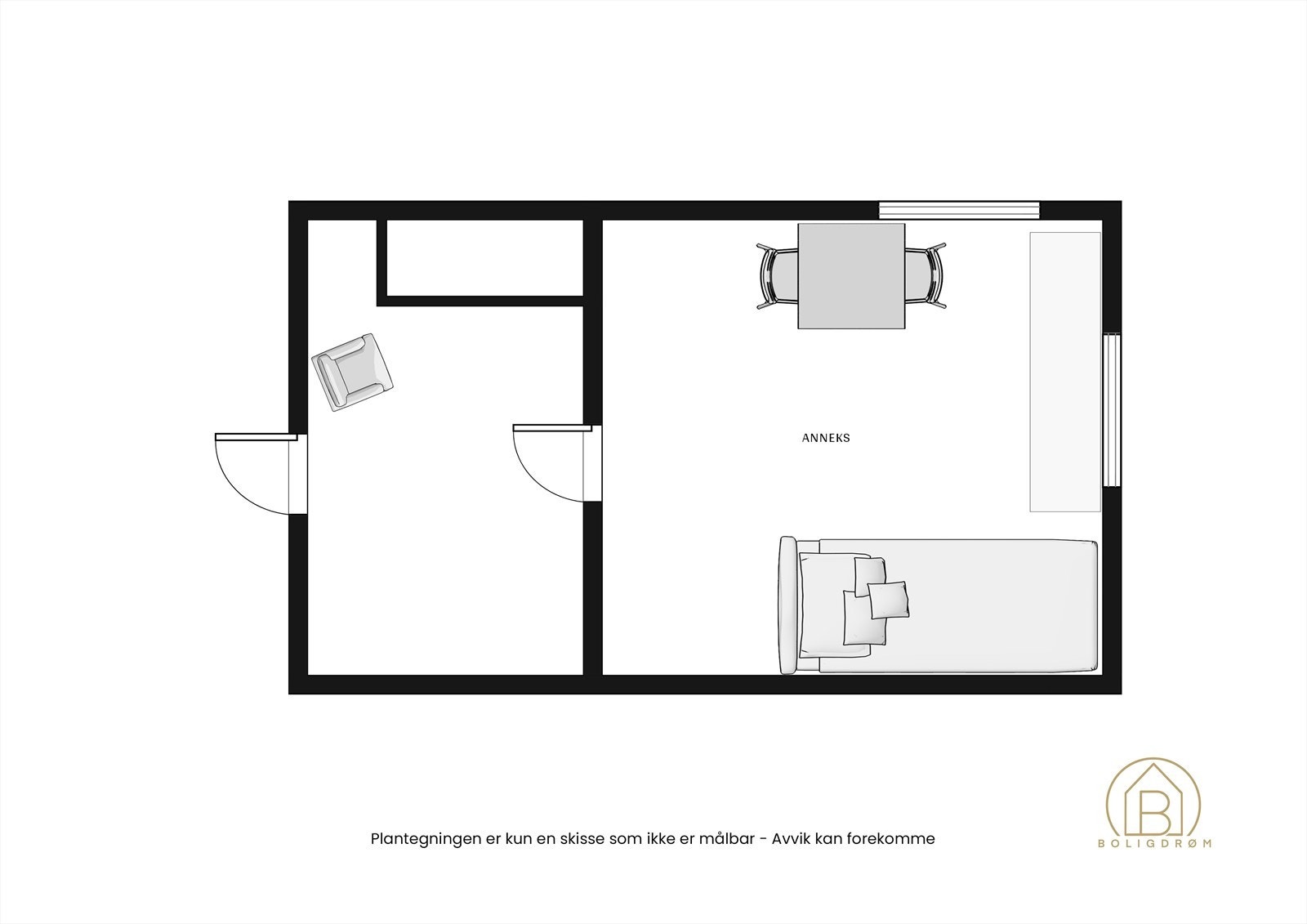
Romslig tomt. Praktisk innredet anneks med to rom.
Her finner man en avslappende og rolig atmosfære, og man har et deilig sted å lade egne batterier.
Fritidsboligen har rom for hele familien med sin koselige stue, med plass til både spisebord og sofakrok.
Delvis åpen løsning mellom kjøkken og stue, gir en god romfølelse.
Kjøkkenet er lyst og pent, og et hyggelig sted å tilberede dagens måltider.
Hytta har store vindusflater på flere sider, med mye naturlig lysinnslipp.
God varme på kjølige kvelder med vedfyring.
Fra stuen er det utgang til stor veranda hvor man kan nyte solrike dager og frisk luft.
Det er 2 gode soverom i hytta. Bad med dusj og servant, separat toalettrom.
Romslig tomt. Praktisk innredet anneks med to rom.
NB: Knappen for å vise hele beskrivelsen har kun en visuell effekt.
NB: Knappen for å vise hele beskrivelsen har kun en visuell effekt.
Salgsoppgaven beskriver vesentlig og lovpålagt informasjon om eiendommen
Se komplett salgsoppgaveNærområdet
Aktiv Gjøvik Land Toten
Annonseinformasjon
| FINN-kode | 414064538 |
|---|---|
| Sist endret | 19. des. 2025 07:51 |
| Referanse | 1209250087 |
Annonsene kan være mangelfulle i forhold til lovpålagt opplysningsplikt. Før bindende avtale inngås oppfordres interessenter til å innhente komplett informasjon fra meglerforetaket, selger eller utleier.















































