Bildegalleri

Velkommen til Liesvegen 49! Foto: Efkt
Helårshytte med 2 soverom - Anneks og fin uteplass - Familievennlig ved Leikarvoll - 10 min fra Dokka sentrum
Prisantydning1 350 000 kr
- Omkostninger
- 35 100 kr
- Totalpris
- 1 385 100 kr
- Kommunale avg.
- 9 227 kr per år
- Eiendomsskatt
- 1 695 kr per år
Nøkkelinfo
- Beliggenhet
- Innlandet
- Boligtype
- Hytte
- Eieform
- Eier (Selveier)
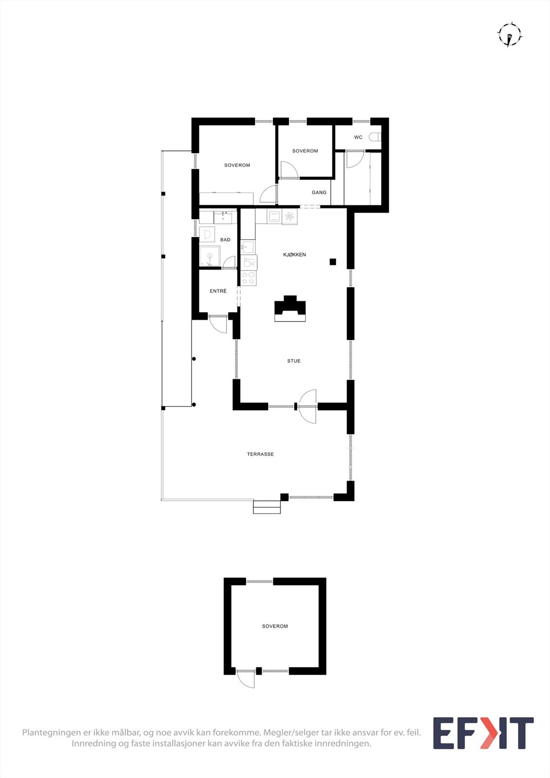
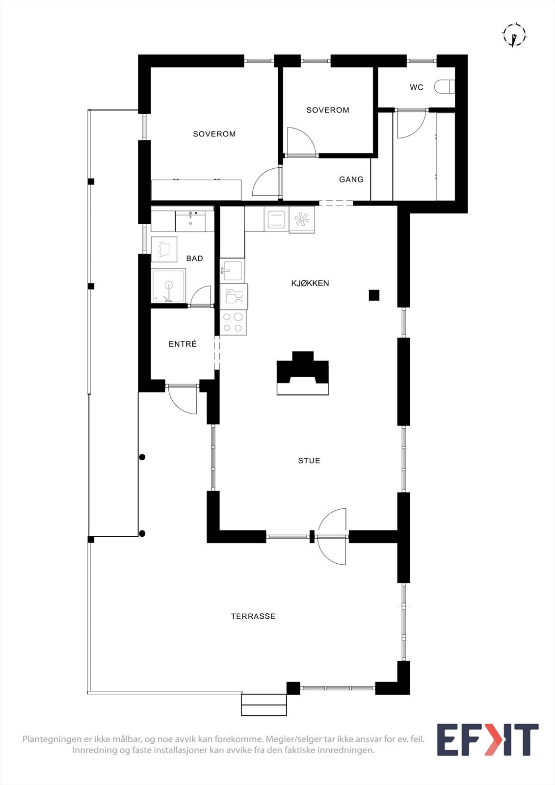
- Internt bruksareal
- 60 m² (BRA-i)
- Bruksareal
- 76 m²
- Eksternt bruksareal
- 16 m² (BRA-e)
- Balkong/Terrasse
- 43 m² (TBA)
- Tomteareal
- 1 000 m² (eiet)
- Byggeår
- 1970
- Soverom
- 2
- Energimerking
- G - Rød
Fasiliteter
Balkong/Terrasse
Barnevennlig
Bilvei frem
Hage
Peis/Ildsted
Rolig
Innlagt strøm
Turterreng
Visning
Ved annonsert visning er det viktig at du melder deg på visningen ved å bruke visningspåmeldingsknappen eller kontakter megler. Annonserte visninger hvor det ikke er noen påmeldte innen kl. 15.00 dagen før visningsdagen vil ikke bli avholdt.
Ta kontakt for å avtale visning utover oppsatt fellesvisning.
Husk å lese komplett salgsoppgave før visning. Bestill komplett, utskriftsvennlig salgsoppgave.
VisningspåmeldingOm boligen
Velholdt og koselig hytte for helårsbruk beliggende i rolige omgivelser i Dæhliebygda, bare 10 minutter fra Dokka sentrum.
Hytta har blant annet strøm, vann, to soverom pluss et anneks, og fin terrasse med god plass til møblering.
Nærområdet byr på flotte turmuligheter året rundt. Et familievennlig fristed med både ro og aktivitet rett utenfor døra.
I nærmiljøanlegget på Leikarvoll finnes det fotballbane med gress og sandvolleyballbane for sommeraktiviteter.
Lysløype, skøytebane, akebakke med heis og hoppbakke for vinteraktiviteter.
Hytta har blant annet strøm, vann, to soverom pluss et anneks, og fin terrasse med god plass til møblering.
Nærområdet byr på flotte turmuligheter året rundt. Et familievennlig fristed med både ro og aktivitet rett utenfor døra.
I nærmiljøanlegget på Leikarvoll finnes det fotballbane med gress og sandvolleyballbane for sommeraktiviteter.
Lysløype, skøytebane, akebakke med heis og hoppbakke for vinteraktiviteter.
NB: Knappen for å vise hele beskrivelsen har kun en visuell effekt.
NB: Knappen for å vise hele beskrivelsen har kun en visuell effekt.
Salgsoppgaven beskriver vesentlig og lovpålagt informasjon om eiendommen
Se komplett salgsoppgaveNærområdet
Aktiv Gjøvik Land Toten
Annonseinformasjon
| FINN-kode | 413534158 |
|---|---|
| Sist endret | 11. feb. 2026 12:19 |
| Referanse | 1209250115 |
Annonsene kan være mangelfulle i forhold til lovpålagt opplysningsplikt. Før bindende avtale inngås oppfordres interessenter til å innhente komplett informasjon fra meglerforetaket, selger eller utleier.

























