Bildegalleri

Bergsdalsvegen 747 presentert av Proaktiv Eiendomsmegling.
Koselig hytte med idyllisk og attraktiv beliggenhet i Bergsdalen. Solrikt og usjenert med strålende utsikt.
Prisantydning1 490 000 kr
- Omkostninger
- 52 600 kr
- Totalpris
- 1 542 600 kr
- Kommunale avg.
- 463 kr per år
- Eiendomsskatt
- 3 382 kr per år
- Formuesverdi
- 342 628 kr
Nøkkelinfo
- Beliggenhet
- På fjellet
- Boligtype
- Hytte
- Eieform
- Eier (Selveier)
- Internt bruksareal
- 54 m² (BRA-i)
- Bruksareal
- 54 m²
- Balkong/Terrasse
- 50 m² (TBA)
- Tomteareal
- 90 m² (festet)
- Festeavgift
- 3 135 kr
- Byggeår
- 1981
- Soverom
- 3
- Rom
- 4
- Energimerking
- G - Oransje
Fasiliteter
Balkong/Terrasse
Peis/Ildsted
Rolig
Utsikt
Fiskemulighet
Innlagt strøm
Turterreng
Visning
For at vår megler og selger skal kunne gi deg den beste oppfølgingen og kjøpsopplevelsen er det obligatorisk påmelding til alle våre visninger. Dersom ditt reserverte tidspunkt likevel ikke kan benyttes trenger vi beskjed så tidlig som mulig sånn at vi kan finne en alternativ løsning. Vi har alltid tid til deg. Visninger uten påmeldte deltagere avlyses.
Husk å lese komplett salgsoppgave før visning. Bestill komplett, utskriftsvennlig salgsoppgave.
VisningspåmeldingOm boligen
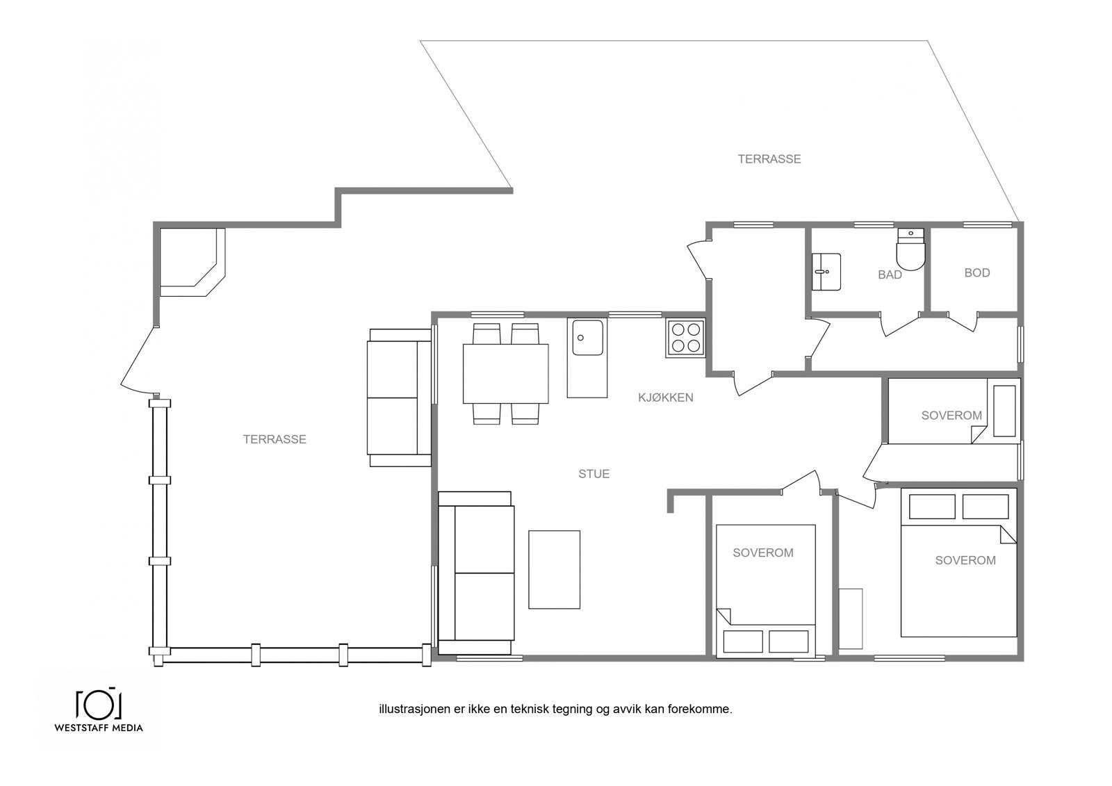
Attraktiv og populær beliggenhet på idyllisk naturtomt, i solrike og usjenerte omgivelser i Bergsdalen. Hytten ligger meget fint til i terrenget og har en god planløsning. Eiendommen ligger 455 moh, 12 min. fra Dale og ca. 50 min. fra Voss. Nydelig utsikt fra hytten oppover Bergsdalen og området rundt. Her ligger alt til rette for et allsidig friluftsliv, med gode tur- og fiskemuligheter. Midtsommers har man sol på eiendommen fra morgenen av til ca. kl. 19:30. Hytten har et romslig inngangsparti, hyggelig stue med plass til sofagruppe og spisebord, effektivt og funksjonelt kjøkken i åpen løsning med stuen, tre soverom og toalettrom. Entré og bad har fliser på gulv, med varmekabler på bad. Innvendig bod og utvendig frittstående bod. Stor, delvis overbygget terrasse med utepeis. Velkommen!
NB: Knappen for å vise hele beskrivelsen har kun en visuell effekt.
NB: Knappen for å vise hele beskrivelsen har kun en visuell effekt.
Salgsoppgaven beskriver vesentlig og lovpålagt informasjon om eiendommen
Se komplett salgsoppgaveNyttige lenker
Nærområdet
Proaktiv Eiendomsmegling Voss
Alltid tid til deg
Annonseinformasjon
| FINN-kode | 413191264 |
|---|---|
| Sist endret | 09. feb. 2026 23:59 |
| Referanse | 1140260013 |
Annonsene kan være mangelfulle i forhold til lovpålagt opplysningsplikt. Før bindende avtale inngås oppfordres interessenter til å innhente komplett informasjon fra meglerforetaket, selger eller utleier.



















































