Bildegalleri

Fritidsboligen har en fantastisk beliggenhet preget av natur og grønne arealer.
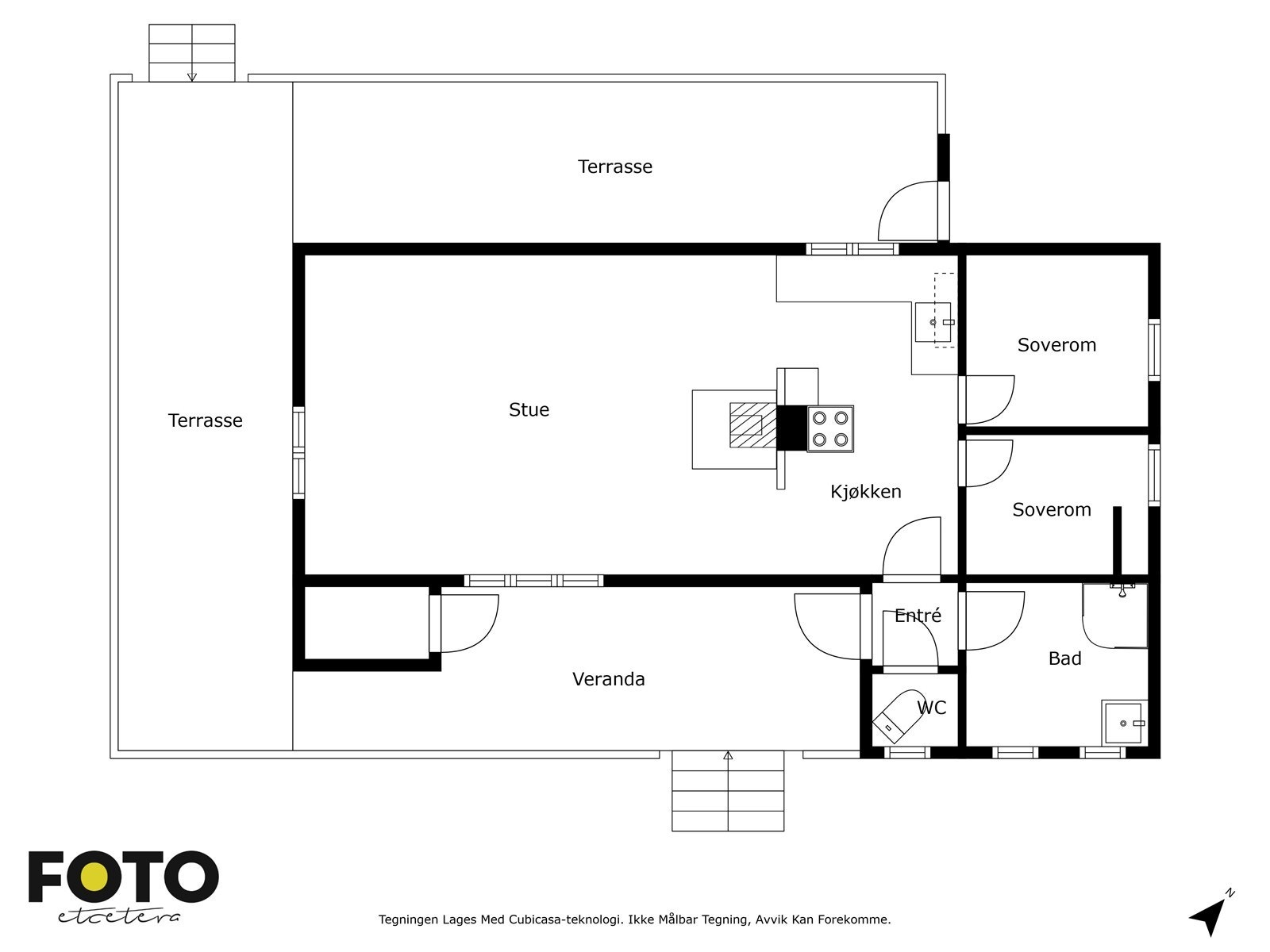
Flott fritidsbolig beliggende på naturrike Tveitåsen! - 2 soverom og 60 kvm med terrasser! - Stor tomt.
Prisantydning750 000 kr
- Omkostninger
- 21 090 kr
- Totalpris
- 771 090 kr
- Kommunale avg.
- 6 219 kr per år
- Eiendomsskatt
- 1 279 kr per år
Nøkkelinfo
- Beliggenhet
- Innlandet
- Boligtype
- Hytte
- Eieform
- Eier (Selveier)
- Internt bruksareal
- 58 m² (BRA-i)
- Bruksareal
- 63 m²
- Eksternt bruksareal
- 5 m² (BRA-e)
- Balkong/Terrasse
- 60 m² (TBA)
- Tomteareal
- 4 559 m² (eiet)
- Byggeår
- 1979
- Soverom
- 2
- Rom
- 3
- Energimerking
- G - Rød
Fasiliteter
Balkong/Terrasse
Barnevennlig
Garasje/P-plass
Hage
Kabel-TV
Peis/Ildsted
Rolig
Turterreng
Visning
Ønsker du å delta på visningen ber vi om at du melder deg på slik at vi vet at du kommer. På den måten kan vi bistå alle best mulig, og gi deg tid på visningen. Visningen avholdes bare dersom det er påmeldte. Vi møtes 15 min før visning utenfor bommen. Ta gjerne kontakt med megler på telefon 993 50 917 før visningen, hvis du har noen spørsmål. Velkommen!
Husk å lese komplett salgsoppgave før visning. Bestill komplett, utskriftsvennlig salgsoppgave.
VisningspåmeldingOm boligen
Tveitåsen 129 presenteres av Sonia Tajdus v/Eiendomsmegler 1
Fritidseiendommen har en innholdsrik og praktisk planløsning, med både innvendig bad og eget toalettrom. Her får du hele 60 kvadratmeter solrik terrasse, perfekt for avslapning og sosiale sammenkomster. Eiendommen ligger på en stor tomt på 4,5 mål, som byr på gode solforhold og rikelig med plass til uteaktiviteter.
Velkommen på visning!
Fritidseiendommen har en innholdsrik og praktisk planløsning, med både innvendig bad og eget toalettrom. Her får du hele 60 kvadratmeter solrik terrasse, perfekt for avslapning og sosiale sammenkomster. Eiendommen ligger på en stor tomt på 4,5 mål, som byr på gode solforhold og rikelig med plass til uteaktiviteter.
Velkommen på visning!
NB: Knappen for å vise hele beskrivelsen har kun en visuell effekt.
NB: Knappen for å vise hele beskrivelsen har kun en visuell effekt.
Salgsoppgaven beskriver vesentlig og lovpålagt informasjon om eiendommen
Se komplett salgsoppgaveNyttige lenker
Nærområdet
EiendomsMegler 1 Moss
Annonseinformasjon
| FINN-kode | 412960915 |
|---|---|
| Sist endret | 10. feb. 2026 13:08 |
| Referanse | 5230250134 |
Annonsene kan være mangelfulle i forhold til lovpålagt opplysningsplikt. Før bindende avtale inngås oppfordres interessenter til å innhente komplett informasjon fra meglerforetaket, selger eller utleier.


















