Bildegalleri

Velkommen til en koselig hytte i vakre omgivelser!
Solrik hytte m/strandlinje, egen brygge og praktfull utsikt. 2 separate etasjer. Mulighet for vann og avløp. Idyllisk!
- Omkostninger
- 82 840 kr
- Totalpris
- 2 572 840 kr
- Kommunale avg.
- 4 491 kr per år
- Formuesverdi
- 133 056 kr
Pris på lån: fra 10 656 kr/mnd
Eff.rente 6,11 %. 1 494 000 o/20 år. Kostnad: 1 063 440 kr. Totalt 2 557 440 kr.
LånekalkulatorNøkkelinfo
- Beliggenhet
- Ved sjøen
- Boligtype
- Hytte
- Eieform
- Eier (Selveier)
- Internt bruksareal
- 41 m² (BRA-i)
- Bruksareal
- 79 m²
- Eksternt bruksareal
- 38 m² (BRA-e)
- Balkong/Terrasse
- 44 m² (TBA)
- Tomteareal
- 1 m² (festet)
- Festeavgift
- 10 000 kr
- Byggeår
- 1990
- Soverom
- 1
- Rom
- 2
- Energimerking
- E - Oransje
Fasiliteter
Visning
Husk å lese komplett salgsoppgave før visning. Bestill komplett, utskriftsvennlig salgsoppgave.
VisningspåmeldingOm boligen
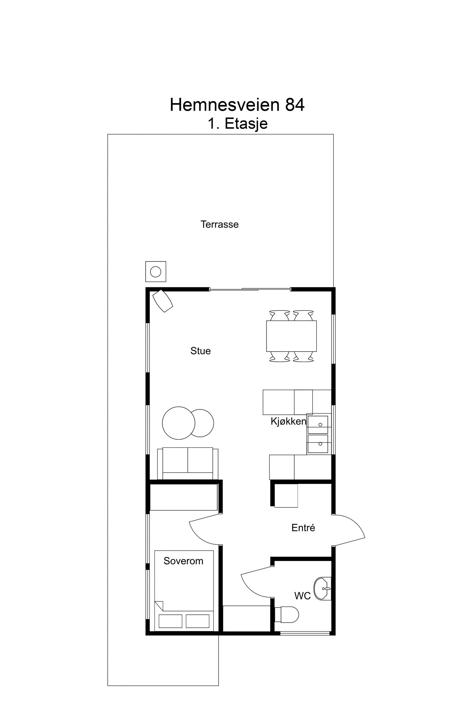
Hemnesveien 84 er en enkel hytte med primærfasiliteter i 1. etasje og eget kjøkken i en separat kjeller. Med strandlinje og egen brygge ved Lysern, er alt tilrettelagt for pur sommeridyll med bading, båtliv og fiske - uten å forlate egen tomt. Plasseringen gir fri og helt magisk utsikt mot innsjøen og alt det grønne. Gode solforhold setter prikken over i'en, og nytes best på en romslig terrasse vendt mot sydøst. Strøm er innlagt, og hytta har mulighet for vann og avløp.
I 1. etasje finner man en lys og hyggelig stue med vedovn, der kjøkkenet har fin skapplass og barløsning som samlingspunkt. Etasjen består ellers av et soverom med skap, en gang med garderobeskap og et wc-rom med forbrenningstoalett fra 2020. Det følger med en p-plass ved veien, og herfra er det en gangsti ned til hytta.
Salgsoppgaven beskriver vesentlig og lovpålagt informasjon om eiendommen
Se komplett salgsoppgaveNyttige lenker
Nærområdet
PrivatMegleren Ski-Ås
Annonseinformasjon
| FINN-kode | 412835338 |
|---|---|
| Sist endret | 05. okt. 2025 02:17 |
| Referanse | 309250167 |
Annonsene kan være mangelfulle i forhold til lovpålagt opplysningsplikt. Før bindende avtale inngås oppfordres interessenter til å innhente komplett informasjon fra meglerforetaket, selger eller utleier.















































