Bildegalleri

Modell 1214 med takbord
Brokke - Flott prosjektert hytte på Kvisletoppen Sør
- Omkostninger
- 90 920 kr
- Totalpris
- 4 640 920 kr
Nøkkelinfo
- Beliggenhet
- På fjellet
- Boligtype
- Hytte
- Soverom
- 4
Fasiliteter
Visning
Ta kontakt for å avtale visning.Om eiendommen
Beliggenhet
To timer fra Kristiansand, i Setesdal, ligger Brokke. Brokke er Sørlandets nyeste vinterdestinasjon. Her kan du oppleve ekte skiglede uansett alder eller ferdigheter.
Skibakkene på Brokke er blant Sørlandets flotteste, og terrengparken har blant annet et av Norges største Big-Jump og eget trekk. For de minste tilbyr Brokke et barnebånd på 50 meter med to løyper. I tillegg til preparerte løyper, er det også fantastiske muligheter for frikjøring.
Om sommeren finn du kilometer på kilometer med vidder fulle av multer og bær. Her er toppturer, sykkelstier og merkede turløyper. Vil du bade er det mange vann å velge mellom, enten du vil stupe og skli i kulpene eller bade i et tjern helt for deg selv. Det er også mulighet for klatreturer og en Via Ferrata ligg like rundt hjørnet.
Kvisletoppen Sør er et flott solrikt hyttefelt på Brokke. Denne prosjekterte hytta er planlagt på tomt nr. 9
På nettsiden brokke.com, facebook eller på instagram finner du mange nyttige opplysninger om området på Brokke og aktiviteter der.
Generelt
Eiken Hytter AS har prosjektert en nøkkelferdige fritidsbolig for denne tomten på Kvisletoppen Sør.
Eiken Hytter AS har mange modeller med ulike størrelser fra 50 til 150m2. som også kan være alternative bygg på denne tomten.
Se vår hjemmeside www.eikenhytter.no
NB! Salgspris inkluderer tomt og opparbeidelse av tomt.
Adkomst/Tomteforhold
Brokke ligger i Valle kommune, midt i Setesdal. Kun 5 minutt fra riksvei 9.
Fra Brokke er det 148 km til Kristiansand.
Tomtene leveres som selveiertomt med høy standard.
Forbehold og omkostninger
Omkostninger
Dok.avg. til staten, 2,5% av tomteverdien: kr. 14 750,-
Tinglysning av hjemmelsdok.: kr. 585,-
Tinglysning av pantedok.: kr. 585,-
Tilkoblingsavgift vann/avløp: kr. 75 000,-
Sum omkostninger: kr. 90 920,-
Forbehold
Prisen er pr. 12.01.26, og det tas vanlig forbehold om prisstigning på byggesettet fram til levering.
Innhold
Innhold i modell 1214:
1. Etg: Entré, 2 soverrom, 1x dusj/bad/wc, stue/kjøkken og bod med egen inngang
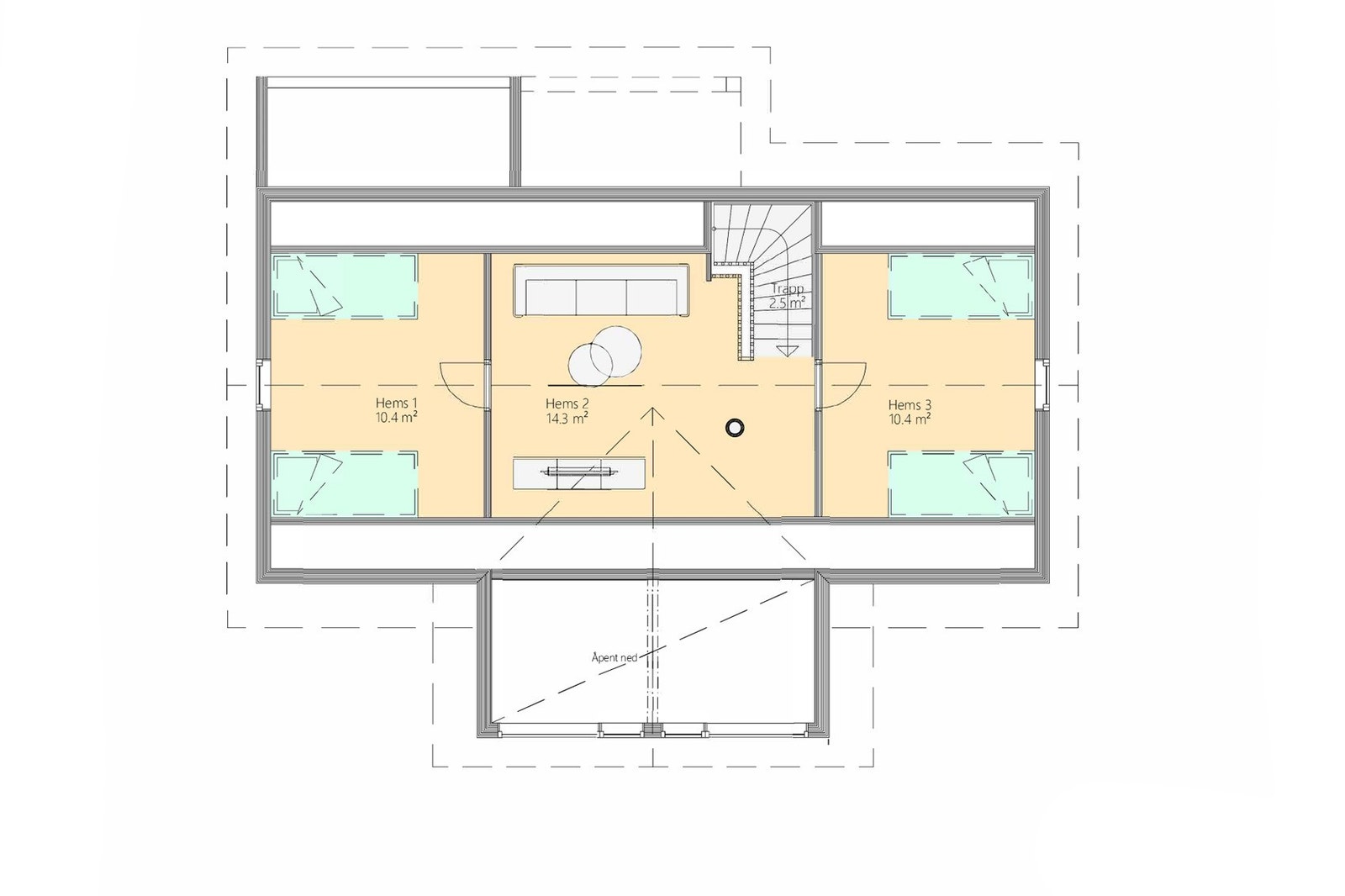
2. Etg: 2 soverrom, loftstue/hems
Standard
Følgende er inkludert i leveransen fra Eiken Hytter:
- Fundament, støpt plate på mark med radonduk.
- Utvendig grunnet kledning, med impregnerte belistning og vindskier.
- Nordan vinduer og ytterdører.
- Dimensjonert for torv, leveres med royal imp. takbord.
- Utvendig terrasser uten rekkverk.
- Berry Alloc Original på golv i rom, som ikke viser flis.
- Våtromsplater Fibo Tresbo på vegger bad.
- Interiørbeiset innvendig panel, listverk, trapp/rekkverk og dører.
- Komplett montering og tømrerarbeider inklusive rigg/drift.
- EL installasjon ihht. NEK 400:2018 (399)
- Varmekabler på golv i rom med fliser.
- Oppgradert el pakke med sorte kontakter/brytere.
- VVS installasjon inklusive innredning bad.
- Fliser på golv, som vist på tegning, med membran og sokkelflis i våtrom.
- Strai kjøkkeninnredning med hvitevarer – ferdig montert.
- Stålpipe med ovn ferdig montert.
- Tegninger og prosjektering.
- Byggemelding inklusive FDV dokumentasjon og ferdigattest.
- Forsikring i byggeperioden.
- Garantier i henhold til Bustadoppføringslova.
- Frakt m/kraning.
- Prosjekt ledelse.
Ta kontakt med megler for komplett informasjon
Nærområdet
Eiken Hytter AS
Annonseinformasjon
| FINN-kode | 412335041 |
|---|---|
| Sist endret | 25. feb. 2026 13:59 |
| Referanse | Brokke25-1214 |
Annonsene kan være mangelfulle i forhold til lovpålagt opplysningsplikt. Før bindende avtale inngås oppfordres interessenter til å innhente komplett informasjon fra meglerforetaket, selger eller utleier.













