Bildegalleri

Illustrasjon av prosjektert hytte utvendig
Hytte med panorama utsikt ved Bjønnåsen hyttetun midt i Telemark
- Omkostninger
- 13 750 kr
- Totalpris
- 3 908 750 kr
Nøkkelinfo
- Beliggenhet
- På fjellet
- Boligtype
- Hytte
- Soverom
- 4
Fasiliteter
Visning
Ta kontakt for å avtale visning.Om eiendommen
Beliggenhet
Henneseid, 3750 Drangedal
Velkommen til Bjønnåsen! Hytta er prosjektert av Eiken Hytter som fritidsbolig i feltet. Du har muligheten til å kjøpe en komplett hytte til en svært fordelaktig pris.
Les mer om Eiken Hytter på www.eikenhytter.no
Bjønnåsen hyttetun ligger i fredelige og naturskjønne omgivelser og består av 3 felt, Bjønnåsen, Langbråthen og Blåbærheia.
Det er store solrike tomter som er vestvendt og det er god avstand mellom hyttene. Tomtene ligger flott til med nydelig utsikt og nær adkomst til vannet.
Generelt
I området er det mange muligheter for et aktivt friluftsliv og det er flere oppmerkede turstier og utsiktspunkt.
De flotte skogsbilveiene rundt om på feltet og Henseid egner seg godt for sykling.
Innsjøen Toke bugner av flott ørret, abbor og sik.
I skogområdene rundt kan man høste alle typer sopp og skogsbær.
Brygge og badeanleggene er et perfekt utgangspunkt for utflukter med båt.
Med sine 365 øyer er Toke spesielt godt egnet til spennende oppdagelsesturer med kano og kajakk. Blant annet Storøy hvor Farmen ble spilt inn, ligger ikke langt unna.
Ta kontakt med grunneier Peder Rønningen for en hyggelig prat og visning av tomtene.
Tlf: 97171553 eller Heidi Rønningen tlf: 97161674
Adkomst/Tomteforhold
Kjøreavstander:
Fra Drangedal sentrum er det 17km
Fra Kragerø er det 40km
Fra Gautefallheia er det 40km
Fra Porsgrunn er det 37 km.
Du finner hyttetunet ved å ta av fra fylkesvei 356 ca 1km fra Henneseid i retning Skien/Porsgrunn.
Tomtene er tilkoblet strøm, vann, avløp og fibernett.
Forbehold
Prisen er pr. 02.05.2025, og det tas vanlig forbehold om prisstigning på byggesettet fram til levering.
Omkostninger: Dokumentavgift til staten (13 750), tinglysingsgebyr for skjøte, pantedokument samt panteattest.
Byggesaksgebyr til kommunen, byggestrøm, avfallshåndtering og utvendig beis dekkstrøk er ikke inkludert i leveransen.
Innhold
1. etg.:
Fra overbygd inngangsparti, kommer man inn i en hall, med trapp opp til hemsen. Her har man også inngang til bad, fra hovedrommet kan man gå inn til et stort og et mindre soverom. Videre er det en stor og luftig stue med åpen kjøkkenløsning, og ekstra store vindusflater som slipper inn mye lys og gir en luftig og god romfølelse. I tillegg er det en sportsbod som ligger med egen inngang under takutstikk på utsiden av hytta.
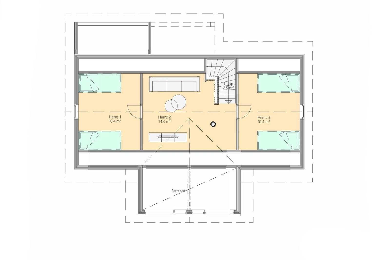
2. etg.:
Her finner man en hems med loftstue og to store soverom.
Hytta har et bruksareal (BRA) på 67,6 m2 i første etasje og 39,6 m2 golvareal på hemsen
Standard
Følgende er inkludert i standard leveransen fra Eiken Hytter:
- Tomt og opparbeidelse klar til støpearbeid
- Fundament, Støpt plate på mark med radonduk.
- Komplett bygg iht standard materialbeskrivelse.
- Berry Alloc Original med underlag til alle rom unntatt bad/hall/vf som har flislagt gulv
- Våtromsplater Fibo Tresbo på vegger på badet
- Utvendig terrasser uten rekkverk
- Komplett montering og snekkerarbeider inklusive rigg/drift
- Prosjekt ledelse
- EL installasjon iht. NEK 400:2018
- VVS installasjon inklusive innredning bad
- Kjøkkeninnredning
- Fliser, membran og flislegging m/sokkelflis på bad
- Stålpipe med ovn ferdig montert
- Byggemelding inklusive FDV dokumentasjon og ferdigattest
- Tegninger og prosjektering
- Forsikring i byggeperioden
- Garantier i henhold til Bustadoppføringslova
- Frakt m/kraning
Hytta er oppgradert med følgende tillegg, utover det som inngår i standard materialbeskrivelse:
- Oppgradert kjøkken fra Strai Kjøkken og inkludert hvitevarer
- Interiørbeiset panel og listverk i alle rom
- Oppgradert el pakke med sorte kontakter/brytere
- Interiørbeiset trapp
- Interiørbeiset innvendige dører
Ta kontakt med megler for komplett informasjon
Nærområdet
Eiken Hytter AS
Annonseinformasjon
| FINN-kode | 412218481 |
|---|---|
| Sist endret | 11. juni 2025 13:34 |
| Referanse | Bjonnaasen25-t14 |
Annonsene kan være mangelfulle i forhold til lovpålagt opplysningsplikt. Før bindende avtale inngås oppfordres interessenter til å innhente komplett informasjon fra meglerforetaket, selger eller utleier.



















