Bildegalleri

En moderne arkitekttegnet hytte med store vindusflater som gir deg utsikt fra både kjøkken, stue og hovedsoverom - her lever du tett på naturen.
Eksklusiv arkitekttegnet fjellhytte. Tomt med spektakulær utsikt og lang solgang! Ski inn/ut langrenn, 4 sov, 3 bad.
- Omkostninger
- 86 350 kr
- Totalpris
- 17 546 350 kr
Nøkkelinfo
- Beliggenhet
- På fjellet
- Boligtype
- Hytte
- Eieform
- Eier (Selveier)
- Internt bruksareal
- 208 m² (BRA-i)
- Bruksareal
- 223 m²
- Eksternt bruksareal
- 15 m² (BRA-e)
- Tomteareal
- 1 444 m² (eiet)
- Soverom
- 4
- Rom
- 5
- Sengeplasser
- 10
Fasiliteter
Visning
Ta kontakt for å avtale visning.Husk å lese komplett salgsoppgave før visning. Bestill komplett, utskriftsvennlig salgsoppgave.
Om eiendommen
Kort om eiendommen
Velkommen til Solhovda på Kikut - der sol, utsikt og fjell møter hyttedrømmen!
På vakre Kikut ligger Solhovda perfekt til - høyt og solrikt, med optimale solforhold fra morgen til kveld. Her får du følelsen av å være på fjellets tak, med et imponerende panorama som omkranser tomtene fra alle kanter.
Fra tomten kan du se majestetiske Hallingskarvet, Reineskarvet og Skurdalsfjorden - og du ser helt innover mot Hardangervidda. Dette er et sted der naturen setter rammen for en hytteopplevelse utenom det vanlige.
Alle tomtene har bilvei helt frem, og langrennsløypa slynger seg både gjennom feltet og langs hele nordsiden. Her får du ekte høyfjellsfølelse - med frihet, ro og spektakulær natur rett utenfor døren.
Denne arkitekttegnede laftehytta kombinerer moderne og gjennomtenkt design med rå naturopplevelser - rett utenfor døra. Store vindusflater slipper naturen inn og gir deg en praktfull utsikt. Her har du ski-in/ski-out, høy komfort og en planløsning som formes etter dine behov.
Hytten er tegnet av det anerkjente arkitektkontoret R21 Arkitekter, og kan stå klar til julen 2025. Du får en sjelden mulighet til å være med fra start og påvirke både uttrykk, materialvalg og interiør - slik at hytta virkelig blir din.
En hytte som ikke bare ser eksklusiv ut - men føles sånn, hver gang du er der.
Beskrivelse
Gjennom et tett samarbeid har K1 Hytter og R21 Arkitekter utviklet en byggemetode som bringer et nytt språk inn i hyttearkitekturen. Metoden forener klassisk laftehåndverk med moderne arkitekturprinsipper, og åpner for løsninger med store vindusflater og elegante takutstikk. Resultatet er hytter som kombinerer funksjon, særpreg og en naturlig tilknytning til omgivelsene.
K1 Hytter bygges med K-laft - et fremtidsrettet byggemateriale som bringer naturens kraft inn i fremtidens bygg.
Det unike tømmeret er laget av førsteklasses furu fra nordiske skoger. Tømmeret setter seg ikke over tid, noe som åpner opp for helt nye arkitektoniske muligheter. K-laft er hentet fra skoger som forvaltes på en bærekraftig måte, og produseres i hjertet av Norge.
Innhold
Pris inkluderer K1 laftet hytte og utvendig bod ferdig oppsatt på tomta, samt graving og betong.
I tillegg til annonsert pris tilkommer også engangskostnader og årlige kostnader i forbindelse med tomtekjøpet og drift av hytta.
Kostnader vil kunne variere basert på hyttas størrelse, tomtens plassering og kommunale reguleringer.
Dette vil være for eksempel:
Omkostninger ved tomtekjøp (se beløp under omkostninger øverst i annonsen)
Byggesakgsgebyr i kommunen kr 20 700
Tiknytning VA , kr 40 250
Renovasjon og byggestrøm i byggeperioden: ca. kr 65 000
Fastledd vannforsyning, kr 4 168
Forbruksgebyr etter målt (eller stipulert) forbruk: pr m³: 25,51 kr
Fastledd for avløp; kr 3 847
Forbruksgebyr etter målt (eller stipulert) forbruk: pr m³: 32,07kr
Vannmålerleie pr. måler og år: kr 281,- (gebyr ved manglende avlesing: kr. 500,-)
Årsavgift renovasjon, kr 3 069
Årlige kostnader og andre ekstra kostnader
Årlig kostnad for ski og løypelag pr. år ca. 1 000
Det tas forbehold om feil i overnevnte tilleggskostnader og årlige gebyrer. Overnevnte beløp kan endres årlig.
Det må påregnes årlige kostnader til drift, og for å holde hytta i orden, herunder og som eksempel: Strømkostnader, abonnement/bruksavgift for renovasjon, vann og avløp, evt. eiendomsskatt, feieavgift, velkontingent, årlig kostnad for andel bruk og brøyting/vedlikehold av veier, bidrag til løypekjøring og trivselstiltak. Listen over er ikke uttømmende og vi oppfordrer til å sjekke kommunens hjemmesider.
Standard
Hytta leveres med nøkkelferdig leveranse som inneholder:
Alle materialer, transport og montering som gjelder snekker og tømrerarbeider, samt byggesøknad og byggeledelse til snekkerferdig bygg. Rigg og drift (søppelcontainer, stillaser, avfukter etc.) samt overnatting montører.
Generelt:
Isolert ringmur og støpt gulv, ringmur forblendes med Corten stål.
Hytta bygges i K-laft, som er laminerte 8 tomms trestokker og med tretak.
Vinduer fra Nordvestvinduet.
Innvendig benyttes limtrepanel, eikegulv, flislagt bad med 60x60cm fliser, Innredninger produsert av Volden i Valdres.
Oppvarming:
Vannbåren gulvarme i begge etasjer, brønnboring og varmepumpe.
Brunner peis.
Elektrisk:
Kontakter og brytere leveres med sort utførelse
Plejd styring.
Opplegg og montering av ZaptecGo elbil lader.
Ta kontakt med Roy Magne Storholm for mer informasjon om innholdet i leveransen.
Beskaffenhet
Solhovda ligger på ca. 1000 meter over havet, i høyfjellsterreng med gode solforhold.
Området er planlagt og utviklet med omtanke for terreng og landskap, hvor hver enkelt tomt er tilpasset naturlige forhold.
Tomtene har romslige størrelser og god adkomst via bilvei frem til hver enkelt tomt.
Utsikten er storslått, med panorama mot blant annet Hallingskarvet og Hardangervidda.
De høyeste punktene i området er bevisst skånet for utbygging for å unngå silhuettvirkning og bevare det naturlige landskapsbildet.
Beliggenhet
Tomten ligger solrikt til og med flott utsikt på Kikut Sør ved Geilo.
Her får du storslått utsikt over Skurdalsfjorden og majestetiske fjell, med solrike forhold hele året. Et unikt og ettertraktet område - perfekt for hyttelivet.
Ski rett fra hyttedøra!
Gå rett ut i løypene - her starter langrennsturen ved døra. Det velpreparerte løypenettet byr på noe for både nybegynnere og erfarne skiløpere.
Opplevelser for hele familien - året rundt!
Kun en kort kjøretur unna finner du Geilo Fjellandsby og Kikutheisene, med skiutleie, skishop og familievennlig alpintilbud. Nyt lunsj på populære Kikutkroa i hyggelige omgivelser.
Sommer og høst i fjellet
Når snøen smelter, åpner området for fotturer, fiske og bading i fjellvann. En høydepunkt er turen opp Prestholtrappen - en sherpatrapp som leder deg mot Hallingskarvet.
Bare 10 minutter fra Geilo sentrum hvor du finner du alt du trenger: restauranter, kino, shopping, afterski, spa og treningssenter. Togforbindelse til både Oslo og Bergen gjør det enkelt å komme seg hit.
Geilo - en helårsdestinasjon!
Vinter: Alpinanlegg, langrenn, hundekjøring, kiting og isfiske.
Sommer: Fotturer, sykling, downhill, fjellridning og rafting - rett ved Hardangervidda.
Solhovda på Kikut - for deg som søker det beste av natur, arkitektur og opplevelser.
Beskrivelse (type bolig)
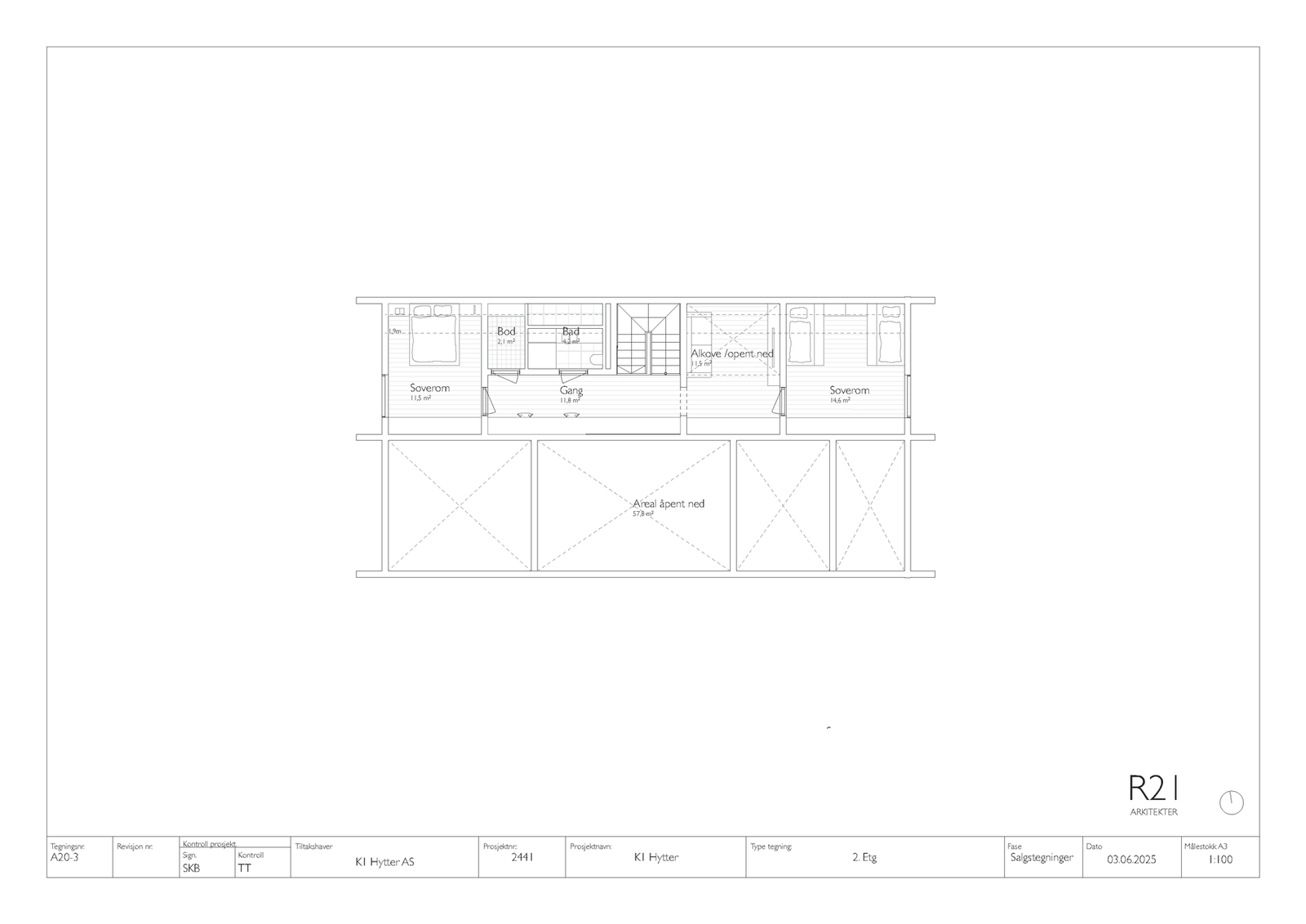
Hyttemodellen er arkitekttegnet og inneholder romslig stue/kjøkkenløsning på hele 51m2, 4 soverom, 3 bad, badstue, bibliotek, garderobe, alkove og innvendig bod. I tillegg er det en praktisk utvendig bod på 15m2.
Se også vedlagte plantegninger for modellen for mer info.
Eksteriør- og interiørbilder i annonsen er illustrasjoner og kan avvike fra leveransen i priset modell. Se også vedlagte plantegninger for hyttemodellen.
Tomten kan bebygges innenfor gjeldende reguleringsbestemmelser, men oppgitt pris forutsetter prosjektert hytte. Det tas fra selgersiden forbehold om justering/tilpasninger av situasjonsplanen i forbindelse med detaljprosjektering av hytteplassering og adkomstveger og at byggesøknad godkjennes.
Diverse
I dette prosjektet får du en nøkkelferdig hyttedrøm - komplett med tomt og grunnarbeid, alt samlet i én kontrakt!
Ta gjerne kontakt med Roy Magne Storholm for ytterligere informasjon om prosjektet.
Ta kontakt med megler for komplett informasjon
Nyttige lenker
Nærområdet
K1 Hytter
Annonsene kan være mangelfulle i forhold til lovpålagt opplysningsplikt. Før bindende avtale inngås oppfordres interessenter til å innhente komplett informasjon fra meglerforetaket, selger eller utleier.














