Bildegalleri

Velkommen til Viksveien 56!
Solgt
Gjerstad
Idyllisk beliggende hytte langs Gjerstadvannet - romslig og pent opparbeidet tomt - nydelig utsikt og gode solforhold
Prisantydning1 590 000 kr
- Omkostninger
- 57 740 kr
- Totalpris
- 1 647 740 kr
- Kommunale avg.
- 3 699 kr per år
- Eiendomsskatt
- 1 354 kr per år
Nøkkelinfo
- Beliggenhet
- Innlandet
- Boligtype
- Hytte
- Eieform
- Eier (Selveier)
- Internt bruksareal
- 48 m² (BRA-i)
- Bruksareal
- 62 m²
- Eksternt bruksareal
- 14 m² (BRA-e)
- Balkong/Terrasse
- 69 m² (TBA)
- Tomteareal
- 1 520 m² (eiet)
- Byggeår
- 1971
- Soverom
- 2
- Energimerking
- G - Oransje
- Overtakelse
- Etter avtale.
Fasiliteter
Balkong/Terrasse
Båtplass
Hage
Peis/Ildsted
Rolig
Utsikt
Bademulighet
Strandlinje
Turterreng
Om boligen
Velkommen til Viksveien 56!
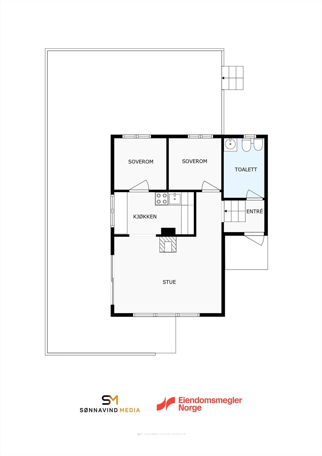
Flott beliggende hytte langs Gjerstadvannet. Nydelig utsikt, gode solforhold og hyggelige uteområder som strekker seg rundt hytta. Her har du terrasser, plen og platting med plass til bålpanne for hyggelige sommerkvelder. Hytta har alt på en flate og inneholder stue, kjøkken, 2 soverom, gang og toalettrom. Det er frittstående anneks som er innredet med ekstra sengeplasser (ikke godkjent som soverom). Flotte bade, fiske og turmuligheter i området. Eier har hatt flytebrygge liggende lands vannet. Det er ca. 5 min. kjøretur til nærmeste dagligvarebutikk i Gjerstad. En kjøretur på ca. 7 minutter tar deg til Brokelandsheia. Her er det en rekke fasiliteter, aktivitetstilbud, servering og butikker. Fra hytta er det også kort vei til sørlandsbyene Risør og Tvedestrand.
Flott beliggende hytte langs Gjerstadvannet. Nydelig utsikt, gode solforhold og hyggelige uteområder som strekker seg rundt hytta. Her har du terrasser, plen og platting med plass til bålpanne for hyggelige sommerkvelder. Hytta har alt på en flate og inneholder stue, kjøkken, 2 soverom, gang og toalettrom. Det er frittstående anneks som er innredet med ekstra sengeplasser (ikke godkjent som soverom). Flotte bade, fiske og turmuligheter i området. Eier har hatt flytebrygge liggende lands vannet. Det er ca. 5 min. kjøretur til nærmeste dagligvarebutikk i Gjerstad. En kjøretur på ca. 7 minutter tar deg til Brokelandsheia. Her er det en rekke fasiliteter, aktivitetstilbud, servering og butikker. Fra hytta er det også kort vei til sørlandsbyene Risør og Tvedestrand.
NB: Knappen for å vise hele beskrivelsen har kun en visuell effekt.
NB: Knappen for å vise hele beskrivelsen har kun en visuell effekt.
Salgsoppgaven beskriver vesentlig og lovpålagt informasjon om eiendommen
Se komplett salgsoppgaveNyttige lenker
Nærområdet
Eiendomsmegler Norge Risør & Tvedestrand
Best der du bor
Annonseinformasjon
| FINN-kode | 409777039 |
|---|---|
| Sist endret | 18. okt. 2025 09:59 |
| Referanse | SORM41.2545 |
Annonsene kan være mangelfulle i forhold til lovpålagt opplysningsplikt. Før bindende avtale inngås oppfordres interessenter til å innhente komplett informasjon fra meglerforetaket, selger eller utleier.

















































