Bildegalleri

tømmerhytte med tilgang til velværesenter.
- Omkostninger
- 168 000 kr
- Totalpris
- 6 068 000 kr
Nøkkelinfo
- Beliggenhet
- På fjellet
- Boligtype
- Hytte
- Eieform
- Eier (Selveier)
- P-plasser
- 2
- Primærrom
- 145 m²
- Bruksareal
- 171 m²
- Tomteareal
- 933 m² (eiet)
- Byggeår
- 2010
- Soverom
- 5
- Meter over havet
- 576
- Energimerking
- C
Fasiliteter
Visning
Ta kontakt for å avtale visning.Om eiendommen
Beliggenhet
Belligende på Bjorligård resort, hjørnetomt mot friområde.
Generelt
Laftet tømmerhytte beliggende sentralt på Bjorli med tilgang til velværesenter. Eiendommen ligger på romslig tomt som grenser mot friområde på 2 sider.
Tilgang til Velværesenteret med badebasseng, jacuzzi, badstu, treningsrom, enkel bowlingbane og klatrevegg for barn
2 parkeringsplasser - garasje - 4(5)soverom- 2 bad,stue-kjøkken-loftstue osv.
Sentral beliggenhet med kort vei til dagligvare, bensinstasjon med hurtiglading og cafe
Gåavstand fra både bussholdeplass langs E136 og Bjorli togstasjon (ca. 150 meter).
send epost for visning / mer info.
Adkomst/Tomteforhold
Belligende på Bjorligård resort, Flat hjørnetomt mot friområde.
Ønsker du endring ?:
Vi kan òg levere gode priser på nytt kjøkken fra Studio Sigdal Ålesund + gode priser på eventuelle andre endringer.
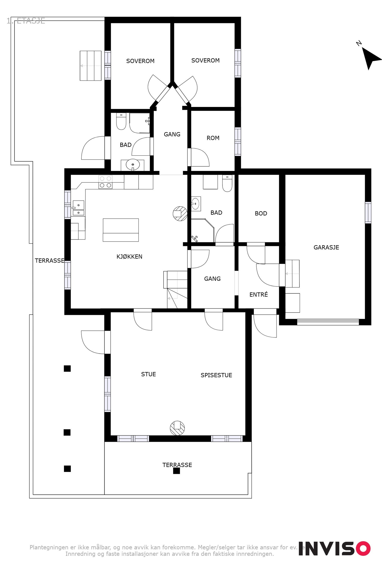
Innhold
Hytten er fordelt på to plan
Hoved etasje: entre,gang, stue, kjøkken , to bad og tre soverom bod ved inngang og dør inn til innvendig garasje som er full isolert.
Loft: stue og 2 soverom
Standard
Bygget har gjennomgående høy standard og er jevnlig vedlikeholdt.
Ta kontakt med megler for komplett informasjon
Nærområdet
Annonsene kan være mangelfulle i forhold til lovpålagt opplysningsplikt. Før bindende avtale inngås oppfordres interessenter til å innhente komplett informasjon fra meglerforetaket, selger eller utleier.






























