Bildegalleri

Din lokale eiendomsmegler Fredrik Rindahl v/Notar har gleden av å presentere denne flotte fritidseiendommen ved Storvatnet!
Idyllisk fritidsbolig med strandlinje og nydelig utsikt - kun 3 minutter fra Bruhagen
Prisantydning1 150 000 kr
- Omkostninger
- 29 840 kr
- Totalpris
- 1 179 840 kr
- Kommunale avg.
- 7 126 kr per år
Nøkkelinfo
- Beliggenhet
- Ved sjøen
- Boligtype
- Hytte
- Eieform
- Eier (Selveier)
- Internt bruksareal
- 65 m² (BRA-i)
- Bruksareal
- 81 m²
- Eksternt bruksareal
- 16 m² (BRA-e)
- Balkong/Terrasse
- 79 m² (TBA)
- Tomteareal
- 2 427 m² (eiet)
- Byggeår
- 1956
- Soverom
- 3
- Energimerking
- G
Fasiliteter
Innlagt vann
Balkong/Terrasse
Barnevennlig
Utsikt
Bademulighet
Fiskemulighet
Strandlinje
Turterreng
Visning
mandag, 09. mars
16:30 – 17:30
Vi i Notar ønsker å avholde så gode visninger som mulig. Derfor har vi påmeldingsvisninger. Da vet vi hvor mange som kommer, og kan sette av nok tid til alle. Trykk på linken visningspåmelding for å avtale tidspunkt. Visninger uten påmeldte innen kl. 12:00 på oppsatt visningsdag, vil ikke bli avholdt. Hvis det ikke er oppsatt visningstidspunkt eller oppsatt tidspunktet ikke skulle passe, kontakt megler for avtale om privatvisning. Velkommen til visning.
Husk å lese komplett salgsoppgave før visning. Bestill komplett, utskriftsvennlig salgsoppgave.
VisningspåmeldingOm boligen
Din lokale eiendomsmegler Fredrik Rindahl v/Notar har gleden av å presentere denne idylliske fritidsboligen ved Storvatnet i Averøy kommune!
Eiendommen har strandlinje og nydelig utsikt over vannet, kun tre minutter fra Bruhagen. Med fredelig beliggenhet og gode solforhold er dette en perfekt plass for sommerhalvåret. Tomten er pent opparbeidet med stablede steinmurer som rammer inn uteområdet på en naturlig og tiltalende måte.
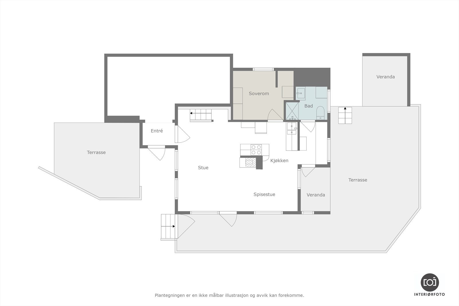
Fritidsboligen inneholder to soverom, nyere kjøkken fra 2022, samt vedovn og varmepumpe for effektiv oppvarming. Det er gjort flere oppgraderinger, blant annet vinduer i 2010 og helt nytt elektrisk anlegg i 2022.
Det følger også med anneks på eiendommen som er perfekt for å ta imot gjester. I tillegg inngår fiskerettigheter i Storvatnet.
Velkommen til visning!
Eiendommen har strandlinje og nydelig utsikt over vannet, kun tre minutter fra Bruhagen. Med fredelig beliggenhet og gode solforhold er dette en perfekt plass for sommerhalvåret. Tomten er pent opparbeidet med stablede steinmurer som rammer inn uteområdet på en naturlig og tiltalende måte.
Fritidsboligen inneholder to soverom, nyere kjøkken fra 2022, samt vedovn og varmepumpe for effektiv oppvarming. Det er gjort flere oppgraderinger, blant annet vinduer i 2010 og helt nytt elektrisk anlegg i 2022.
Det følger også med anneks på eiendommen som er perfekt for å ta imot gjester. I tillegg inngår fiskerettigheter i Storvatnet.
Velkommen til visning!
NB: Knappen for å vise hele beskrivelsen har kun en visuell effekt.
NB: Knappen for å vise hele beskrivelsen har kun en visuell effekt.
Salgsoppgaven beskriver vesentlig og lovpålagt informasjon om eiendommen
Se komplett salgsoppgaveNærområdet
Notar Kristiansund
God magefølelse
Annonseinformasjon
| FINN-kode | 409102928 |
|---|---|
| Sist endret | 27. feb. 2026 15:07 |
| Referanse | NO4.2555 |
Annonsene kan være mangelfulle i forhold til lovpålagt opplysningsplikt. Før bindende avtale inngås oppfordres interessenter til å innhente komplett informasjon fra meglerforetaket, selger eller utleier.









































