Bildegalleri

Skutebaugveien 16 presenteres av Krogsveen v/Knut Dahl
Son
Her kan du bygge drømmehuset! Unik utsiktseiendom i boligregulert område selges. Båtplass og rett til båtfeste.
Prisantydning8 900 000 kr
- Omkostninger
- 243 490 kr
- Totalpris
- 9 143 490 kr
- Kommunale avg.
- 14 498 kr per år
- Formuesverdi
- 96 461 kr
Nøkkelinfo
- Beliggenhet
- Ved sjøen
- Boligtype
- Hytte
- Eieform
- Selveier
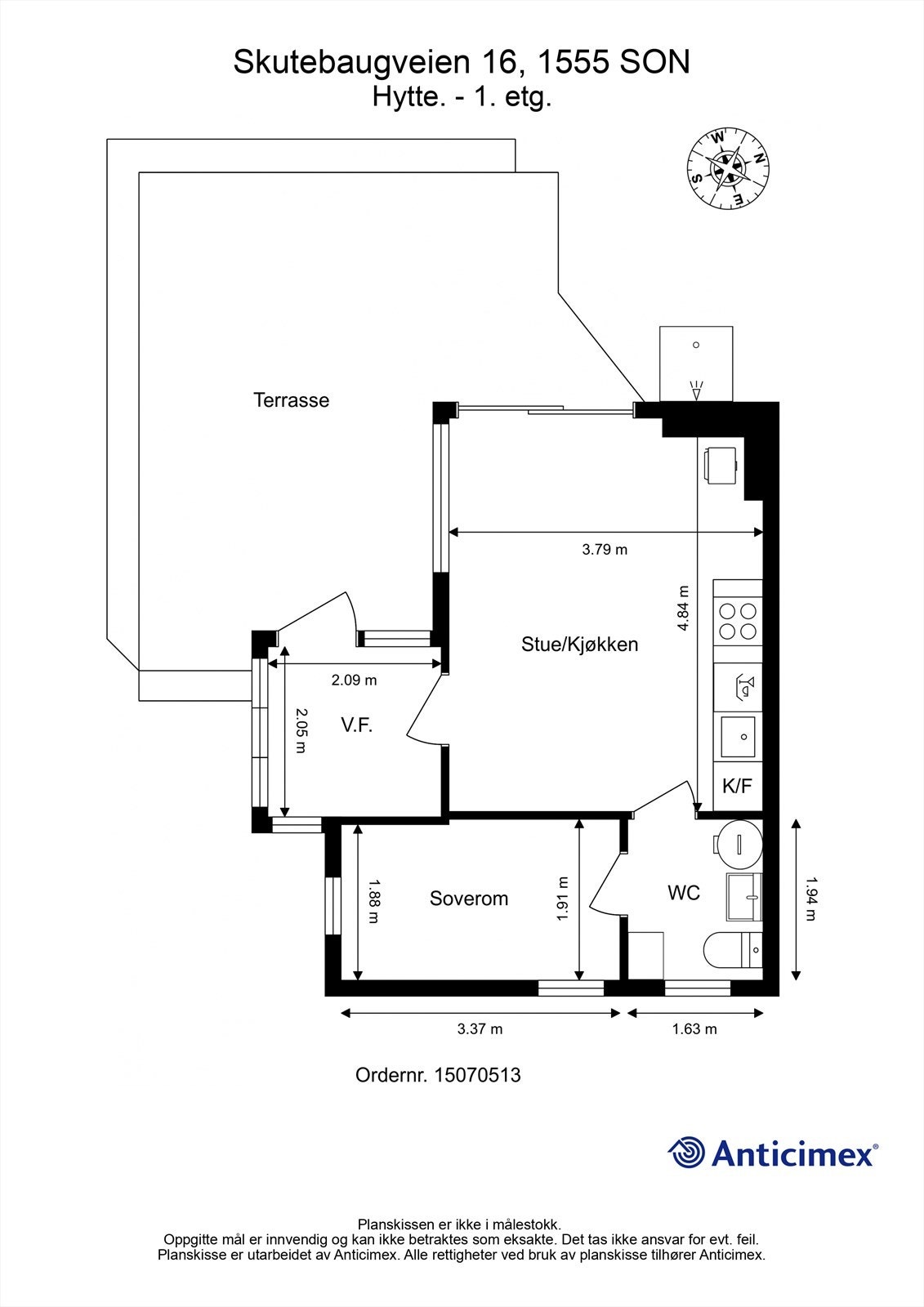
- Internt bruksareal
- 33 m² (BRA-i)
- Bruksareal
- 47 m²
- Eksternt bruksareal
- 14 m² (BRA-e)
- Balkong/Terrasse
- 25 m² (TBA)
- Tomteareal
- 2 375 m² (eiet)
- Byggeår
- 1953
- Soverom
- 1
- Rom
- 2
Fasiliteter
Aircondition
Balkong/Terrasse
Barnevennlig
Bilvei frem
Båtplass
Garasje/P-plass
Golfbane
Hage
Peis/Ildsted
Rolig
Utsikt
Bademulighet
Fiskemulighet
Innlagt strøm
Offentlig vann/kloakk
Strandlinje
Turterreng
Visning
For å delta på visning, ber vi om at du melder deg på. Da sikrer vi at du får nødvendig informasjon og at det er satt av tilstrekkelig med tid. Kontakt megler dersom annet tidspunkt ønskes. Husk å lese salgsoppgaven før visningen, så du stiller forberedt. NB. Visning utgår dersom det ikke er noen påmeldte.
Ønsker du kun å bli holdt orientert, kan du fra eiendommens hjemmeside få varsel om solgtpris, eller kontakte megler.
VisningspåmeldingOm boligen
Solfylt eiendom på toppen av Tønnesåsen med spektakulær utsikt til Oslofjorden
- Boligregulert område
- Nydelig sommerhytte eller bygg ditt drømmehus
- Båtplass for mindre jolle/vannscooter medfølger i bølgebryter ved Son Spa
- Strandparsell med rett til båtfeste, like nedenfor eiendommen
- Enkel adkomst; Skutebaugveien går helt frem til tomten
- Vann og avløp lagt inn i 2020
- Betydelig oppgradert gjennom de seneste 5 årene
- Malerarbeid utført på alle innvendige overflater
- Nytt kjøkken installert og toalettrom etablert i 2021
- Vindu skiftet ut og ny foldedør til terrassen montert i stuen
- Nyoppført terrasse på ca. 25 kvm. med utedusj
- Kort sykkelavstand til Sons sjarmerende sentrum
- Kun 45 minutter fra Oslo
NB: Knappen for å vise hele beskrivelsen har kun en visuell effekt.
NB: Knappen for å vise hele beskrivelsen har kun en visuell effekt.
Salgsoppgaven beskriver vesentlig og lovpålagt informasjon om eiendommen
Se komplett salgsoppgaveNyttige lenker
Nærområdet
Krogsveen Moss
Verdien av en god megler.
Annonseinformasjon
| FINN-kode | 409068730 |
|---|---|
| Sist endret | 20. apr. 2026 11:01 |
| Referanse | KR30.2569 |
Annonsene kan være mangelfulle i forhold til lovpålagt opplysningsplikt. Før bindende avtale inngås oppfordres interessenter til å innhente komplett informasjon fra meglerforetaket, selger eller utleier.



















































