Bildegalleri

EIE Harstad v/megler Vetle Larsen presenterer en nyere og meget romslig rorbu på Stamsund i Lofoten
Inaktiv
Nyere og moderne fritidsbolig fra 22 | 4 soverom, 2 bad og 2 stuer | Påkostet | Veranda
Prisantydning4 250 000 kr
- Omkostninger
- 107 600 kr
- Totalpris
- 4 357 600 kr
- Kommunale avg.
- 8 769 kr per år
Nøkkelinfo
- Boligtype
- Hytte
- Eieform
- Selveier
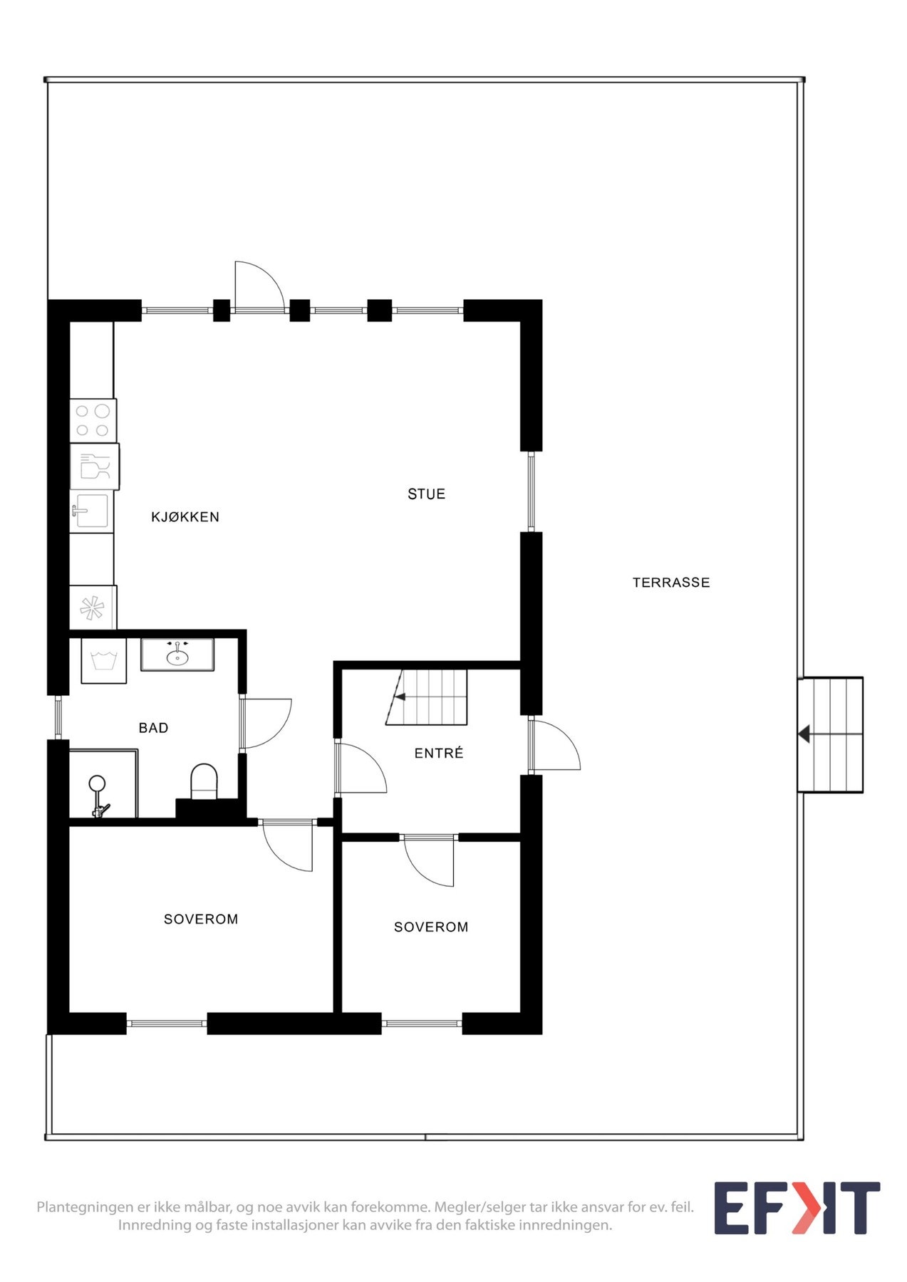
- Internt bruksareal
- 100 m² (BRA-i)
- Bruksareal
- 100 m²
- Balkong/Terrasse
- 80 m² (TBA)
- Tomteareal
- 155 m² (eiet)
- Byggeår
- 2022
- Soverom
- 4
- Rom
- 6
Fasiliteter
Balkong/Terrasse
Fiskemulighet
Turterreng
Utsikt
Bilvei frem
Innlagt strøm
Innlagt vann
Visning
Ta kontakt for å avtale visning.Husk å lese komplett salgsoppgave før visning. Bestill komplett, utskriftsvennlig salgsoppgave.
VisningspåmeldingOm boligen
EIE eiendomsmegling Harstad v/megler Vetle Larsen har gleden av å presentere denne moderne fritidsboligen i Stamsund, Lofoten. Rorbuen er fra 2022 og er romslig og moderne. Her kan du flytte rett inn i en fin og innholdsrik fritidsbolig med nydelig utsikt
- Nyere fritidsbolig på hele 100 kvm med 4 soverom, 2 bad og 2 stuer
- Parkeringsplass
- Gode muligheter for utleie
Boligen ligger fint til i ett område med flere lignende rorbuer og flere fritidseiendommer. Stamsund er med sine rundt 1000 innbyggere et av de ledende fiskeværet i Lofoten. Stedet ligger i Vestvågøy kommune ca. 15 km ifra Leknes. Daglig hurtigruteanløp på nord og sør. På Leknes er det flyplass med gode forbindelser.
Velkommen til en hyggelig visning!
NB: Knappen for å vise hele beskrivelsen har kun en visuell effekt.
NB: Knappen for å vise hele beskrivelsen har kun en visuell effekt.
Salgsoppgaven beskriver vesentlig og lovpålagt informasjon om eiendommen
Se komplett salgsoppgaveNyttige lenker
Nærområdet
EIE eiendomsmegling Harstad
Annonsene kan være mangelfulle i forhold til lovpålagt opplysningsplikt. Før bindende avtale inngås oppfordres interessenter til å innhente komplett informasjon fra meglerforetaket, selger eller utleier.































