Bildegalleri

Velkommen til Lykkebotmyr 5 - Presentert av Kristian Ruud i Eiendomsmegler 1 Modum
Tempelseter
Innholdsrik fritidseiendom i naturskjønne omgivelser med bilvei helt frem | Gode solforhold | Innlagt strøm og vann*
Prisantydning1 790 000 kr
- Omkostninger
- 45 840 kr
- Totalpris
- 1 835 840 kr
- Kommunale avg.
- 1 926 kr per år
- Eiendomsskatt
- 1 926 kr per år
- Formuesverdi
- 239 505 kr
- Verditakst
- 2 000 000 kr
Nøkkelinfo
- Beliggenhet
- På fjellet
- Boligtype
- Hytte
- Eieform
- Eier (Selveier)
- Internt bruksareal
- 54 m² (BRA-i)
- Bruksareal
- 67 m²
- Eksternt bruksareal
- 13 m² (BRA-e)
- Tomteareal
- 1 350 m² (festet)
- Festeavgift
- 3 323 kr
- Byggeår
- 1974
- Soverom
- 4
- Rom
- 5
- Energimerking
Visning
Ønsker du å delta på visningen ber vi deg melde deg på slik at vi vet at du kommer. Da kan vi bistå alle best mulig og gi deg tiden du trenger på visningen. Kontakt gjerne megler før visning hvis du har spørsmål. Visningen avholdes bare dersom det er påmeldte. Hvis det ikke er oppsatt visningstidspunkt eller tidspunkt ikke passer, kontakt megler.
Husk å lese komplett salgsoppgave før visning. Bestill komplett, utskriftsvennlig salgsoppgave.
VisningspåmeldingOm boligen
Velkommen til Lykkebotmyr 5!
En innholdsrik og spennende fritidseiendom beliggende i naturskjønne omgivelser på Tempelseter med bilvei helt frem. En attraktiv og populær helårsdestinasjon, ideelt for den aktive familien. Området har et flott utgangspunkt for den aktive familien med varierte aktivitetsmuligheter sommer og vinter rett utenfor døren.
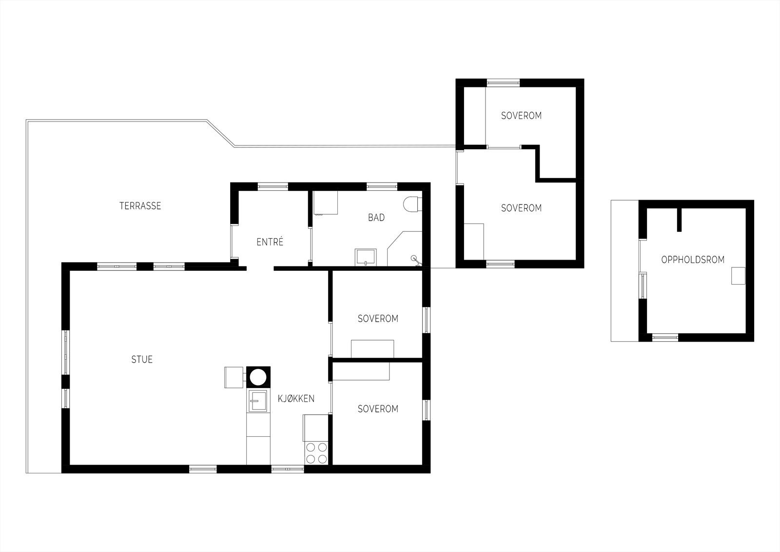
Hytta har alt på en flate og inneholder: Entre, stue/kjøkken, 2 soverom og toalettrom m/dusjkabinett. I tillegg er hytta tilbygget med to soverom med egen inngang. I tillegg til nevnte er eiendommen bebygd med en frittstående snekkerbu/uthus på ca. 12 kvm med gode lagringsmuligheter, samt en koselig gapahuk i tømmerstokker nordvest på tomta.
Innlagt strøm og vann fra privat brønn.
Velkommen til visning!
En innholdsrik og spennende fritidseiendom beliggende i naturskjønne omgivelser på Tempelseter med bilvei helt frem. En attraktiv og populær helårsdestinasjon, ideelt for den aktive familien. Området har et flott utgangspunkt for den aktive familien med varierte aktivitetsmuligheter sommer og vinter rett utenfor døren.
Hytta har alt på en flate og inneholder: Entre, stue/kjøkken, 2 soverom og toalettrom m/dusjkabinett. I tillegg er hytta tilbygget med to soverom med egen inngang. I tillegg til nevnte er eiendommen bebygd med en frittstående snekkerbu/uthus på ca. 12 kvm med gode lagringsmuligheter, samt en koselig gapahuk i tømmerstokker nordvest på tomta.
Innlagt strøm og vann fra privat brønn.
Velkommen til visning!
NB: Knappen for å vise hele beskrivelsen har kun en visuell effekt.
NB: Knappen for å vise hele beskrivelsen har kun en visuell effekt.
Salgsoppgaven beskriver vesentlig og lovpålagt informasjon om eiendommen
Se komplett salgsoppgaveNyttige lenker
Nærområdet
EiendomsMegler 1 Modum
et foretak i SpareBank 1 Sør-Norge konsernet
Annonseinformasjon
| FINN-kode | 408946984 |
|---|---|
| Sist endret | 05. mars 2026 15:26 |
| Referanse | 2870250030 |
Annonsene kan være mangelfulle i forhold til lovpålagt opplysningsplikt. Før bindende avtale inngås oppfordres interessenter til å innhente komplett informasjon fra meglerforetaket, selger eller utleier.



























