Bildegalleri

Velkommen til snørike Kløvnattvegen 33 på populære Blefjell sør!
Nipeto på Blefjell
Koselig fjellhytte med flott beliggenhet, god utsikt og eiet tomt! Fullstandard. Rett ved skisporet!
Prisantydning3 300 000 kr
- Omkostninger
- 83 886 kr
- Totalpris
- 3 383 886 kr
- Kommunale avg.
- 3 239 kr per år
- Eiendomsskatt
- 3 548 kr per år
- Verditakst
- 3 300 000 kr
Nøkkelinfo
- Beliggenhet
- På fjellet
- Boligtype
- Hytte
- Eieform
- Eier (Selveier)
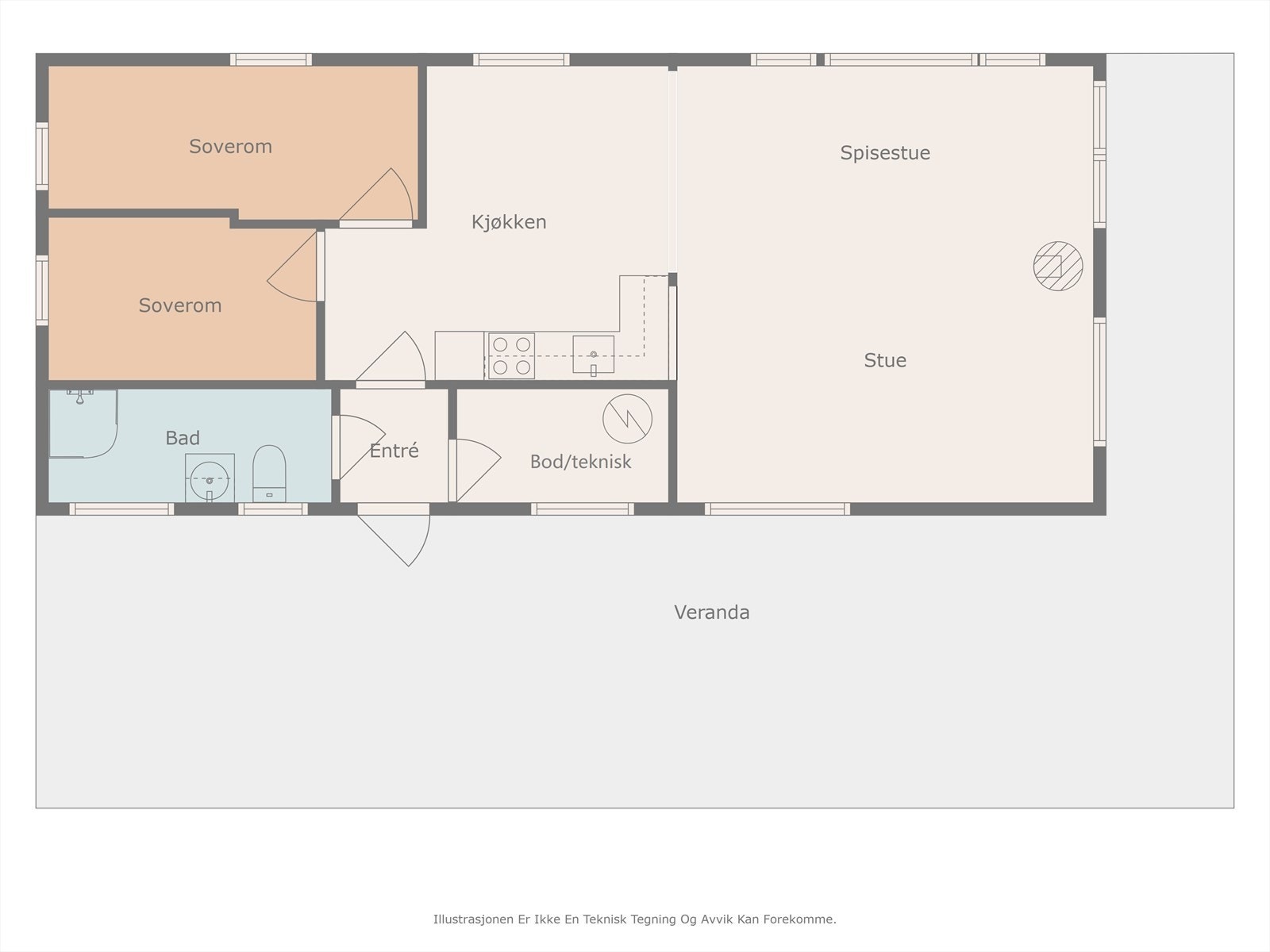
- Internt bruksareal
- 69 m² (BRA-i)
- Bruksareal
- 82 m²
- Eksternt bruksareal
- 13 m² (BRA-e)
- Balkong/Terrasse
- 50 m² (TBA)
- Tomteareal
- 982 m² (eiet)
- Byggeår
- 1970
- Soverom
- 2
- Rom
- 3
- Energimerking
- G - Oransje
Fasiliteter
Innlagt vann
Balkong/Terrasse
Barnevennlig
Bilvei frem
Peis/Ildsted
Rolig
Innlagt strøm
Turterreng
Visning
søndag, 22. februar
13:00 – 14:00
Ønsker du å delta på visningen ber vi deg melde deg på slik at vi vet at du kommer. Da kan vi bistå alle best mulig og gi deg tiden du trenger på visningen. Kontakt gjerne megler før visning hvis du har spørsmål. Visningen avholdes bare dersom det er påmeldte. Hvis det ikke er oppsatt visningstidspunkt eller tidspunkt ikke passer, kontakt megler.
For visninger utover de annonserte, ta kontakt med megler på telefon 959 63 408.
Husk å lese komplett salgsoppgave før visning. Bestill komplett, utskriftsvennlig salgsoppgave.
VisningspåmeldingOm boligen
Velkommen til Kløvnattvegen 33, på det populære Nipeto-området like ved Blefjell Lodge på Blefjell Sør.
Eiendommen ligger usjenert og fint til, med gode solforhold og en fleksibel og oppgradert uteplass med ny platting. Eiendommen har en flott eiertomt på ca 982 kvm, og er oppgradert til å i dag ha alle fasiliteter man er vandt med fra hjemme - fullstandard med både fiberkabel, vann og avløp, nyere baderom, strøm og helårs bilvei. Beliggenheten fremstår meget attraktiv, og med flott utsikt - like i nærheten av skiløypene på vinterstid. Det er gangavstand til populære Blefjell Lodge, med nærbutikk og serveringstilbud for store og små.
Praktisk nybygget uthus/bodrom for masse god lagringsplass! Et sentralt utgangspunkt for videre turer og utflukter på hele Blefjell
Velkommen til visning
Eiendommen ligger usjenert og fint til, med gode solforhold og en fleksibel og oppgradert uteplass med ny platting. Eiendommen har en flott eiertomt på ca 982 kvm, og er oppgradert til å i dag ha alle fasiliteter man er vandt med fra hjemme - fullstandard med både fiberkabel, vann og avløp, nyere baderom, strøm og helårs bilvei. Beliggenheten fremstår meget attraktiv, og med flott utsikt - like i nærheten av skiløypene på vinterstid. Det er gangavstand til populære Blefjell Lodge, med nærbutikk og serveringstilbud for store og små.
Praktisk nybygget uthus/bodrom for masse god lagringsplass! Et sentralt utgangspunkt for videre turer og utflukter på hele Blefjell
Velkommen til visning
NB: Knappen for å vise hele beskrivelsen har kun en visuell effekt.
NB: Knappen for å vise hele beskrivelsen har kun en visuell effekt.
Salgsoppgaven beskriver vesentlig og lovpålagt informasjon om eiendommen
Se komplett salgsoppgaveNyttige lenker
Nærområdet
Eiendomsmegler 1 Kongsberg
et foretak i SpareBank 1 Sør-Norge konsernet
Annonseinformasjon
| FINN-kode | 408617954 |
|---|---|
| Sist endret | 03. feb. 2026 09:50 |
| Referanse | 2863250048 |
Annonsene kan være mangelfulle i forhold til lovpålagt opplysningsplikt. Før bindende avtale inngås oppfordres interessenter til å innhente komplett informasjon fra meglerforetaket, selger eller utleier.































