Bildegalleri

Prosjektert arealeffektiv nøkkelferdig hytte m/hems i vakre omgivelser på Budor!
- Omkostninger
- 19 840 kr
- Totalpris
- 3 919 840 kr
Nøkkelinfo
- Beliggenhet
- På fjellet
- Boligtype
- Hytte
- Eieform
- Selveier
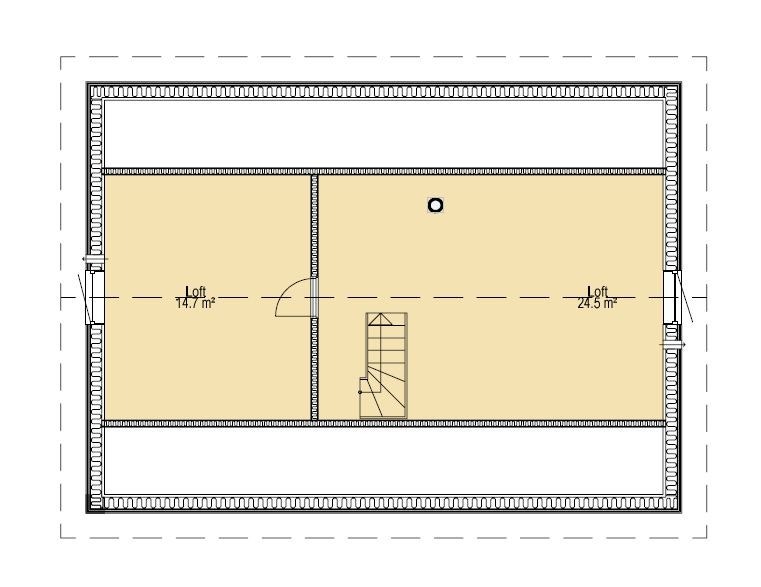
- Internt bruksareal
- 62 m² (BRA-i)
- Bruksareal
- 62 m²
- Balkong/Terrasse
- 2 m² (TBA)
- Tomt
- Festet
- Festeavgift
- 10 000 kr
- Soverom
- 2
- Rom
- 3
- Meter over havet
- 640
Fasiliteter
Visning
Ta kontakt for å avtale visning.Om eiendommen
Beliggenhet
Budor er en naturskjønn hyttegrend ved porten til Hedmarksvidda. Med en beliggenhet 90 minutters kjøretid fra Oslo og 60 minutter fra Gardermoen, er Budor et lett tilgjengelig og attraktivt utfartssted og hytteområde. Budor er et utmerket sted for friluftsliv, vandring, løping og langrenn. Med over 300 km oppkjørte løyper på Hedmarksvidda, kan du finne ekte skiglede i Norges fineste skiløyper.
Adkomst/Tomteforhold
Følg E6 til Hamar, ta av RV 25 mot Elverum. Følg skilting mot Budor. Følg veien ca. 11 km, sving inn mot venstre til det nye feltet. Adresse Blåbærvegen.
Generelt
Felt 6 har 40 tomter og ligger solrikt til på ca. 640 moh. Langrennssporet går gjennom hyttefeltet, så her kan man spenne på seg skiene ved hytta og gå ut i over 300 km oppkjørte løyper på Hedmarksvidda.
<i>Rondane 62 – en funksjonell familiehytte med muligheter. Dette er en praktisk og arealeffektiv hytte som passer perfekt for hele familien. Den har en åpen og sosial stue/kjøkkenløsning, to soverom, bad, samt en romslig gang og bod med god oppbevaringsplass. </i>
<i>Generell utførelse</i>
• Stående låvepanel mix bredder (ubehandlet), 20 cm isolasjon i yttervegg.
• Dråpe takshingel.
• Takstige og snøfangere der det er krav.
• Vinduer iht. tegning. 2-lag energiglass, standard farge hvit inne/ute hvit NCS S 0502Y. Vinduer med gjennomgående sprosser.
• Takrenner i sort stål.
• Tinde ytterdør m/vindu, malt hvit.
• Eventuell sportsbod / utebod har Tinde boddør u/vindu, malt hvit.
• Terrasse leveres der det er vist på tegninger uten rekkverk.
• Isolasjon 25 cm i tak, 20 cm yttervegg og 10 cm i innervegger.
• Flytende gulv med 13 mm eikeparkett 3-stavs, type Kährs.
• Innvendige furupanel fra Moelven: 13 mm Sprekkpanel på vegger og himling, ubehandlet.
• Glatt standard listverk, ubehandlet.
• Furu 3-speils innerdører, ubehandlet.
• Kjøkken fra Aubo av typen Unik i fargen Sheer Grey (NCS S 3502-Y20R) med laminat benkeplate og slimline kjøkkenventilator (hvitevarer følger ikke med).
<i>Rørlegger/innvendig sanitær</i>
Rørleggerarbeid med utstyr iht. standard rørleggeroppsett. I utstyrsoversikt kan nevnes:
• Bunnledninger (rør som ligger i betongplate innenfor ringmur fram til toalett, sluker osv.).
• Rette slagdører i dusjnisje evnt. dusjnisjedør (iht. tegning) med
dusjgarnityr.
• Vegghengt toalett med innebygd sisterne.
• Slukrenne på bad.
• Baderomsinnredning m/skuffer, porselensvask og speil.
• Innredning med vask og speilskap leveres det det er separat WC rom.
• Varmtvannsbereder 200 liter.
• 1-greps blandebatterier på kjøkken, bad og evnt. andre våtrom.
• Opplegg for tilkobling av kjøkkenbenk m/ 1-greps benkebatteri med høy tut, samt opplegg for tilkobling av oppvaskmaskin.
• Lekkasjesikring/vannstoppeventil.
<i>Murer, flis, pipe og ildsted</i>
• Peisovn med sideglass m/glassplate på gulv montert på sort stålpipe.
• Flislagt gulv i vindfang med 30×60cm flis.
• Flislagt gulv på bad med 30×60 fliser. Ved eget WC-rom og badstue leveres det også 30×60 cm flis.
• Flislagte vegger med lik flis som på gulv.
• Har hytta eget vaskerom, innvendig bod eller sportsbod leveres det med 30×30 cm flis.
<i>Elektroinstallasjoner og utstyr</i>
Elektrikerarbeid med utstyr iht. standard elektrikeroppsett. I utstyrsoversikt kan nevnes:
• Inntaksskap og kabel mellom inntak og sikringsskap.
• Sikringsskap m/overbelastningsvern, jordfeilautomater og overspenningsvern.
• EL-punkter (iht. NEK 400).
• Varmekabler med termostat og føler i vindfang og våtrom.
• Strømforsyning til seriekoblet røkvarslere m/backup batteri.
• Astrour-styrte utelamper.
• Downlights leveres i vindfang og bad. Om hytta har WC og gang i tillegg leveres det også downlights her.
• Taklamper leveres i soverom. For de hyttene som har vaskerom og bod, leveres det taklamper her.
• Panelovner, stikkontakter, komfyrvakt og badstuovn leveres i tråd med tegning.
<i>Felles for alle leveranser</i>
• Tinde Hytter har ansvar for byggesøknadsprosessen.
• Utførelse og leveranse i henhold til dagens tekniske krav.
• Garanti: 10% av kontraktssum i byggeperioden, 5% i reklamasjonstiden (5 år).
• Kontrakt fra Norsk Standard 3425 (med henvisninger til Bustadoppføringsloven).
• Trykktestet i henhold til Tek 17.
Tomteverdi (tomt 12) kr. 750 000,- Verdi grunnarbeider, stipulert fra kr. 500 000,-
Det tas forbehold om endelig godkjenning fra kommunen.
Prisene er beregnet med sist kjente indeks fra SSB, og vil bli justert til enhver tids gjeldende indeks.
Salgsoppgaven beskriver vesentlig og lovpålagt informasjon om eiendommen
Se komplett salgsoppgaveNærområdet
Tindehytter AS
Annonsene kan være mangelfulle i forhold til lovpålagt opplysningsplikt. Før bindende avtale inngås oppfordres interessenter til å innhente komplett informasjon fra meglerforetaket, selger eller utleier.

















