Bildegalleri

STORFAMILIENS SAMLINGSSTED. Et lite fiskersmåbruk ble på 80 tallet revet, og noen år senere ble en ekstra hytta på fjellet ovenfor bygget.
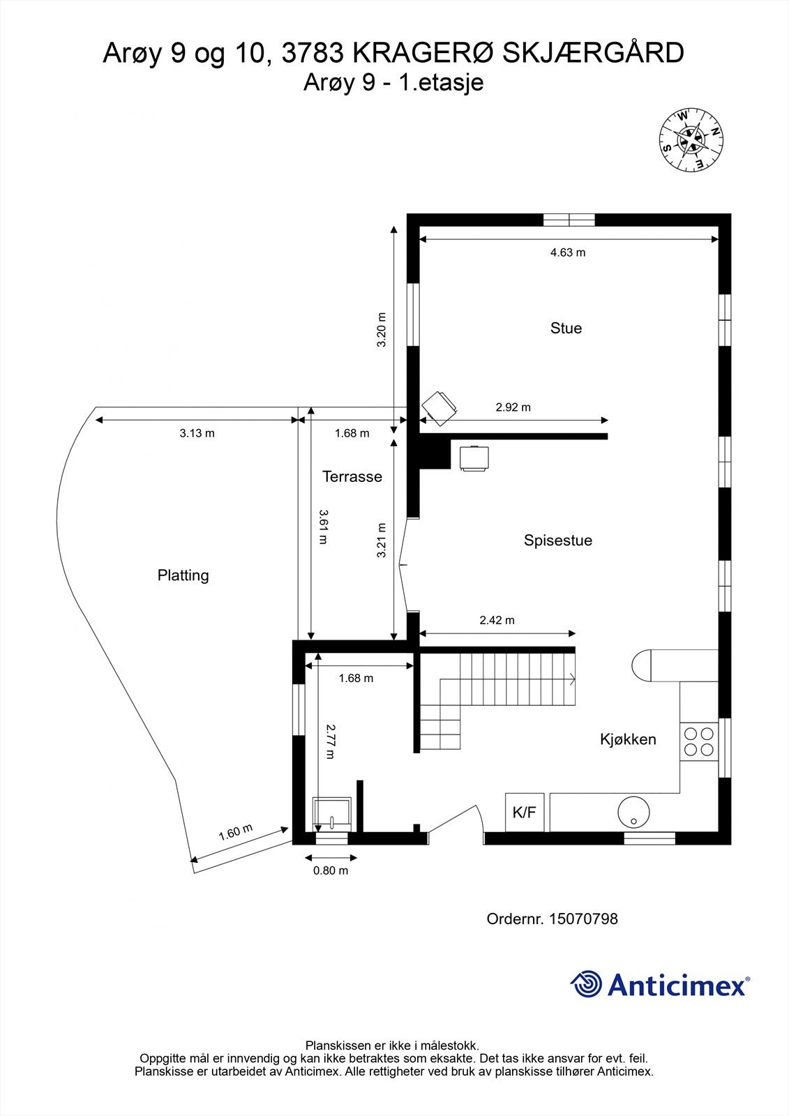
Kragerø - Arøy
Tidløs idyll bestående av to hytter, flere uthus, egen strandparsell med sjøbod og brygge.
Prisantydning6 500 000 kr
- Omkostninger
- 183 490 kr
- Totalpris
- 6 683 490 kr
- Kommunale avg.
- 23 701 kr per år
Nøkkelinfo
- Beliggenhet
- Ved sjøen
- Boligtype
- Hytte
- Eieform
- Eier (Selveier)
- Internt bruksareal
- 130 m² (BRA-i)
- Bruksareal
- 161 m²
- Eksternt bruksareal
- 31 m² (BRA-e)
- Balkong/Terrasse
- 116 m² (TBA)
- Tomteareal
- 6 881 m² (eiet)
- Byggeår
- 1984
- Soverom
- 5
- Rom
- 9
- Energimerking
- G - Rød
Visning
For å delta på visning, ber vi om at du melder deg på. Da sikrer vi at du får nødvendig informasjon og at det er satt av tilstrekkelig med tid. Kontakt megler dersom annet tidspunkt ønskes. Husk å lese salgsoppgaven før visningen, så du stiller forberedt. NB. Visning utgår dersom det ikke er noen påmeldte. Oppmøte på Valle, brygga ved Sparbutikken, kl. 1500 for felles båttransport.
Ønsker du kun å bli holdt orientert, kan du fra eiendommens hjemmeside få varsel om solgtpris, eller kontakte megler.
VisningspåmeldingOm boligen
En solid brygge og en gammel sjøbod møter deg når du kommer i land på Arøy. En koselig sti fører opp til eiendommene med hovedhytta fra 1984, som og er bygget på den gamle grunnmuren til huset som før hadde stått der i mange år. I gamle dager var dette et småbruk omsluttet av vakker natur og en åkerlapp. Omgivelsene og hovedhytta ser ut som det har stått der i en årrekke og har en sjarmerende og landlig stil. Ovenfor hytta ligger en egen hytte, som ble bygget i 1989 i en mer moderne stil. Herfra har du fin utsikt utover sjøen. Begge hyttene ligger solrikt og usjenert til. På Arøy er det fine turstier og i Arøybukta er det pent og idyllisk. Skjærgården i området er variert og vakker og det er kort båttur til både Valle og Kragerø.
NB: Knappen for å vise hele beskrivelsen har kun en visuell effekt.
NB: Knappen for å vise hele beskrivelsen har kun en visuell effekt.
Salgsoppgaven beskriver vesentlig og lovpålagt informasjon om eiendommen
Se komplett salgsoppgaveNyttige lenker
Nærområdet
Krogsveen Bamble og Porsgrunn
Velkommen til en enklere boligreise.
Annonseinformasjon
| FINN-kode | 407818969 |
|---|---|
| Sist endret | 16. des. 2025 08:57 |
| Referanse | KR28.2541 |
Annonsene kan være mangelfulle i forhold til lovpålagt opplysningsplikt. Før bindende avtale inngås oppfordres interessenter til å innhente komplett informasjon fra meglerforetaket, selger eller utleier.






















































