Bildegalleri

Velkommen til Bleikmyrveien 207
Tyristrand
Sjarmerende hytte med gode solforhold i idylliske omgivelser ved Væleren-Tyristrand, Bilvei, 3 soverom, selges møblert.
Prisantydning995 000 kr
- Omkostninger
- 26 256 kr
- Totalpris
- 1 021 256 kr
- Kommunale avg.
- 3 389 kr per år
- Eiendomsskatt
- 471 kr per år
- Verditakst
- 1 000 000 kr
Nøkkelinfo
- Beliggenhet
- På fjellet
- Boligtype
- Enebolig
- Eieform
- Eier (Selveier)
- Internt bruksareal
- 60 m² (BRA-i)
- Bruksareal
- 60 m²
- Balkong/Terrasse
- 25 m² (TBA)
- Tomteareal
- 1 494 m² (festet)
- Festeavgift
- 2 819 kr
- Byggeår
- 1965
- Soverom
- 3
- Rom
- 4
Fasiliteter
Balkong/Terrasse
Barnevennlig
Bilvei frem
Hage
Peis/Ildsted
Rolig
Utsikt
Bademulighet
Fiskemulighet
Turterreng
Visning
Ta kontakt for å avtale visning.Husk å lese komplett salgsoppgave før visning. Bestill komplett, utskriftsvennlig salgsoppgave.
VisningspåmeldingOm boligen
Velkommen til Bleikmyrveien 207!
Usjenert og solrikt beliggenhet i attraktivt hytteområde. Få minutters gange til Væleren med bade og fiskemuligheter. Området er kjent for sitt flotte ski- og turterreng sommer som vinter. Oppkjørt skiløype med tilknytning til løypenettet i Holleia går i nærheten. Åpent skogsterreng med flotte turmuligheter sommer som vinter. . Væleren kan sees fra hytta. Ca. 20 min. til Hønefoss og ca. 1 time til Oslo.
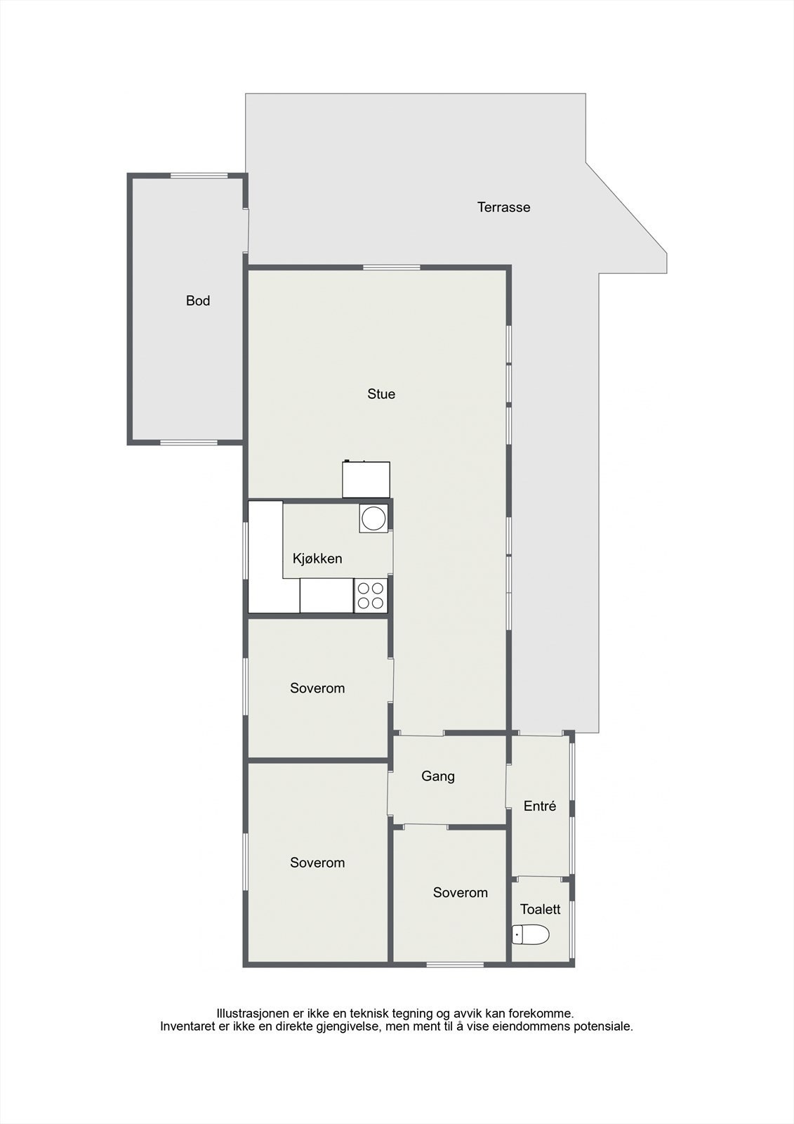
Hytta innehar alle rom på samme plan og inneholder: Vindfang/ entré, toalettrom, gang, 3 soverom og stue med kjøkkenkrok. Utvendig bod og gode lagringsmuligheter under hytta.
Romslig terrasse som er delvis overbygget.
Hytta selges møblert med bl.a møbler, løsøre, nytt aggregat og et eldre aggregat, 3 x gassovner, komfyr, kjøleskap
Velkommen til visning!
Usjenert og solrikt beliggenhet i attraktivt hytteområde. Få minutters gange til Væleren med bade og fiskemuligheter. Området er kjent for sitt flotte ski- og turterreng sommer som vinter. Oppkjørt skiløype med tilknytning til løypenettet i Holleia går i nærheten. Åpent skogsterreng med flotte turmuligheter sommer som vinter. . Væleren kan sees fra hytta. Ca. 20 min. til Hønefoss og ca. 1 time til Oslo.
Hytta innehar alle rom på samme plan og inneholder: Vindfang/ entré, toalettrom, gang, 3 soverom og stue med kjøkkenkrok. Utvendig bod og gode lagringsmuligheter under hytta.
Romslig terrasse som er delvis overbygget.
Hytta selges møblert med bl.a møbler, løsøre, nytt aggregat og et eldre aggregat, 3 x gassovner, komfyr, kjøleskap
Velkommen til visning!
NB: Knappen for å vise hele beskrivelsen har kun en visuell effekt.
NB: Knappen for å vise hele beskrivelsen har kun en visuell effekt.
Salgsoppgaven beskriver vesentlig og lovpålagt informasjon om eiendommen
Se komplett salgsoppgaveNyttige lenker
Nærområdet
EiendomsMegler 1 Eiker
et foretak i SpareBank 1 Sør-Norge konsernet
Annonseinformasjon
| FINN-kode | 407505558 |
|---|---|
| Sist endret | 15. des. 2025 12:50 |
| Referanse | 2869250004 |
Annonsene kan være mangelfulle i forhold til lovpålagt opplysningsplikt. Før bindende avtale inngås oppfordres interessenter til å innhente komplett informasjon fra meglerforetaket, selger eller utleier.










































