Bildegalleri

Velkommen til Kinnsvegen 235, en fritidseiendom presentert av Eie Fjellmegleren!
Flott fritidseiendom med rolig beliggenhet ved Svartetjern. Gode solforhold, og kort avstand til fint turterreng.
Prisantydning1 490 000 kr
- Omkostninger
- 38 600 kr
- Totalpris
- 1 528 600 kr
- Formuesverdi
- 435 770 kr
Nøkkelinfo
- Beliggenhet
- På fjellet
- Boligtype
- Hytte
- Eieform
- Eier (Selveier)
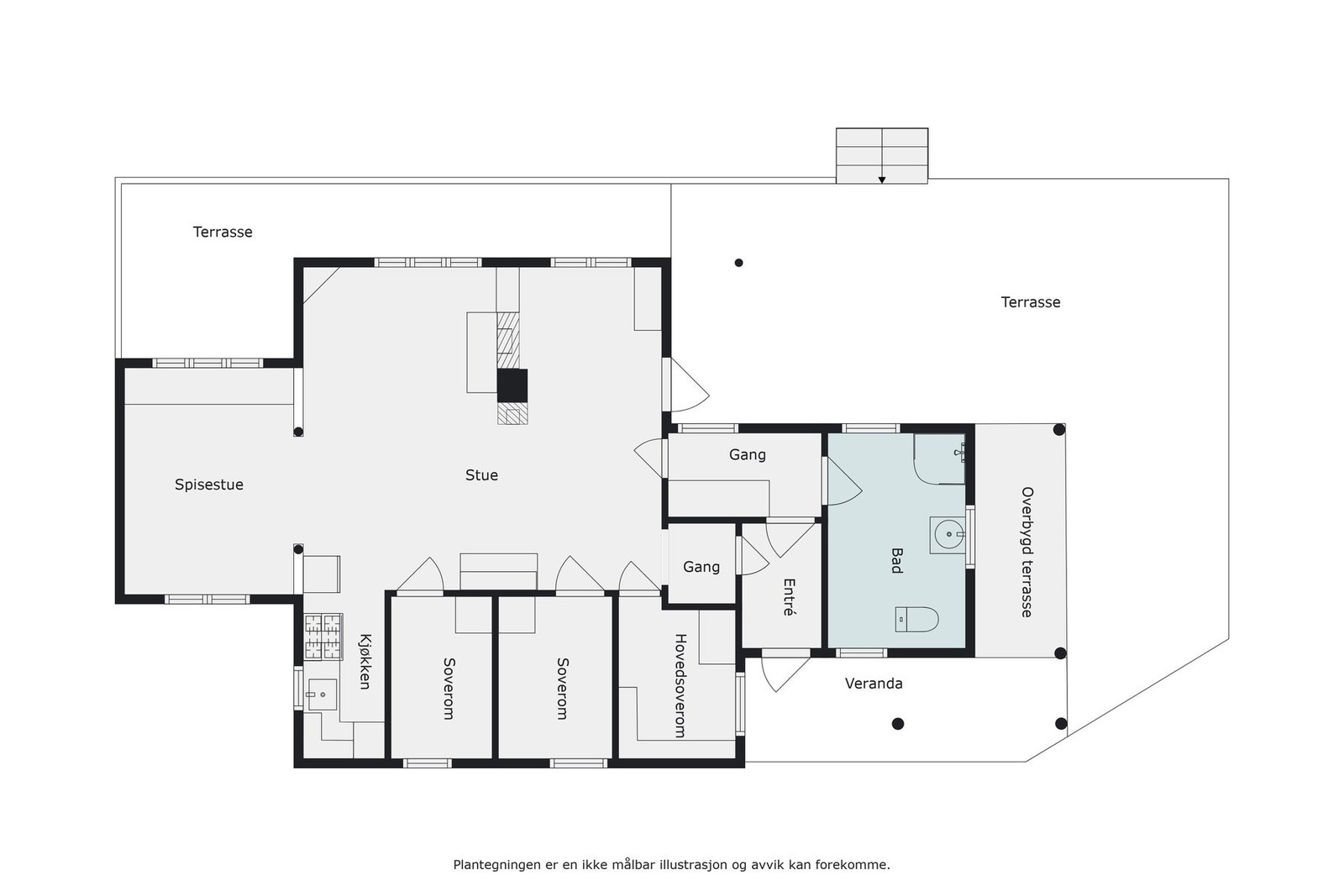
- Internt bruksareal
- 79 m² (BRA-i)
- Bruksareal
- 94 m²
- Eksternt bruksareal
- 15 m² (BRA-e)
- Innglasset balkong
- 15 m² (BRA-b)
- Tomteareal
- 2 113 m² (eiet)
- Byggeår
- 1984
- Soverom
- 3
- Rom
- 1
- Sengeplasser
- 6
Fasiliteter
Balkong/Terrasse
Peis/Ildsted
Turterreng
Bilvei frem
Visning
lørdag, 21. februar
12:00 – 13:00
For å yte premium rådgivning, har alle våre visninger påmelding. Dette sikrer at megler har god oversikt og tid til å imøtekomme alle interessenter på aller beste måte. Dersom ingen interessenter er påmeldt, kan visningen bli avlyst. Ta direkte kontakt med megler for visning utover det annonserte!
Husk å lese komplett salgsoppgave før visning. Bestill komplett, utskriftsvennlig salgsoppgave.
VisningspåmeldingOm boligen
Vi har gleden av å presentere Kinnsvegen 235 - et hyggelig hyttetun med fin beliggenhet ved Svartetjernet. Med sin beliggenhet mellom Aurdal og Tisleidalen, er det kort avstand til flotte turer i naturen rundt, både sommer og vinter. Eiendommen er bestående av hytte, anneks, uthus og en lekehytte. Her er det gode solforhold, og fin utsikt til bl.a. Svartetjernet. Denne eiendommen kan skilte med følgende:
- Strøm fra solcelleanlegg og aggregat.
- Vann fra borebrønn med tappepunkt på yttervegg.
- Tre soverom + soverom i anneks.
- Romslig tomt på ca. 2,1 mål.
- Ta kontakt direkte med megler for å avtale visning utover det annonserte!
Velkommen til visning!
- Strøm fra solcelleanlegg og aggregat.
- Vann fra borebrønn med tappepunkt på yttervegg.
- Tre soverom + soverom i anneks.
- Romslig tomt på ca. 2,1 mål.
- Ta kontakt direkte med megler for å avtale visning utover det annonserte!
Velkommen til visning!
NB: Knappen for å vise hele beskrivelsen har kun en visuell effekt.
NB: Knappen for å vise hele beskrivelsen har kun en visuell effekt.
Salgsoppgaven beskriver vesentlig og lovpålagt informasjon om eiendommen
Se komplett salgsoppgaveNyttige lenker
Nærområdet
EIE Fjellmegleren Valdres
Annonseinformasjon
| FINN-kode | 406831460 |
|---|---|
| Sist endret | 04. feb. 2026 10:30 |
| Referanse | 48250006 |
Annonsene kan være mangelfulle i forhold til lovpålagt opplysningsplikt. Før bindende avtale inngås oppfordres interessenter til å innhente komplett informasjon fra meglerforetaket, selger eller utleier.































