Bildegalleri

Tomten er opparbeidet med plen, prydbusker, trær og diverse beplantning og gir en vakker ramme rundt hytta
Råde/Tasken
Sjarmerende og solrik sjøhytte med båtplass og flott utsikt over Kurefjorden | 1080 kvm solrik tomt | Bilvei helt frem
Prisantydning4 950 000 kr
- Omkostninger
- 141 116 kr
- Totalpris
- 5 091 116 kr
- Eiendomsskatt
- 4 617 kr per år
- Formuesverdi
- 369 240 kr
Nøkkelinfo
- Beliggenhet
- Ved sjøen
- Boligtype
- Hytte
- Eieform
- Eier (Selveier)
- Internt bruksareal
- 53 m² (BRA-i)
- Bruksareal
- 69 m²
- Eksternt bruksareal
- 16 m² (BRA-e)
- Balkong/Terrasse
- 25 m² (TBA)
- Tomteareal
- 1 080 m² (festet)
- Festeavgift
- 13 883 kr
- Byggeår
- 1994
- Soverom
- 2
- Rom
- 3
- Sengeplasser
- 2
- Energimerking
- E - Rød
Fasiliteter
Balkong/Terrasse
Peis/Ildsted
Utsikt
Bilvei frem
Båtplass
Innlagt strøm
Visning
søndag, 15. mars
15:00 – 15:30
Velkommen til visning!
Alle våre visninger har påmelding. På denne måten sikrer vi at våre meglere har god tid og på best mulig måte kan møte alle interessentene. Det er enkelt å melde seg på og like enkelt å melde seg av.
Husk å les salgsoppgaven i forkant!
Kontakt oss gjerne i forkant av visning om du har noen spørsmål.
Husk å lese komplett salgsoppgave før visning. Bestill komplett, utskriftsvennlig salgsoppgave.
VisningspåmeldingOm boligen
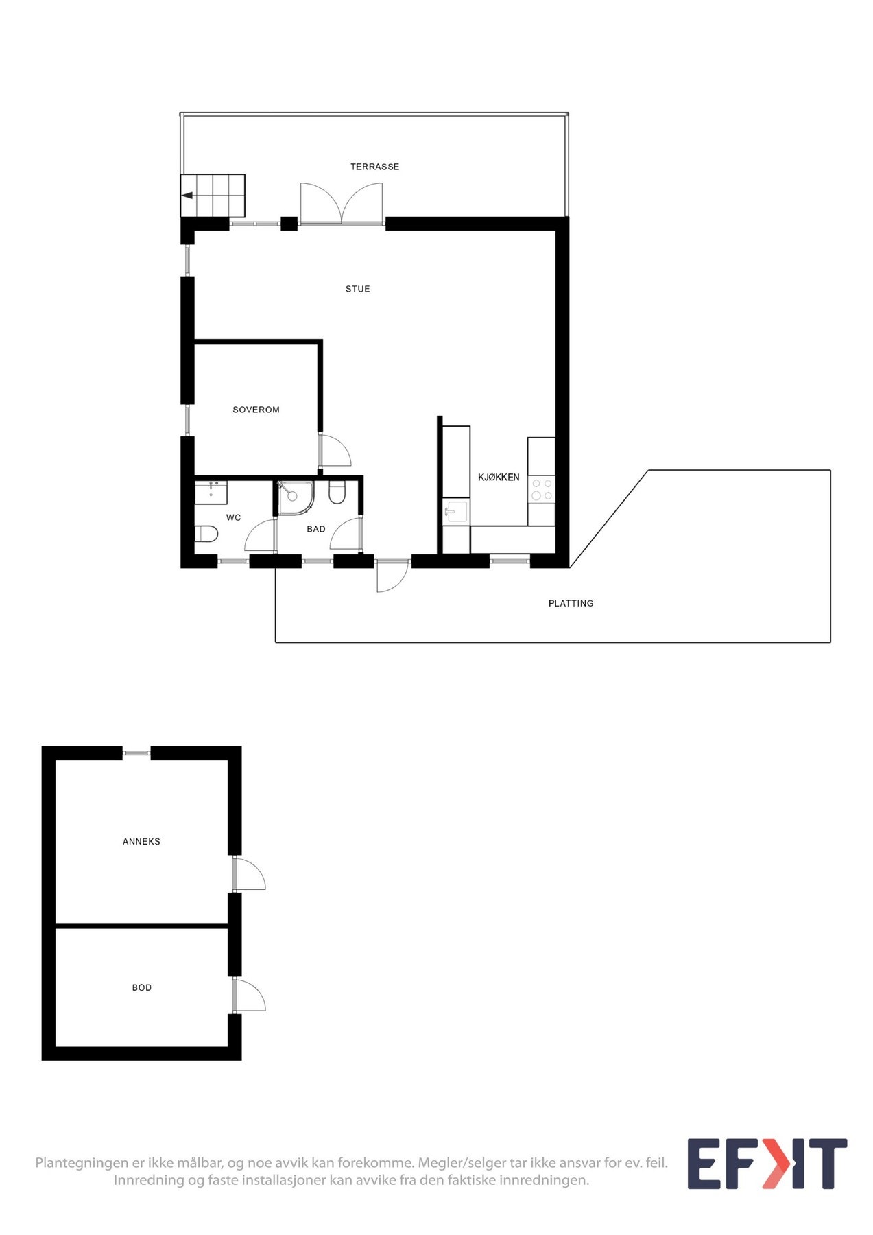
Velkommen til Danseplassen 4 - en trivelig og gjennomført hytte på 53 kvm med nydelig utsikt over Kurefjorden. Her får du blant annet stue med vedovn og utgang til vestvendt terrasse, kjøkken, bad, soverom, hems og anneks med ekstra soveplass. Ute venter en solrik tomt på 1 080 kvm, perfekt for både lek og avslapning. Beliggenheten byr på vakker natur, badestrender, båtliv og turmuligheter - alt i gangavstand. Området har hyggelige naboer i ulik alder - et fint sted å finne ro og fellesskap.
Kvaliteter verdt å merke seg:
Kvaliteter verdt å merke seg:
- Det er tilrettelagt for vann og avløp inn til hytteveggen
- Med bil er det kort vei til både Moss, Fredrikstad og svenskegrensen
- Båtbrygga ligger like nedenfor eiendommen
- 2 soverom
- Anneks
- Meget gode solforhold fra morgen til sen kveld
Velkommen til visning!
NB: Knappen for å vise hele beskrivelsen har kun en visuell effekt.
NB: Knappen for å vise hele beskrivelsen har kun en visuell effekt.
Salgsoppgaven beskriver vesentlig og lovpålagt informasjon om eiendommen
Se komplett salgsoppgaveNærområdet
ASK Meglergaarden
Velkommen hjem!
Annonseinformasjon
| FINN-kode | 406533499 |
|---|---|
| Sist endret | 03. mars 2026 10:33 |
| Referanse | 3-25-0107 |
Annonsene kan være mangelfulle i forhold til lovpålagt opplysningsplikt. Før bindende avtale inngås oppfordres interessenter til å innhente komplett informasjon fra meglerforetaket, selger eller utleier.




































