Bildegalleri

DNB Eiendom v/Ånon Flåta ønsker velkommen til Gamlevegen 43A.
Hafjell
Lekker 3-roms fritidsleilighet fra 2021 i Hafjelltunet - rett ved alpinbakken | Vestvendt terrasse | Garasjekjeller
Prisantydning2 750 000 kr
- Omkostninger
- 69 840 kr
- Totalpris
- 2 819 840 kr
- Kommunale avg.
- 3 824 kr per år
- Felleskost/mnd.
- 2 534 kr
Nøkkelinfo
- Beliggenhet
- På fjellet
- Boligtype
- Leilighet
- Eieform
- Eier (Selveier)
- Internt bruksareal
- 56 m² (BRA-i)
- Bruksareal
- 56 m²
- Tomteareal
- 5 375 m² (eiet)
- Byggeår
- 2021
- Soverom
- 2
- Rom
- 3
- Energimerking
- D - Oransje
- Overtakelse
- Overtakelse etter nærmere avtale. Budgiver oppfordres til å opplyse ønsket overtagelse i budskjema.
Fasiliteter
Alpinanlegg
Balkong/Terrasse
Barnevennlig
Bilvei frem
Bredbåndstilknytning
Garasje/P-plass
Golfbane
Peis/Ildsted
Innlagt strøm
Offentlig vann/kloakk
Turterreng
Visning
Velkommen til visning! Meld deg på ved å trykke "visningspåmelding" i våre boligannonser. Visning med megler til stede vil ikke bli avholdt uten påmeldinger. Ta gjerne kontakt med megler i forkant av visningen om du har spørsmål.
VisningspåmeldingOm boligen
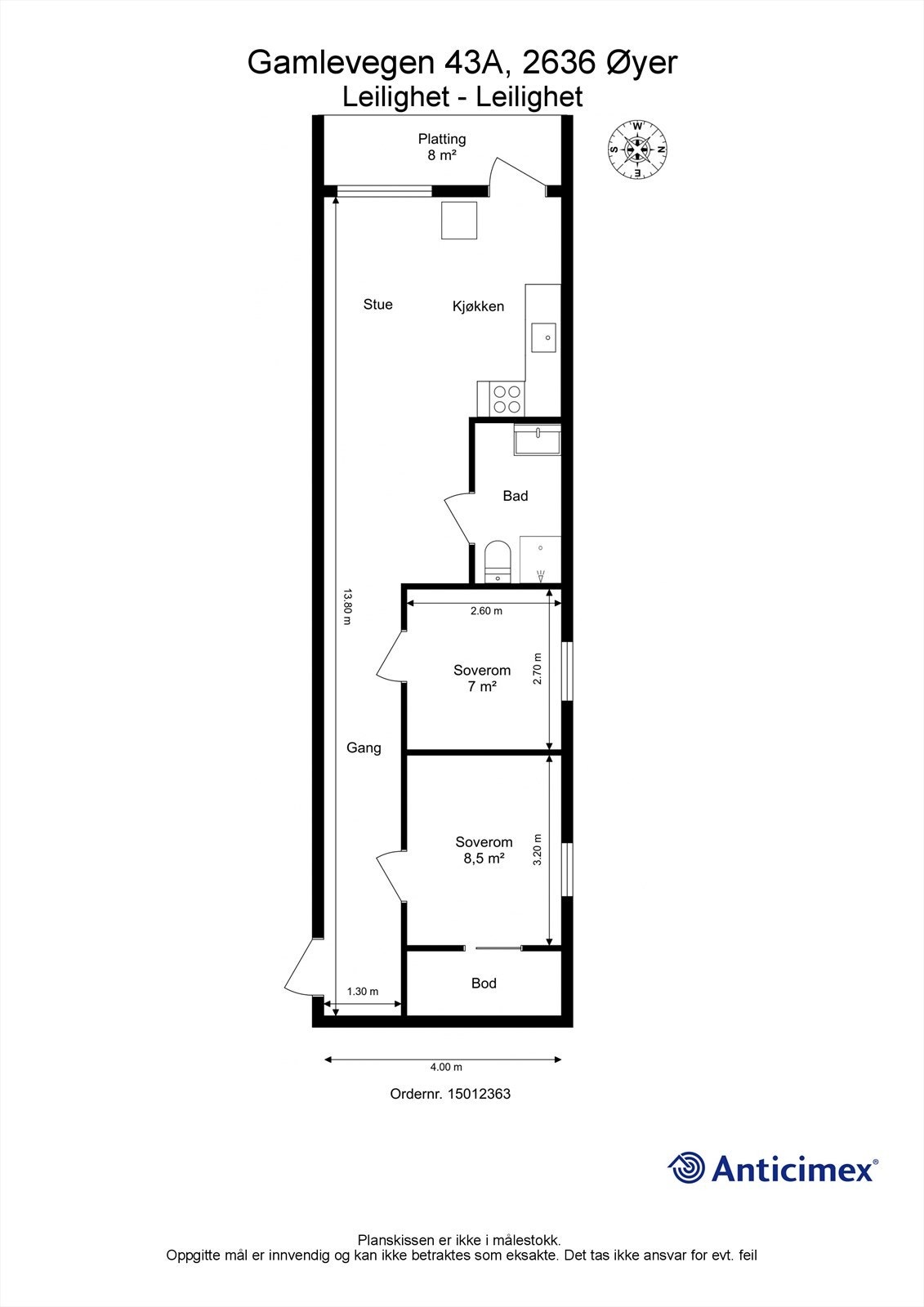
Velkommen til Gamlevegen 43A - en moderne fritidsleilighet med god standard i Hafjelltunet. Leiligheten har en praktisk planløsning som består av stue, bad, entré, bod og to soverom. Det følger med en parkeringsplass og romslig sportsbod i parkeringskjeller i tillegg til låsbart skiskap. Leiligheten har et moderne uttrykk med beisede vegger og tak, mørke detaljer, helfliset bad og et pent kjøkken.
Gode leieinntekter via Hafjell Hotell!
Hafjelltunet ligger ved foten av Hafjell alpinanlegg, rett ved Gondolen nederst i bakken. En helt unik beliggenhet hvor du praktisk talt kan ta på deg skiene utenfor døra og skli rett ut i bakken. Herfra har du tilgang til alt hva Hafjell kan by på i umiddelbar nærhet!
Gode leieinntekter via Hafjell Hotell!
Hafjelltunet ligger ved foten av Hafjell alpinanlegg, rett ved Gondolen nederst i bakken. En helt unik beliggenhet hvor du praktisk talt kan ta på deg skiene utenfor døra og skli rett ut i bakken. Herfra har du tilgang til alt hva Hafjell kan by på i umiddelbar nærhet!
NB: Knappen for å vise hele beskrivelsen har kun en visuell effekt.
NB: Knappen for å vise hele beskrivelsen har kun en visuell effekt.
Salgsoppgaven beskriver vesentlig og lovpålagt informasjon om eiendommen
Se komplett salgsoppgaveNyttige lenker
Nærområdet
DNB Eiendom AS
Verdifulle salg
Annonseinformasjon
| FINN-kode | 403207919 |
|---|---|
| Sist endret | 07. okt. 2025 12:03 |
| Referanse | 503250122 |
Annonsene kan være mangelfulle i forhold til lovpålagt opplysningsplikt. Før bindende avtale inngås oppfordres interessenter til å innhente komplett informasjon fra meglerforetaket, selger eller utleier.























