Bildegalleri

Bamble - Brevikstrand
Hytte som ligger meget solrikt på en kolle med utsikt mot sjøen, p-plass og båtfeste.
Prisantydning2 900 000 kr
- Omkostninger
- 113 390 kr
- Totalpris
- 3 013 390 kr
- Kommunale avg.
- 10 870 kr per år
Nøkkelinfo
- Beliggenhet
- Ved sjøen
- Boligtype
- Hytte
- Eieform
- Eier (Selveier)
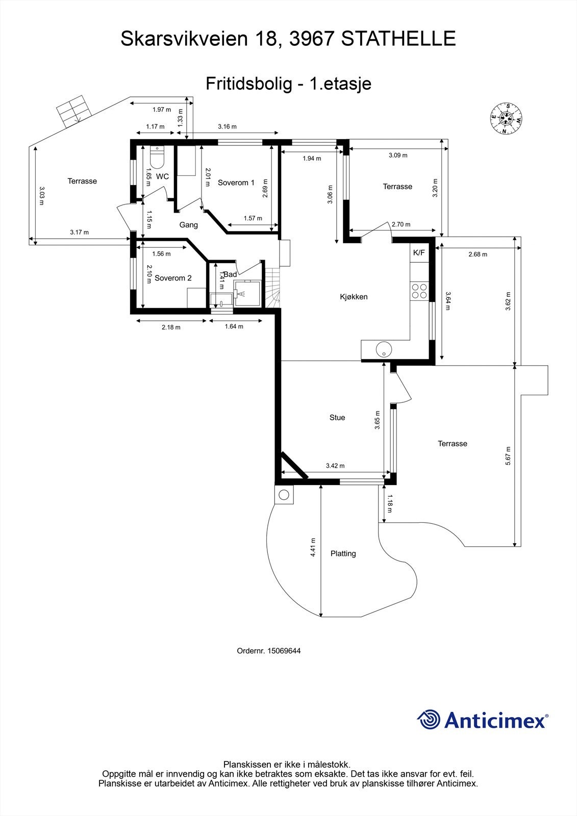
- Internt bruksareal
- 57 m² (BRA-i)
- Bruksareal
- 57 m²
- Balkong/Terrasse
- 49 m² (TBA)
- Tomteareal
- 470 m² (eiet)
- Byggeår
- 1960
- Soverom
- 2
- Rom
- 3
- Energimerking
- G - Rød
Fasiliteter
Balkong/Terrasse
Barnevennlig
Bilvei frem
Båtplass
Garasje/P-plass
Peis/Ildsted
Rolig
Utsikt
Bademulighet
Fiskemulighet
Innlagt strøm
Turterreng
Visning
lørdag, 14. mars
12:30
For å delta på visning, ber vi om at du melder deg på. Da sikrer vi at du får nødvendig informasjon og at det er satt av tilstrekkelig med tid. Kontakt megler dersom annet tidspunkt ønskes. Husk å lese salgsoppgaven før visningen, så du stiller forberedt.
Ønsker du kun å bli holdt orientert, kan du fra eiendommens hjemmeside få varsel om solgtpris, eller kontakte megler.
VisningspåmeldingOm boligen
- Hytta ligger usjenert til med enkel adkomst fra parkeringen og opp til hytta.
- Standarden er enkel og romløsningen er praktisk.
- Delvis overbygget terrasse og utekjøkken.
- Gangavstand til sjøen, fine badeplasser, turområder og småbåthavn.
NB: Knappen for å vise hele beskrivelsen har kun en visuell effekt.
NB: Knappen for å vise hele beskrivelsen har kun en visuell effekt.
Salgsoppgaven beskriver vesentlig og lovpålagt informasjon om eiendommen
Se komplett salgsoppgaveNyttige lenker
Nærområdet
Krogsveen Bamble og Porsgrunn
Verdien av en god megler.
Annonseinformasjon
| FINN-kode | 402417331 |
|---|---|
| Sist endret | 05. mars 2026 10:28 |
| Referanse | KR28.2535 |
Annonsene kan være mangelfulle i forhold til lovpålagt opplysningsplikt. Før bindende avtale inngås oppfordres interessenter til å innhente komplett informasjon fra meglerforetaket, selger eller utleier.










































