Bildegalleri

Eiertomt på 651,5 kvm. Tomten har gruset gårdsplass og ellers naturtomt.
Solgt
Vrådal Panorama
Bud innkommet! Frittliggende og meget innbydende hytte med hems. Stor terrasse med fritt utsyn og gode solforhold. Ski i
Prisantydning3 500 000 kr
- Omkostninger
- 108 490 kr
- Totalpris
- 3 608 490 kr
- Kommunale avg.
- 13 988 kr per år
- Formuesverdi
- 627 000 kr
Nøkkelinfo
- Beliggenhet
- På fjellet
- Boligtype
- Hytte
- Eieform
- Eier (Selveier)
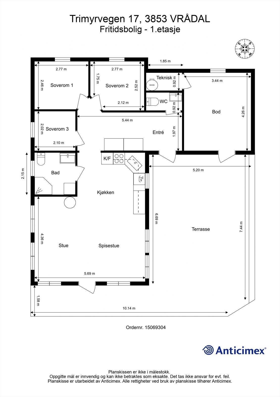
- Internt bruksareal
- 71 m² (BRA-i)
- Bruksareal
- 89 m²
- Eksternt bruksareal
- 18 m² (BRA-e)
- Balkong/Terrasse
- 53 m² (TBA)
- Tomteareal
- 652 m² (eiet)
- Byggeår
- 2012
- Soverom
- 3
- Rom
- 4
- Energimerking
- D - Oransje
Fasiliteter
Innlagt vann
Alpinanlegg
Balkong/Terrasse
Barnevennlig
Bilvei frem
Garasje/P-plass
Golfbane
Peis/Ildsted
Rolig
Utsikt
Bademulighet
Fiskemulighet
Innlagt strøm
Offentlig vann/kloakk
Turterreng
Om boligen
Trimyrvegen 17 lys og trivelig hytte med alt på én flate!
Her får du en moderne og innholdsrik hytte med flott beliggenhet rett ved alpinanlegget. Perfekt for familien som vil nyte fjellet sommer som vinter!
Alt på én flate praktisk og familievennlig planløsning
3 soverom + hems god plass til både store og små
Store vindusflater, høy himling og lyse fargevalg
Bad med opplegg for vaskemaskin og eget toalettrom
Stor utebod mulighet for ekstra oppholdsrom
Solrik tomt med flott utsyn og ski inn/ut
Velkommen til vakre Vrådal!
Her får du en moderne og innholdsrik hytte med flott beliggenhet rett ved alpinanlegget. Perfekt for familien som vil nyte fjellet sommer som vinter!
Alt på én flate praktisk og familievennlig planløsning
3 soverom + hems god plass til både store og små
Store vindusflater, høy himling og lyse fargevalg
Bad med opplegg for vaskemaskin og eget toalettrom
Stor utebod mulighet for ekstra oppholdsrom
Solrik tomt med flott utsyn og ski inn/ut
Velkommen til vakre Vrådal!
NB: Knappen for å vise hele beskrivelsen har kun en visuell effekt.
NB: Knappen for å vise hele beskrivelsen har kun en visuell effekt.
Salgsoppgaven beskriver vesentlig og lovpålagt informasjon om eiendommen
Se komplett salgsoppgaveNyttige lenker
Nærområdet
Krogsveen Sandefjord
Verdien av en god megler.
Annonseinformasjon
| FINN-kode | 401228375 |
|---|---|
| Sist endret | 19. jan. 2026 14:49 |
| Referanse | KR22.25107 |
Annonsene kan være mangelfulle i forhold til lovpålagt opplysningsplikt. Før bindende avtale inngås oppfordres interessenter til å innhente komplett informasjon fra meglerforetaket, selger eller utleier.





















































