Bildegalleri

Velkommen til Laftestølen og hytte 18-L316!
Laftestølen - Eksklusiv laftehytte fra LHM med høy standard. 5 sov, jordvarme, nydelig utsikt & ski-inn/ut! Garasje!
- Omkostninger
- 1 090 kr
- Totalpris
- 15 901 090 kr
Nøkkelinfo
- Beliggenhet
- På fjellet
- Boligtype
- Hytte
- Eieform
- Eier (Selveier)
- Internt bruksareal
- 173 m² (BRA-i)
- Bruksareal
- 173 m²
- Tomt
- Festet
- Festeavgift
- 5 365 kr
- Byggeår
- 2025
- Soverom
- 5
- Rom
- 6
Visning
Husk å lese komplett salgsoppgave før visning. Bestill komplett, utskriftsvennlig salgsoppgave.
VisningspåmeldingOm eiendommen
Hytte 18 - L316
Praktfull tømmerlafthytte med 5 soverom, 2 stuer, 2 bad + wc, sauna og en romslig kjøkken-/stueløsning med store vindusflater og god takhøyde.
I tillegg en lekker, laftet garasje med praktisk skibod.
Romslig hall med god oppbevaringsplass og gjestetoalett. Fra gjestetoalettet er det dør videre til boden, som også har utvendig adkomst.
Fra hallen er det en lekker glassdør inn til en stor, velutstyrt kjøkkenavdeling med utgang til terrasse. Den åpne løsningen fører videre til en romslig stue med god takhøyde og store vindusflater som gir utsikt utover dalen og alpinbakkene. Innenfor stuen ligger to soverom og et flislagt bad med sauna. Hovedsoverommet har utgang til terrasse.
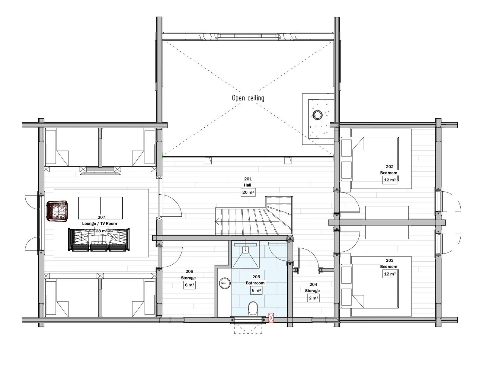
Andre etasje har et flislagt bad, to soverom, stue og TVstue med ekstra sengeplasser. Store vinduer i TV-stuen og en glassvegg med glassdør ut til stuen gir en åpen romfølelse og slipper inn mye lys.
Gulvareal: 192 m2 (107 + 85 m2)
BRA: 173,6 m2
Garasje 30m2, hall 9 m2
Stor terrasse på ca. 40 kvm
5 soverom, ett i kombinasjon med tv-stue
13 sengeplasser
2 bad + wc
Brunner peis
Sauna
6 m2 bod og to praktiske boder i andre etasje
Bergvarme i 1 etasje
Lekker garasje med egen skibod
Hytta er oppgradert med:
Bred parkett på kjøkken og stue
Bomma Lens lampe i stue
Premium innerdører med skjulte 3D hengsler og magnetlåser
Garasje og EL-lader
Laftestølen - Eksklusive laftehytter med ski-inn/-ut og gangavstand til serveringssteder!
På et sentralt og flott beliggende hyttefelt på Kvitfjell Varden kommer nå 14 moderne og helt nye stavlaft- og laftehytter fra anerkjente LHM-gruppen! Hyttene kommer på romslige utsiktstomter. Laftestølen har en unik beliggenhet med direkte ski-inn/ski-ut til både langrenn og alpint, og byr på en flott utsikt mot Kvitfjell Vest og alpinbakkene!
Etter en aktiv dag i bakken eller skisporet, kan du nyte ettermiddagssolen i hytteveggen og den flotte utsikten mot Kvitfjell. Med en slik beliggenhet og utsikt over fjellene, skogen og skibakkene, får du virkelig følelsen av å være på fjellet!
Hyttene lages i tradisjonell laftestil, etter strenge kvalitetskrav, og er smakfullt utformet med åpne og tidsriktige planløsninger.
I Laftestølen får du en nøkkelferdig hytte i en standard som er langt over det normale. LHM-hyttene byr på en perfekt kombinasjon av gode håndverkstradisjoner og et moderne uttrykk, som legger til rette for avkobling i eksklusive omgivelser etter en aktiv dag på fjellet.
Besøk www.Laftestolen.no for hyttevelger!
Besøk hjemmesiden www.laftestølen.no for å finne din drømmehytte!
Ta kontakt for visning!
Megler: Hallvard Brekke Klingen - mob: 98 40 55 75
Utbygger: Cato Menkerud - mob: 911 66 311
Kvitfjell - Skientusiastenes førstevalg
Snøsikre Kvitfjell har en unik atmosfære, som blander det beste av skikjøring med det fremste av kos og hygge. Lett tilgjengelig fra E6, kun 45 minutter nord for Lillehammer, er dette skientusiastenes førstevalg med lange nypreparerte løyper og frikjøringsområder hvor du kan rendyrke skikjøringen din uten kø og mas.
Det er også det perfekte stedet for barnefamilier, turgåere og livsnytere. Fordelt på tre fjellsider finner du rikholdig med serveringssteder og løyper som byr på skiglede for alle nivåer. Her får du alt fra barneområder, funslopes og firkjøringsområder til svarte løyper med olympisk standard. Det vakre
fjellterrenget i Peer Gynts Rike byr på bredt utvalg av både vandreruter og langrennsløyper.
Kvitfjell er ikke bare den råe utforløypa du ser fra motorveien. Her finner du brede og lange løyper for alle nivåer. Med sine 34 kilometer med alpinbakker som sprer seg ut over 854 høydemeter byr Kvitfjell på fred, ro og perfekt preparerte løyper så langt øyet kan se. Du trenger ikke å bekymre deg over lange heiskøer.
På østsiden finner du de bratte og utfordrende løypene som ble benyttet til både utfor og super-G under OL på Lillehammer i 1994. Siden den gang arrangeres det årlig Word Cup i utforstraséen. Vestsiden er et eldorado for alle nivåer. Her finner du røde og grønne løyper, utfordrende skogskjøring og et perfekt barneområde med skålheis og rullebånd for de minste. Varden-siden byr på 5 blå og grønne bakker for de som ønsker å cruise nedover, og et utfordrende og morsomt skogsområde for barn og voksne. Her ligger også det nye frikjøringsområdet - Pudderskogen.
Laftestølen er det perfekte utgangspunktet for langrennsturen. Her kan du la bilen stå igjen på hytta - det er bare å gli rett ut i langrennsløypene utenfor døren.
Tar du Varden-heisen opp til toppen får du tilgang til et utstrakt langrennsnett med mange muligheter. Fra toppen av Varden er det i overkant av 1 mil til
Skeikampen og 2,5 mil til Gålå. Man kan også ta kortere turer til Skardbua og Fagerhøi. Det preppes flotte spor hele sesongen, og det finnes turer for alle nivåer i det 600 km lange løypenettet. For barna er det et stort skilekområde rett nedenfor Laftestølen, som egner seg utmerket til lek og aktivitet.
Kvitfjell - også kjent for sin gode mat!
Kvitfjell er stedet for matentusiastene, og her finner du et spennende utvalg spisesteder som tilbyr alt fra komplette gourmetmiddager til nybakte kanelboller og en god kopp kakao. Med hjemmelaget kvalitetsmat får matopplevelsen fullt fokus. Derfor er vi på Kvitfjell stolte over å være en frityrfri sone.
Tyrihanstunet må oppleves. Med fantastiske hjemmelagede lunsjretter, egen pizzeria, afterski og kveldsservering med Raclette, har Tyrihanstunet blitt en institusjon på Kvitfjell, som i tillegg tilbyr hjemkjøring. På vestsiden ligger også Gondolen Fjellbistro. Her får man hjemmelaget mat, varme og
kalde drikker og god stemning. Nye Varden restaurant serverer vanvittig god mat og holder det samme høye nivået som ellers på Kvitfjell. Koia, på østsiden, serverer gourmetpølser og god drikke i en 300 år gammel tømmerkoie, med gamle ski og startnummer på veggene. Dette er det perfekte stedet for en pause i bakken, og er Kvitfjells svar på den østerrikske afterskien. Helt nye Fôr på østsiden serverer nydelige lunsjretter og tilbyr gourmetmat med 5- og 7-retters middager.
Oppdragsansvarlig
PrivatMegleren Nyeboliger AS / Hallvard Brekke Klingen
Selger/Utbygger
Lhm gruppen as
Betegnelse
Gnr. 107 Bnr. 215 i Ringebu kommune
EIerform tomt: Festet tomt
Byggeår
2025
Oppvarming
Hytta leveres med vannbåren bergvarme i hele første etasje. Elektrisk oppvarming på baderom. Øvrige rom i andre etasje får sorte panelovner på veggene.
Fjernstyring av varme / "ring hytta varm" leveres som standard.
Parkering / Garasje
Garasjeplass for 1 stk. bil samt EL-lader. Det er i tillegg biloppstillingsplass på tomten.
Adkomst
Ta av fra E6 ved Fåvang og følg skilting mot Kvitfjell Varden / Vest. Vegen slynger seg oppover i dalsiden mot Kvitfjell Vest. Etter å ha passert Servicesenteret (ligger på høyre side av vegen) tar man til venstre opp mot Varden. Laftestølen ligger inn første stikkvei til venstre.
Tinglyste rettigheter og forpliktelser
Kommunen har legalpant som sikkerhet for betaling av kommunale avgifter. Legalpant er pant som følger av loven, og som ikke tinglyses. Legalpant følger derfor eiendommen ved salg. På eiendommen kan det være tinglyst erklæringer som f eks rett for kommunen til å vedlikeholde rørsystemer for vann- og kloakk. Disse erklæringene vil følge eiendommen ved salg. Kontakt megler for nærmere informasjon.
Servitutter / rettigheter
Eiendommen overdras fri for pengeheftelser, med unntak av eventuelle erklæringer, avtaler, servitutter og panteheftelser som fremgår av salgsoppgaven og skal følge med eiendommen ved salg. Kjøpers bank vil få prioritet etter disse. Selger tar forbehold om å tinglyse rettigheter og forpliktelser som er nødvendige for gjennomføringen av prosjektet. Kjøper kan ikke motsette seg eller kreve prisavslag/erstatning for tinglysning av denne typen erklæringer/servitutter. Følgende heftelser skal tinglyses på Eiendommen/tomten ved hjemmelsovergang:
Tinglysning av festekontrakt
Plikt for kjøper å være medlem av Varden hytteeierforeningn.
Plikt for kjøper til å betale et årlig løypebidrag til hytteeierforeningen. Det årlige løypebidraget skal dekke oppkjøring av blant annet langrennsløyper og er per tidspunkt for inngåelse av Kontrakten NOK 950, og kan indeksreguleres hvert tredje år.
Tinglyst adkomstrett og vedlikeholdsplikt på felles interne adkomstveier på feltet.
Opprettelse av velforening og hytteeierforening:
Hytteeierforening for Kvitfjell Varden:
Kjøper får gjennom inngåelse av Kontrakten, rettigheter og plikter knyttet til felles forvaltningsoppgaver i området. Kjøper blir ved inngåelse av Kontrakten forpliktet til å delta i en hytteeierforening hvis formål blant annet er drift og forvaltning av fellesoppgaver, herunder veier og felles tekniske anlegg innenfor den aktuelle reguleringsplan. Hytteeierforeningen vil bli etablert av Kvitfjellvarden AS, som har hovedansvaret for utviklingen av Kvitfjell Varden. Tomten og de øvrige tomter som selges på Eiendommen, vil vederlagsfritt kunne benytte fellesarealer. Eierskap til felles infrastruktur vil bli fordelt andelsvis på den enkelte Tomt. Hytteeierforeningen skal være ansvarlig i henhold til sine medlemmer for:
o Drift og forvaltning av veier i området i henhold til reguleringsplan, bebyggelsesplan og eventuell tomtedelingsplan. Ansvaret inkluderer også regulerte skjæringer, fyllinger, parkeringsplasser og snuplasser.
o Drift og forvaltning av felles vann og avløpsanlegg fra hovedledningen til tilknytningspunktet for den enkelte tomt.
o Drift og forvaltning av eventuelle felles kabelanlegg.
o Drift og forvaltning av eventuelle fellesarealer i området i den grad disse ikke er overtatt av den enkelte tomtefester eller tomteeier.
o Innkreving av festeavgift på vegne av Grunneier for de tomter som er festet i den grad Selger og Grunneier bestemmer dette.
o Innkreving av løypeavgift på vegne av Kvitfjell Alpinanlegg AS.
Det er Kvitfjellvarden AS som bestemmer hvorledes fellesområdene og infrastruktur best skal organiseres, hvem som skal stå som eier av fellesarealer og hvem som skal stå som eier av infrastruktur etc. Kvitfjellvarden AS vil senere ta endelig stilling til hvorledes dette organiseres. Kjøper av de enkelte fritidseiendom må akseptere de løsninger som velges. Kjøper er innforstått med at Kvitfjellvarden AS, andre utbyggere og Ringebu kommune skal gis en rett til å benytte og utvide etablert infrastruktur i tilknytning til den videre utviklingen av området.
Frem til hytteeierforeningen har konstituert et styre med vedtekter og eget budsjett er medlemmene (tomtefesterne og tomteeierne), heriblant Kjøper, forpliktet til hver å innbetale et årlig beløp til dekning av forpliktelser til drift og vedlikehold som nevnt foran. Innbetalingen skal skje til Kvitfjellvarden AS som i denne perioden skal forestå drift og vedlikehold for hytteeierforeningen. Selger skal ha rett til alternativt å utligne kostnader til drift, vedlikehold og forvaltning i henhold til revidert regnskap. For dette arbeidet har Kvitfjellvarden AS krav på godtgjørelse med et årlig beløp begrenset oppad til kr. 1.000 per år per tomt.
Når hytteeierforeningen har etablert eget styre kan hytteeierforeningen selv overta drift og forvaltning med en måneds varsel til Kvitfjellvarden AS. Kvitfjellvarden AS skal etter utløpet av perioden ikke ha rettigheter og plikter utover det som da eventuelt særskilt avtales. Kjøper plikter å innbetale årsavgift fastsatt av hytteeierforeningen for dekning av driftskostnader knyttet til felles infrastruktur og fellesarealer.
Vei / Vann / Avløp
Fritidsboligen skal kobles til offtentlig vann- og avløpsnett.
I tillegg til det offentlige nettet vil deler av Vann- og Avløpsnettet mellom hyttetomtene kunne være i privat sameie mellom hyttene. Stikkledninger fra tomtegrense frem til bebyggelse er private, og fremtidig vedlikehold av disse bekostes av eier. Alle bygg som knyttes til vann og avløp skal ha montert vannmåler som leies av Ringebu kommune.
Ferdigattest eller midl. brukstillatelse
Ferdigattest eller midlertidig brukstillatelse skal foreligge innen overtagelse av boligene. Det er selgers ansvar og fremskaffe ferdigattest og midlertidig brukstillatelse på boligene. Kjøper plikter å overta boligen mot midlertidig brukstillatelse, selv om seksjoneringen ikke er tinglyst. Selger vil i så fall besørge seksjonering så snart som mulig etter overtakelsen.
Kjøper er gjort oppmerksom på at ferdigattest ofte foreligger lang tid etter overtagelse og avhenger av blant annet årstid for opparbeidelse av uteareal. Midlertidig brukstillatelse gir imidlertid kjøper anledning til å ta boligen i bruk. Manglende ferdigattest skal ikke være til hinder for selgers oppgjør i forbindelse med overtagelsen. Ved overtakelse mot midlertidig brukstillatelse vil kjøper ha rett til å holde tilbake en forholdsmessig andel av kjøpesummen for uferdig utomhusareal.
Reguleringsforhold
Eiendommen ligger i et område som er regulert til fritidsbebyggelse. Dette i henhold til reguleringsplan Varden 2 (vedlagt salgsoppgaven).
Eiendommen har benevnelsen FB15 i reguleringsplan, med tillatt utnyttelse på inntil 45%.
Det er planlagt bygging av fritidsleiligheter på felt FB16-2
Faste, løpende kostnader
Hytta er ikke bygget enda, og kommunale avgifter vil beregnes først året etter ferdigstillelse.
Dette er et estimat på kommunale avgifter fra en sammenlignbar hytte i samme prosjekt (2024 gebyrer):
Eiendomssskatt: kr 13 513
Vannmåler, leie: kr 732,50
Abonnementsgebyr for vann: kr 6964
Abonnementsgebyr for avløp: kr 5380
Forbruk vann: kr 25,96 pr. m3
Forbruk avløp: kr 39,10 pr. m3
Renovasjon: kr 1724
Feiing/tilsyn, 1 pipe/løp: kr 442
Totalt inkludert forbruk vann/avløp for 2024: kr. 28 853
Info eiendomsskatt:
Eiendomsskatt for 2024, iberegnet verdi for hytte vil følge satsene hos Ringebu kommune. For boligeiendommer (heltidsboliger og fritidsboliger) er det vedtatt særsats på 4 promille, samt et bunnfradrag på kr 100 000 per boenhet.
Oppgjør:
Det vil fra Ringebu kommunes side ikke bli utført oppgjør av kommunale gebyrer, vannmåler eller eiendomsskatt ved et eventuelt eierskifte. Hvis oppgjør er ønskelig, må dette tas direkte mellom tidligere og ny eier.
Velforeningsavgift:
Forretningsfører opplyser at velforeningsavgiften for 2024 ligger på ca kr. 6.000. Dette inkluderer brøyting/strøing og annet vegvedlikehold, løypebidrag til hytteierforeningen og en administrasjonsavgift.
Det årlige løypebidraget til hytteeierforeningen skal dekke oppkjøring av blant annet langrennsløyper. Beløpet innkreves av hytteeierforeningen og kan indeksreguleres hvert tredje år. For inneværende år er det årlige løypebidraget kr. 1 200,-. Forretningsfører opplyser at det høyst sannsynlig blir en indeksregulering til neste sesong.
Festeavgift:
Det skal betales en årlig festeavgift til grunneier. Beløpet for 2024 er kr. 4 405. For mer informasjon om festekontrakten se under punktet "Festeavgift".
Øvrige kostnader:
I tillegg vil det påløpe kostnader til strøm, forsikring og tv/internett-abonnement. Kostnader forbundet med dette er avhengig av den enkelte kundens valg/forbruk.
Estimat fra sammenlignbar hytte i prosjektet:
- Årlig strømforbruk 11 223 kWh, kostnad kr. 14 000.
- Internett (Telenor) 100 Mbps, kostnad kr. 10 000
- Hytteforsikring, kostnad kr. 10 000 (inkl. innbo)
- Snømåking av egen gårdsplass, kostnad for 2024 kr. 3 000.
Oppgjør
Kjøpesum med tillegg av omkostninger skal være disponibelt på meglers klientkonto innen overtagelse. Normalt innebærer dette at fullt oppgjør må være innbetalt på meglers klientkonto senest to virkedager før avtalt overtagelsesdato.
Eventuelle vilkår knyttet til innbetalingen, eksempelvis pantedokument som skal tinglyses til fordel for kjøpers bank, må være megler i hende i god tid før overtagelse kan finne sted.
Finansiering
Kontakt megler for avklaring av finansielle forhold, herunder lån til kjøp av eiendom. Privatmegleren har avtale med Nordea om formidling av lån og andre finansielle tjenester. Privatmegleren mottar godtgjørelse for dette.
Festeavtale
Festeavtalen ligger vedlagt i salgsoppgaven.
Adgang til utleie (fritidsboligformål)
Hele hytta kan leies ut.
Ta kontakt med Kvitfjell Booking for fordelaktige tilbud.
Konsesjon / Odel
Det er ikke odel på eiendommen.
Kjøper må fylle ut grønt egenerklæringsskjema om konsesjonsfrihet i forbindelse med kjøpet.
Sikkerhetsstillelse
Alle eiendomsmeglingsforetak har lovpålagt forsikring av klientmidler begrenset oppad til kr 45 mill. Enkeltsaker er forsikret inntil kr 15 mill. Dersom kjøpers låneinstitusjon krever tilleggsforsikring ved omsetning over 15 millioner, må kjøper selv eller dennes låneinstitusjon dekke utgiftene forbundet med dette.
Planlagt overtagelse
Etter nærmere avtale
Selgers forbehold
Når det gjelder forbehold knyttet til selve gjennomføringen av prosjektet (kvaliteter, utforming, m.m.), vises det til leveransebeskrivelsen for prospektet. Er det motsetninger mellom prospekttegninger og leveransebeskrivelsen, gjelder leveransebeskrivelsen foran tegninger.
Utbygger forbeholder seg retten til å gjøre endringer på konstruksjoner og evt. materialer som er hensiktsmessige og nødvendige uten at den generelle standarden eller verdien forringes eller medfører endring i pris eller kvalitet. Kasser og nedforing der det er hensiktsmessig ift. ventilasjon og rørføringer.
Selger tar også forbehold om å endre hyttemodeller, interne veier og tomter/tomtestørrelse på usolgte enheter for å eventuelt optimalisere prosjektet.
Lovanvendelse
Eiendommen selges etter reglene i avhendingsloven.
Eiendommen skal overleveres kjøper i tråd med det som er avtalt. Det er viktig at kjøper setter seg grundig inn i alle salgsdokumentene, herunder salgsoppgave, tilstandsrapport og selgers egenerklæring. Kjøper anses kjent med forhold som er tydelig beskrevet i salgsdokumentene. Forhold som er beskrevet i salgsdokumentene kan ikke påberopes som mangler. Dette gjelder uavhengig av om kjøper har lest dokumentene. Alle interessenter oppfordres til å undersøke eiendommen nøye, gjerne sammen med fagkyndig før bud inngis. Kjøper som velger å kjøpe usett kan ikke gjøre gjeldende som mangel noe han burde blitt kjent med ved undersøkelsen.
Dersom det er behov for avklaringer, anbefaler vi at kjøper rådfører seg med eiendomsmegler eller en bygningssakyndig før det legges inn bud.
Hvis eiendommen ikke er i samsvar med det kjøperen må kunne forvente ut ifra alder, type og synlig tilstand, kan det være en mangel. Det samme gjelder hvis det er holdt tilbake eller gitt uriktige opplysninger om eiendommen. Dette gjelder likevel bare dersom man kan gå ut i fra at det virket inn på avtalen at opplysningen ikke ble gitt eller at feil opplysninger ikke ble rettet i tide på en tydelig måte. Det kan avdekkes enkelte forhold etter overtakelse som nødvendiggjør utbedringer. Normal slitasje og skader som nødvendiggjør utbedring, er innenfor hva kjøper må forvente og vil ikke utgjøre en mangel.
Boligen kan ha en mangel dersom det er avvik mellom opplyst og faktisk areal, forutsatt at avviket er på 2% eller mer og minimum 1 kvm.
Ved beregning av et eventuelt prisavslag eller erstatning må kjøper selv dekke tap/kostnader opptil et beløp på kr 10 000 (egenandel).
Dersom kjøper ikke er forbruker selges eiendommen som den er , og selgers ansvar er da begrenset jf. avhl. § 3-9, 1. ledd 2. pktm. Avhendingsloven § 3-3 (2) fravikes, og hvorvidt en innendørs arealsvikt karakteriseres som en mangel vurderes etter avhendingsloven § 3-8. Informasjon om kjøpers undersøkelsesplikt, herunder oppfordringen om å undersøke eiendommen nøye, gjelder også for kjøpere som ikke anses som forbrukere. Med forbrukerkjøp menes kjøp av eiendom når kjøperen er en fysisk person som ikke hovedsakelig handler som ledd i næringsvirksomhet..
Garantier
Selger plikter å stille entreprenørgaranti for leiligheter som selges innen 6 måneder etter fullføringstidspunktet, jf. avhendingslova § 2-11. Leiligheter som selges senere enn 6 måneder etter fullføringstidspunktet selges uten entreprenørgaranti.
Garanti i henhold til avhendingsloven §2-11/bustadoppføringslova §12 stilles i alle avtaler inngått frem til og med 01.05.2026.
Forsikring
Frem til overtagelse vil eiendommen være forsikret av selger. Etter overtagelse vil kjøper være ansvarlig for å sørge for tilstrekkelig forsikring av hytte og innbo.
Budgiving
Boligen selges til fastpris.
Alle bud/kjøpetilbud på eiendommen skal være skriftlig og sendes meglerforetaket pr. fax, mail, sms eller via vår "gi bud"-knapp på våre nettsider. Knappen finner du også på Privatmeglerens hjemmeside for prosjektet, se på den enkelte bolig.
Bud/kjøpetilbud må ikke ha kortere akseptfrist enn til kl. 12.00 første virkedag etter siste annonserte visning. Lørdag regnes ikke som virkedag. Bud/kjøpetilbud med kortere frist enn dette kan ikke formidles av megler. Nærmere info om budgiving finner du på egen side sammen med kjøpetilbud/budskjema.
Som budgiver hos Privatmegleren kan du kreve budjournal fremlagt så snart handel er gjennomført.
Innhold i budjournal er lovregulert, og innebærer at budgivere må akseptere at opplysninger om budet kan bli fremlagt for selger, kjøper og øvrige budgivere. Budgiver som ikke blir kjøper, kan kreve kopi av anonymisert budjournal.
Lov om hvitvasking
Megler er underlagt lov om hvitvasking som innebærer plikt til å melde ifra til Økokrim om mistenkelige transaksjoner
Meglers vederlag og utlegg
Provisjon er avtalt til 1.10% av salgssummen
Prisantydning hytte kr. 16 550.000,- vil provisjonen bli kr. 182 050,-
Oppgjørsgebyr (Kr 5 000)
Totalt inkl. provisjon (Kr. 187 050)
Dersom eiendommen ikke omsettes, faktureres selger kr 9.900.
Salgsoppgaven beskriver vesentlig og lovpålagt informasjon om eiendommen
Se komplett salgsoppgaveNyttige lenker
Nærområdet

PrivatMegleren Nyeboliger Oslo
Annonseinformasjon
| FINN-kode | 400834598 |
|---|---|
| Sist endret | 25. des. 2025 03:07 |
| Referanse | 304220088 |
Annonsene kan være mangelfulle i forhold til lovpålagt opplysningsplikt. Før bindende avtale inngås oppfordres interessenter til å innhente komplett informasjon fra meglerforetaket, selger eller utleier.






























