Bildegalleri

Innflytningsklar hytte er nå tilgjengelig her på vakre Langedraglia SØR
Innflytningsklar, moderne hytte med eventyrlig beliggenhet | Lang solgang og fantastisk utsikt | 122m² gulvareal
- Omkostninger
- 74 000 kr
- Totalpris
- 4 514 000 kr
Nøkkelinfo
- Beliggenhet
- På fjellet
- Boligtype
- Hytte
- Eieform
- Eier (Selveier)
- Internt bruksareal
- 78 m² (BRA-i)
- Bruksareal
- 82 m²
- Eksternt bruksareal
- 4 m² (BRA-e)
- Balkong/Terrasse
- 41 m² (TBA)
- Tomteareal
- 1 063 m² (eiet)
- Soverom
- 4
- Meter over havet
- 820
Fasiliteter
Visning
Ta kontakt for å avtale visning.Om eiendommen
Beliggenhet
Kort fortalt; Vi i Langedraglia har gleden av å presentere en innholdsrik og moderne hytte her på vakre Langedraglia Sør. Hytten står ferdig, så her er det bare å flytte rett inn. På østsiden av Tunhovd, rett overfor Tunhovdfjorden, i Nore og Uvdal kommune finner du Langedraglia. Her ligger du med en drømmende utsikt over Tunhovdfjorden med mektige fjell rundt. Denne utsikten må oppleves! Ellers er du her omringet av storslått natur med nærhet til fantastisk og variert turterreng. Hytta har en god og romslig planløsning tilpasset et bekvemt liv i fjellet med blant annet 2 stuer og 4 soverom. Plassbygde møbler er inkludert i prisen!
Perfekt for deg som søker roen, med storslått natur og flott turterreng, sommer som vinter, like utenfor din fremtidige hyttedør.
Høydepunkter:
- Helårshytte med aktiviteter hele året
- Vestvendt og lang solgang
- Stor endetomt på 1063 m²
- Snaufjellet som nærmeste nabo
- Tureldorado rett utenfor hyttedøren
- Tilgang på fantastisk skiløypenett
- Rett ved skiløype
- Kort kjøretur til Langedrag Naturpark
- 30 min kjøretur til Nesfjellet Alpin og -Golf
- Under en time kjøretur til Geilo og Uvdal Skisenter
- Underkant av 30 min kjøretur til Nesbyen Sentrum
- Visning etter forespørsel
- Gå inn på www.langedraglia.no
- Lave omkostninger (dokumentavgift kun av tomteverdi)
- OM HYTTA
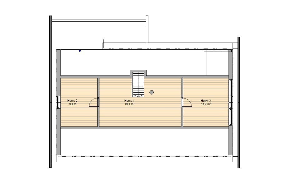
- Hemsetasje på ca. 40 m² gulvareal med 2 rom og stue
- 189 meter høyde på hemsen
- 1 bad + ekstra wc
- Snekkerbygd kjøkken fra Rodegård Interiør
- Store vinduer med nydelig utsikt og lysinnfall
- Prisen = nøkkelferdig hytte inkl. plassbygde møbler
- Merk! Interiørbilder er ikke av den faktiske hytten, men av tilsvarende løsning med samme standard. Det er montert tilsvarende plassbygde møbler. Avbildet hytte er stylet med møbler fra Persgaard møbler.
Generelt
Adkomst/Tomteforhold
Opplev Langedraglia
I tillegg til den eventyrlige utsikten, er Tunhovdfjorden også en yndeplass for både fiske og bading sommerstid. Dette stedet er ypperlig for helårsbruk, da mulighetene er mange og varierte uansett hvilken årstid vi befinner oss i. Hytta ligger også med umiddelbar nærhet til et meget attraktivt skiløypenett og spennende alpinbakker. Turområdene øst for hytta, innover snaufjellet fra naturparken Langedrag, er mulighetene svært gode og mangfoldige. Mot nord knyttes dette området mot Nesfjellet, med Åkrefjell og Trommenatten som flotte turmål. Du kan også gå innom Nystølkroken på turen, og få servert et bedre måltid eller fersk bakst. Omtrent hele skituren går over 1000 moh i et fantastisk, eventyrlig vinterland. Skiløypene blir daglig preparert og om været viser seg fra den beste side, blir dette en fantastisk opplevelse. Østover går turen mot Hallingnatten, som også er en del av Eventyrløypa, som strekker seg fra Geilo til Norefjell. Uansett hvilken retning du ønsker å gå, ligger milevis med løyper og venter på deg. Se hele løypenettet på www.skisporet.no.
Nesfjellet Alpin, som kan skilte med 15 nedfarter fordelt på 6 heiser og som blant annet innehar Skandinavias råeste stolheis, ligger kun en halvtime unna hyttedøren. Nesfjellet Alpin er en destinasjon som tilbyr et allsidig helårstilbud, utviklet med respekt for natur og kvalitet. Alpinbakkene trekker mange skiglade familier, som i tillegg til nedfartene, kan by på parker og barneområder. Anlegget byr med andre ord på variert skikjøring for hele familien, med velpreparerte bakker i alle vanskelighetsgrader. Selve hjerte i anlegget er en en 8-seters stolheis med en lengde på 1480 meter og en fart på 6m i sekundet. Denne vil være til stor glede for skikjøreren på vinteren, men er også forberedt for den tur- og sykkelglade om sommeren. Omgivelsene rundt Nefjellet Alpin, og Nesbyen for øvrig, byr på landets beste sykkeltilbud innen stisykling.
I tillegg til Nesfjellet Alpin, er Geilo og Uvdal Skisenter under en times biltur unna, noe som gjør at Langedraglia fint kan tilfredsstille kresne alpinentusiaster. Vinterparadiset Geilo, med sine 45 forskjellige nedfarter, 22 heiser og et 34km langt løypenett, regnes som et av landets største og beste skisentre. Her finnes det flust av muligheter til å boltre seg i, med alt fra slake barnebakker til bratte og mer krevende løyper. Geilo er kjent som en familievennlig skidestinasjon og i de ulike skiarenaene finner du gode barneområder.
Videre er landskjente Langedrag Naturpark lokalisert under ti minutter unna. Der kan man oppleve særnorske dyr som elg, reinsdyr, fjording og norsku husdyr på nært hold. Utrydningstruede dyrearter som ulv, fjellrev og gaupe er også å finne her. Langedrag Naturpark er en yndet destinasjon for barnefamilier og turister. Fjellgården ligger som et Soria Moria-slott på 1000 m.o.h. midt mellom Numedal og Hallingdal. Det er et yrende dyreliv på Langedrag med rundt 300 dyr fordelt på 20 forskjellige arter. Om sommeren arrangeres rideshow, rideleir, seterdager og andre aktiviteter. På vinterstid er hundekjøring en populær aktivitet. I helgene kan du overnatte her og ta del i livet på gården. Langedrag tilbyr også overnatting hele året.
Er du av den mer aktive typen, anbefaler vi en tre kvarters kjøretur til Dagali hvor man finner aktiviteter som rafting, snøscooterkjøring, paintball, go-kart og rappellering.
35 minutters kjøring unna ligger Camp Uvdal. Der finnes mange aktiviteter for både store og små. Fiske, kano og kajakk, sykkelsti, og fotballgolf med en ni-hullsbane. Videre finner du en aktivitetsløype, byggesett i laft (både store lafteklosser utendørs og miniatyrlaft innendørs), trampoline og bordtennis. I tillegg finnes det en stor tumleplass for forskjellige typer leker.
I Nore og Uvdal er jaktmulighetene mange. Med Hardangervidda Nasjonalpark litt over en time unna er det muligheter for både villreinjakt, storvilt og småvilt. Videre er det fiskemuligheter, enten nede i dalen med Numedalslågen og tilhørende fjorder, eller i alle de ulike fjellpartiene som kommunen er omringet av.
Innhold
Hytta her på vakre Langedraglia vil gå over to plan med 1. etasje og hemsetasje.
Hytta innehar en meget praktisk og gjennomtenkt planløsning med bl.a. 4 soverom, hvorav 2 er lokalisert på hemsen. Hytta har ett romslig bad og ett ekstra wc. Loftstuen er et attraktivt rom for de yngste, eller den som ønsker å trekke seg litt tilbake. Hovedstuen ligger i tilknytning til spisestuen og kjøkken. Her kan du fint møblere med langbord. Store vinduer slipper inn flott utsikt og mye lys.
I forbindelse med inngangspartiet finner du den utvendige boden på ca. 4 m². Her er det overbygg som gir tørr tilgang til boden året rundt
Ut fra stuen finner du terrassen på ca. 41 m².
Ønsker du enda mer lagringsplass er det fult mulig å sette opp et uthus.
Standard
Hytta er levert av Hallinghytter og modellen heter Skarvheim. Den selges komplett og innflyttingsklar, med gjennomgående god standard. All lysarmatur er utført med i sort utførelse. Dette gir optimal match med mørke vinduer og dører. Hytta leveres ferdig behandlet innvendig og utvendig. Utvendig er hytta behandlet med Nordkledning som innebærer en impregnert behandling. Dette gir en fantastisk patina og nær vedlikeholdsfri standard. Kjøkken er levert komplett fra Rodegård Interiør med alle hvitevarer inkl.
Vesentlige opplysninger
Det gjøres oppmerksom på at hytten som er avbildet, interiør, i bildeserien ikke er av hytten den faktiske hytten som er til salgs, men av en tilsvarende modell. Vi tar forbehold om at mindre avvik kan forekomme. Eksteriørbilder er av den faktiske hytten som er bygget.
Ta kontakt med megler for komplett informasjon
Nyttige lenker
Nærområdet
Nesfjellet Prosjektutvikling AS
Annonsene kan være mangelfulle i forhold til lovpålagt opplysningsplikt. Før bindende avtale inngås oppfordres interessenter til å innhente komplett informasjon fra meglerforetaket, selger eller utleier.





























































