Bildegalleri

NOREFJELL
VISNING 14.02 - Luksushytte i tømmer med moderne teknologi og design. Fantastisk utsikt. Ski-in/out til langrennsløyper.
Prisantydning16 500 000 kr
- Omkostninger
- 46 000 kr
- Totalpris
- 16 546 000 kr
- Kommunale avg.
- 10 003 kr per år
- Eiendomsskatt
- 1 000 kr per år
Nøkkelinfo
- Beliggenhet
- På fjellet
- Boligtype
- Hytte
- Eieform
- Eier (Selveier)
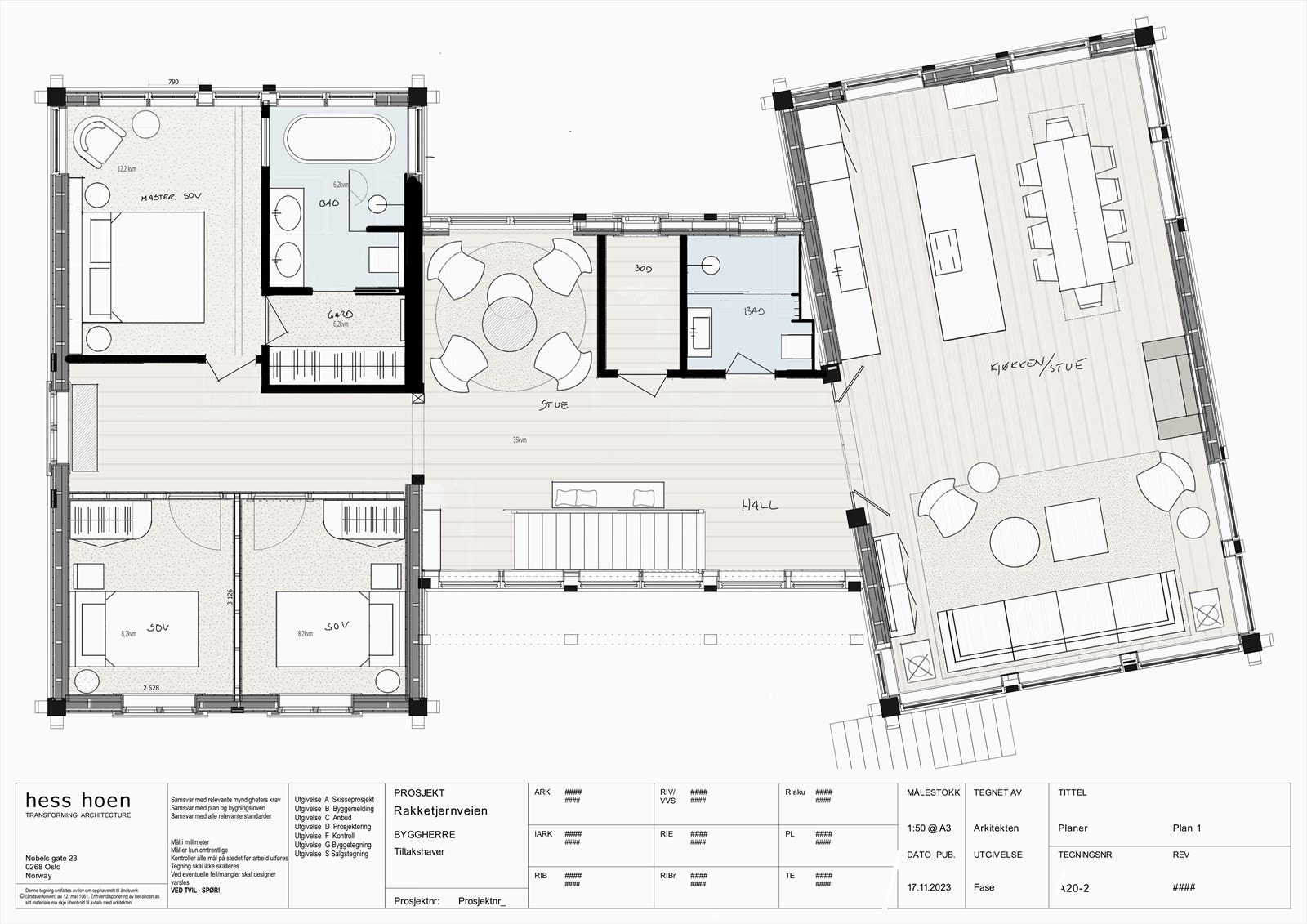
- Internt bruksareal
- 290 m² (BRA-i)
- Bruksareal
- 290 m²
- Tomteareal
- 2 221 m² (eiet)
- Byggeår
- 2024
- Soverom
- 5
- Rom
- 2
Fasiliteter
Innlagt vann
Balkong/Terrasse
Barnevennlig
Bilvei frem
Garasje/P-plass
Golfbane
Peis/Ildsted
Rolig
Utsikt
Bademulighet
Fiskemulighet
Innlagt strøm
Turterreng
Visning
Velkommen!
Husk å lese komplett salgsoppgave før visning. Bestill komplett, utskriftsvennlig salgsoppgave.
VisningspåmeldingOm boligen
Dette er en arkitektonisk perle som kombinerer norsk tradisjon og moderne luksus. Hytta er bygget i stav- og lafteteknikk med norsk tømmer og har moderne løsninger som vannbåren gulvvarme basert på miljøvennlig bergvarme og smartstyrte systemer for lys og varme. Eksklusive materialer som 30 cm brede eikeplanker og spesiallagde innredninger gir et luksuriøst preg. Kjøkkenet har steinbenkeplater, Miele-hvitevarer og Quooker-kran, perfekt for sosialt samvær. Stuen i 2. etasje har en peis med glass på tre sider, mens flere bad og spa-avdelingen tilbyr regndusj, vannfall, badekar og glassbadstue. Enten du søker ro eller vil samle venner og familie, gir denne hytta en perfekt kombinasjon av komfort og naturopplevelser.
Hytta er delvis møblert og klar til å flyttes rett inn!
Hytta er delvis møblert og klar til å flyttes rett inn!
NB: Knappen for å vise hele beskrivelsen har kun en visuell effekt.
NB: Knappen for å vise hele beskrivelsen har kun en visuell effekt.
Salgsoppgaven beskriver vesentlig og lovpålagt informasjon om eiendommen
Se komplett salgsoppgaveNærområdet
Sem & Johnsen
Boliger utenom det vanlige
Annonseinformasjon
| FINN-kode | 398931646 |
|---|---|
| Sist endret | 11. feb. 2026 10:13 |
| Referanse | 20-24-0810 |
Annonsene kan være mangelfulle i forhold til lovpålagt opplysningsplikt. Før bindende avtale inngås oppfordres interessenter til å innhente komplett informasjon fra meglerforetaket, selger eller utleier.










































