Bildegalleri

1 av 2 solgt! | Planlagt arkitekttegnet nøkkelferdig hytte på fantastisk utsiktstomt med ski-inn/ski-ut i Kvitfjell
- Omkostninger
- 67 500 kr
- Totalpris
- 9 017 500 kr
Nøkkelinfo
- Beliggenhet
- På fjellet
- Boligtype
- Hytte
- Eieform
- Eier (Selveier)
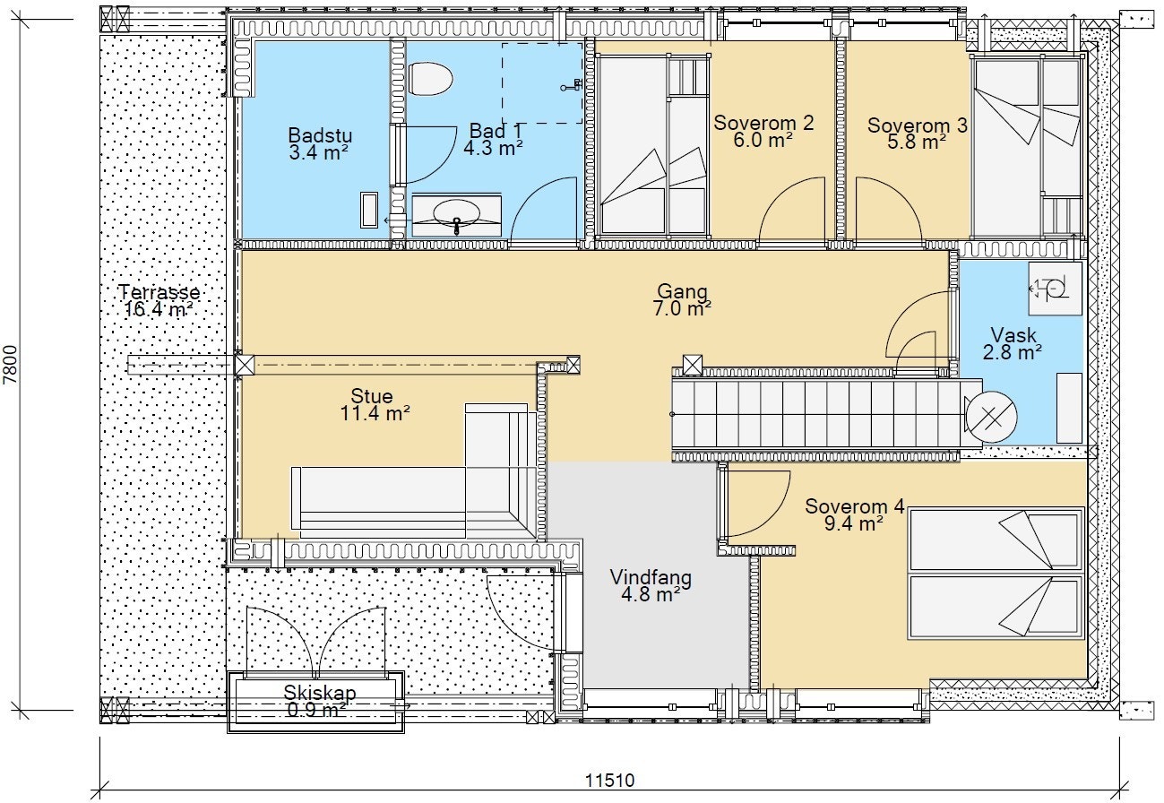
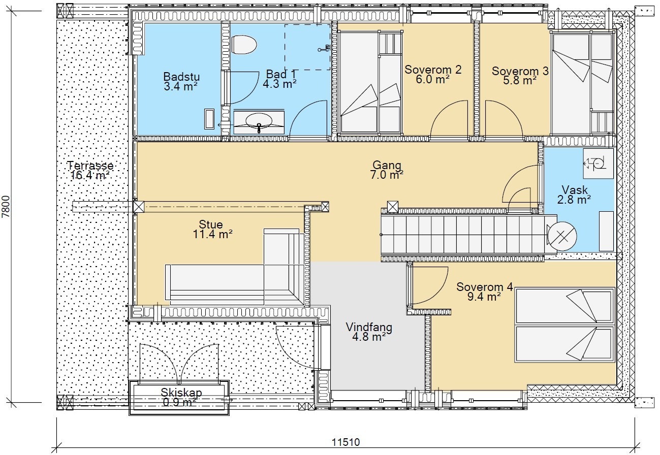
- Internt bruksareal
- 128 m² (BRA-i)
- Bruksareal
- 128 m²
- Tomt
- Eiet
- Byggeår
- 2025
- Soverom
- 4
- Rom
- 5
Fasiliteter
Om eiendommen
Beliggenhet
Et sentralt og flott område i Kvitfjell med fantastisk utsikt. Her får du en unik beliggenhet med ski-inn/ski-ut til både langrenn og alpint, samt en flott utsikt mot Kvitfjell Vest og alpinbakkene! Varden View er perfekt for deg som vil bo i naturskjønne, rolige omgivelser med enkel tilgang til restauranter og matbutikk.
Adkomst/Tomteforhold
Ta av fra E6 ved Fåvang og følg skilting mot Kvitfjell Vest. Vegen slynger seg oppover i dalsiden mot Kvitfjell Vest. Etter å ha passert Servicesenteret
(ligger på høyre side av vegen) tar man til venstre opp mot Varden View. Det er godt skiltet. Følg denne vegen i 2,2 km
Generelt
På et sentralt og flott område i Varden, Kvitfjell, kommer det to moderne arkitekttegnede hytter med høy standard på fantastiske utsiktstomter! Varden View Kvitfjell har en unik beliggenhet med ski-inn/ski-ut til både langrenn og alpint, og byr på en flott utsikt mot Kvitfjell Vest og alpinbakkene!
Det er utarbeidet et konsept av elementer som både passer fint i omgivelsene og i en hytte litt utenom det vanlige. Her vil du kunne ha mulighet til å kunne påvirke hyttens standard og innhold.
Garasje med stor bod i samme stil og uttrykk som hytte leveres som tilvalg i prosjektet.
Utvendig leveranse kort fortalt
- Sedum-/tretak
- Tett stående låvekledning 19mm mix bredder 4"/5"/6" jernvitrolbehandlet impregnert furu. Det monteres spiler utenpå kledning i dimensjon 36x73.
- Vinduer og dører leveres i dempet sort
- Takrenner i sort stål
- Stor balkong og terrasse
- Utelamper
- Frostfri utekran
- Innvendig bod
Standard innvendig leveranse
Det er i valg av panel vektlagt betydningen av hva som skaper hyttefølelsen, inn i det moderne interiørbildet og som samtidig bærer høy kvalitet. Det er valgt å kle både vegger og himling med samme panel. I interiørkonsept blir innvendig panel beiset i en lun farge som gir et dempet og sofistikert uttrykk.
Gulvene i hytten får et flott Bjelin gulv som står fint i stil med panelen som er valgt på vegger og i himlingen.
Vindfang blir flislagt og det gjøres for at det skal være enklere å holde den ren, samt beskytte mot fuktskader. Det er valgt store fliser på 60x60 cm.
Bad
Gulvene på badet blir levert med store, pene fliser. Disse er på 60x60 cm og gir et eksklusivt uttrykk. Dette er forøvrig også samme flis som er valgt i hall, som vil gi et fullført helhetsinntrykk av hytten.
Veggene blir kledd med store fliser på 60x60 cm. Himlingen på badene blir kledd med samme panel som de øvrige veggene i hytten. Her vil beisen følge interiørkonseptet som blir valgt. I badstuen får gulvene sokkelflis i samme utførelse som gulvene. Badet har i likhet med de øvrige rommene i hytten taklister i samme beisfarge som vegg- og takpanel. I badstuen blir øvrig listverk i ubehandlet osp.
Det skal være lunt og behagelig å være på badet. I likhet med resten av hytten er det valgt sorte detaljer på det meste av innredning.
Toalettet er vegghengt med soft close sete. Over baderomsinnredningen vil det bli montert speil med belysning.
Hytten har egen badstu! Etter en lang dag ute i vinterkulden er det ikke mye som slår varmen i badstuen. I badstuen blir vegger, himling og benker kledd med ubehandlet osp. Det samme blir listverket. Dør mellom bad og badstue vil få sotet glass.
Det er muligheter for alternativ planløsning med Relax-avdeling.
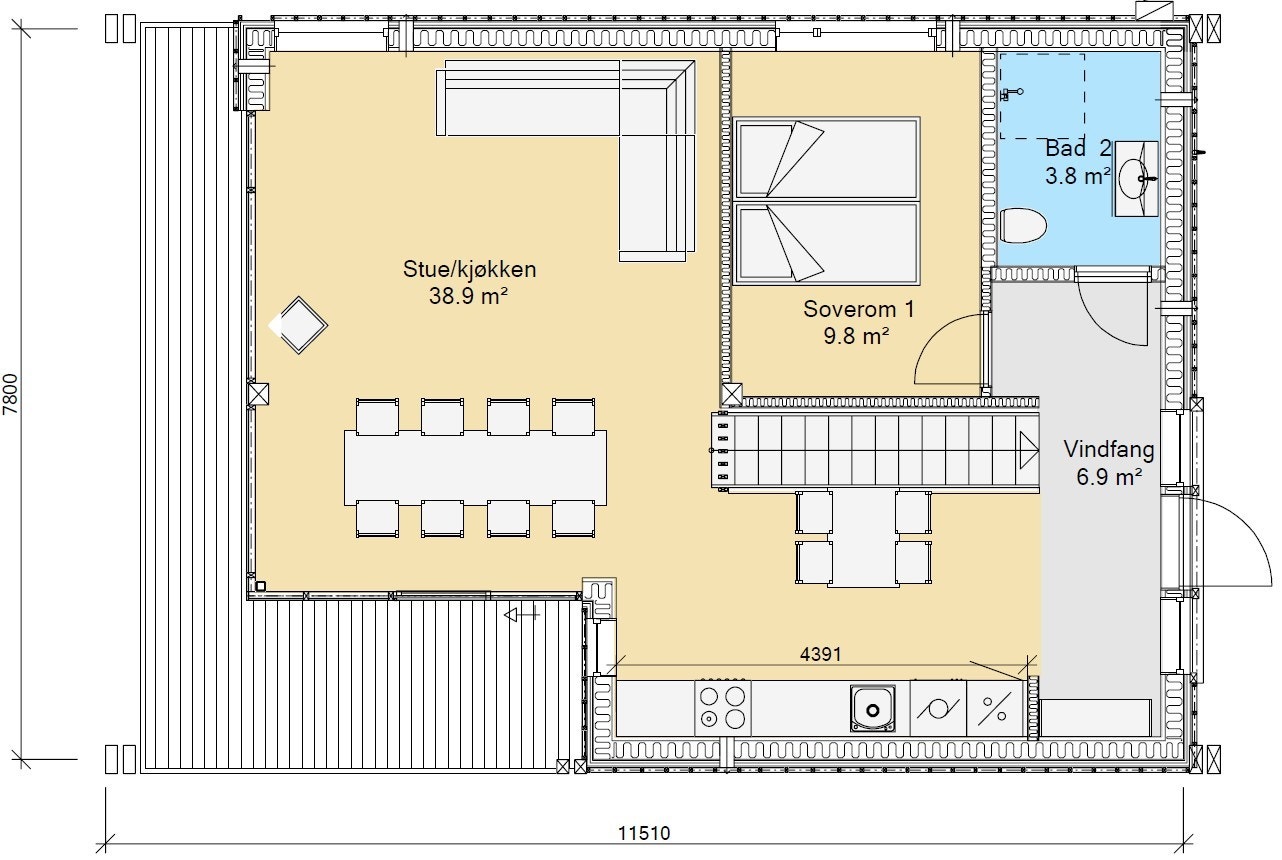
Kjøkken
Kjøkkenet leveres i god standard fra Aubo i et eksklusiv design og det er lagt stor vekt på å skreddersy gode løsninger som er tilpasset hyttens interiørkonsept. Kjøkkenet er i Sense-serien, og som vi mener er svært dekorativt i seg selv, og vi har valgt i fargekonsept Sense sort eller Sense warm grey.
Oppvarming
Nordpeis Origo DV m/sideglass og gulvplate i glass.
Varme i gulv stue/kjøkken, TV-stue, bad og hall. Panelovner.
Prisen er for ferdig oppsatt hytte inkl. tomt og grunnarbeid.
Tomteverdi og totalpris:
Varden 26 - SOLGT
Varden 28 (106/60) kr 2 700 000,- . Totalpris 8 950 000 + offentlige omkostninger og gebyrer.
Omkostninger og avgifter
2,5% dokumentavgift av tomteverdi kr. 67 500
Tinglysningsgebyr kr. 585
Tilskudd skiløyper (indeksreguleres) pr år kr. 850
Tilknytning vann kr 44 349
Tilknytning avløp kr 27 869
Tilknytningsavgift Fremre Svinslåvegen Veglag, kr 10.000,-
Fremre Svinslåvegen Veglag vil kreve inn tilknytningsavgift på kr 10.000 pr enhet. Kjøper forplikter seg til å betale tilknytningsavgiften, der denne vil bli KPI-justert fra 1.1.2025
Selger tar forbehold om endringer i omkostninger og avgifter. I tillegg tilkommer det årlig kommunale avgifter som hytteeier plikter å betale.
Prisene er beregnet med SSB sin sist kjente indeks og vil bli justert til enhver tids gjeldende indeks.
For totalpris, avgifter og div. kostnader - se www.tindehytter.no/hyttefelt/varden-view-kvitfjell
Det tas forbehold om endelig godkjenning fra kommunen
Salgsoppgaven beskriver vesentlig og lovpålagt informasjon om eiendommen
Se komplett salgsoppgaveNærområdet
Tindehytter AS
Annonsene kan være mangelfulle i forhold til lovpålagt opplysningsplikt. Før bindende avtale inngås oppfordres interessenter til å innhente komplett informasjon fra meglerforetaket, selger eller utleier.






















