Bildegalleri

Velkommen til Bjoaneset (Toadalsvegen 42)
Fritidseiendom med betydelig oppgradert hytte og nydelig utsiktsbeliggenhet. Tomt på ca. 2,7 da., anneks/uthus og naust
Prisantydning3 590 000 kr
- Omkostninger
- 108 840 kr
- Totalpris
- 3 698 840 kr
- Kommunale avg.
- 9 973 kr per år
Pris på lån: fra 15 090 kr/mnd
Eff.rente 5,88 %. 2 154 000 o/20 år. Kostnad: 1 467 600 kr. Totalt 3 621 600 kr.
LånekalkulatorNøkkelinfo
- Beliggenhet
- Ved sjøen
- Boligtype
- Hytte
- Eieform
- Eier (Selveier)
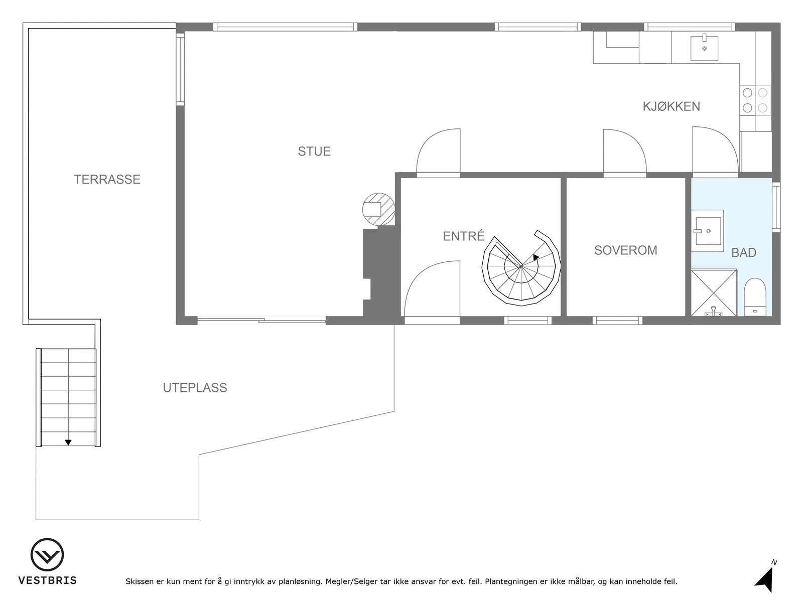
- Internt bruksareal
- 103 m² (BRA-i)
- Bruksareal
- 149 m²
- Eksternt bruksareal
- 46 m² (BRA-e)
- Tomteareal
- 2 756 m² (eiet)
- Byggeår
- 1979
- Soverom
- 4
- Rom
- 5
- Energimerking
- E - Gul
- Overtakelse
- Overtagelsesdato skal fastsettes før aksept av bud. Ved spesielle ønsker skal dette fremkomme som forbehold i evt. bud.
Fasiliteter
Aircondition
Balkong/Terrasse
Barnevennlig
Bilvei frem
Bredbåndstilknytning
Hage
Peis/Ildsted
Rolig
Utsikt
Bademulighet
Fiskemulighet
Innlagt strøm
Offentlig vann/kloakk
Strandlinje
Turterreng
Visning
Velkommen til visning! Husk å melde deg på visningen ved å trykke på knappen visningspåmelding under, eller ta kontakt med megler for å gjøre en avtale. Visninger uten påmeldte blir avlyst.
Husk å lese komplett salgsoppgave før visning. Bestill komplett, utskriftsvennlig salgsoppgave.
VisningspåmeldingOm boligen
Ved Bjoaneset helt nord på Utbjoa har vi for salg velholdt og betydelig påkostet eiendom som holder gjennomgående god standard. Eiendommen ligger flott til med nydelig utsikt til Sunnhordlands-bassenget. Her får en stor hytte med fire soverom og to pene, moderne baderom. Tidsriktig og flott kjøkkeninnredning fullspekket med hvitevarer integrert, flott støpt benkeplate. Uteområdene er pent opparbeidet og meget usjenerte. Tomten har en deilig størrelse på hele 2.7 da! Fullisolert anneks, innredet med stor stue og bod. Del av naust med god plass til båt og fiskeredskap. Eiendommen må oppleves for riktig inntrykk!
NB: Knappen for å vise hele beskrivelsen har kun en visuell effekt.
NB: Knappen for å vise hele beskrivelsen har kun en visuell effekt.
Salgsoppgaven beskriver vesentlig og lovpålagt informasjon om eiendommen
Se komplett salgsoppgaveNyttige lenker
Nærområdet
Eiendomsmegler Norge Haugesund
Det viktigste stedet i Norge er der du bor
Annonseinformasjon
| FINN-kode | 398783501 |
|---|---|
| Sist endret | 05. nov. 2025 09:44 |
| Referanse | 19250049 |
Annonsene kan være mangelfulle i forhold til lovpålagt opplysningsplikt. Før bindende avtale inngås oppfordres interessenter til å innhente komplett informasjon fra meglerforetaket, selger eller utleier.





































