Bildegalleri

Søre Fjellsnaret | Prosjektert eksklusiv nøkkelferdig hytte høyt i feltet med panoramautsikt. 4 soverom, 2 bad
- Omkostninger
- 48 500 kr
- Totalpris
- 10 528 500 kr
Nøkkelinfo
- Beliggenhet
- På fjellet
- Boligtype
- Hytte
- Eieform
- Eier (Selveier)
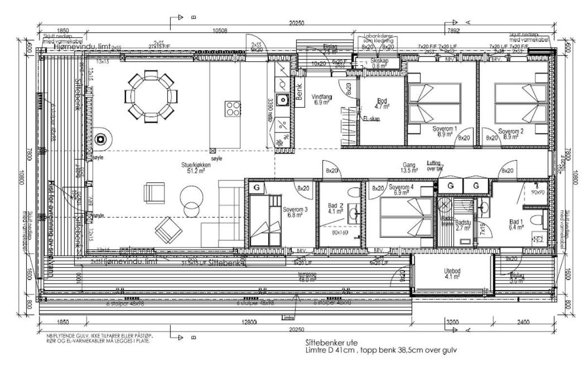
- Internt bruksareal
- 136 m² (BRA-i)
- Bruksareal
- 136 m²
- Balkong/Terrasse
- 52 m² (TBA)
- Tomt
- Eiet
- Byggeår
- 2025
- Soverom
- 4
- Rom
- 5
Fasiliteter
Visning
Om eiendommen
Beliggenhet
Fjellsnaret har en helt unik beliggenhet, på grensen til naturvernområder i bakkant og med Hardangervidda som nabo. Fra Fjellsnaret har man et fantastisk utgangspunkt for mange flotte turer på fjellet, enten korte dagsturer eller lengre og mer krevende turer på vidda.
Adkomst/Tomteforhold
Følg Fylkesvei 40 gjennom Uvdal til du får Fjellsnarets velkomstskilt på høyre hånd. Avstander: Oslo 200 km, Drammen 160 km, Tønsberg 200 km, Larvik 220 km, Kongsberg 120 km, Geilo 40 km.
Generelt
Tomtene er beliggende i beltet fra 1 000 - 1 075 m.o.h. på Uvdals solside. Tomtene har flott og uhindret utsikt, fantastiske solforhold og er skånsomt plassert i vakre omgivelser med allsidige muligheter for friluftsopplevelser året rundt. Helt øverst i Søre Fjellsnaret med naturen som nærmeste nabo,
formidabel utsikt og solrikt!
Tinde Bre er en eksklusiv og stilren hytte. Med store fellesareal og gjennomført planløsning, store vindusflater og takoverbygget terrasse, er dette hytten for de som er ute etter det lille ekstra.
Generell utførelse
• Stående faspanel m/stor v-fuge, ferdig grunnet, 20 cm isolasjon i yttervegg.
• Torv på tak.
• Takstige
• Vinduer iht. tegning. Nordan 3-lags glass, valgfri farge. Vinduer med gjennomgående sprosser.
• Takrenner i sort stål.
• Tinde ytterdør m/vindu, malt i valgfri farge.
• Eventuell sportsbod / utebod har Tinde boddør u/vindu, malt i valgfri farge.
• Terrasse leveres der det er vist på tegninger uten rekkverk.
• Isolasjon 25 cm i tak, 20 cm yttervegg og 10 cm i innervegger.
• Flytende gulv med 15 mm eikeparkett 1-stavs, type Kährs.
• Innvendige furupanel fra Moelven: 13 mm Sprekkpanel på vegger og himling, beiset.
• Furu listverk, beiset.
• Sindre 3-speils innerdører
• Benk i badstue leveres i gran, ubehandlet.
• Kjøkken fra Aubo type Unik Eik struktur med laminat benkeplate og ventilator i koketopp. Inkludert hvitevarer.
Rørlegger/innvendig sanitær
Rørleggerarbeid med utstyr iht. standard rørleggeroppsett. I utstyrsoversikt kan nevnes:
• Bunnledninger (rør som ligger i betongplate innenfor ringmur fram til toalett, sluker osv.).
• Rette slagdører i dusjnisje evnt. dusjnisjedør (iht. tegning) med dusjgarnityr.
• Vegghengt toalett med innebygd sisterne.
• Unidrainsluk på bad.
• Baderomsinnredning m/skuffer, porselensvask og speil.
• Innredning med vask og speilskap leveres det det er separat WC rom.
• Varmtvannsbereder 200 liter.
• 1-greps blandebatterier på kjøkken, bad og evnt. andre våtrom.
• Opplegg for tilkobling av kjøkkenbenk m/ 1-greps benkebatteri med høy tut, samt opplegg for tilkobling av oppvaskmaskin.
• Lekkasjesikring/vannstoppeventil.
Murer, flis, pipe og ildsted
• Peisovn med sideglass m/glassplate på gulv montert på sort stålpipe.
• Flislagt gulv i vindfang med 30×60cm flis.
• Flislagt gulv på bad med 30×60 fliser. Ved eget WC-rom og badstue leveres det også 30×60 cm flis.
• Flislagte vegger med lik flis som på gulv.
• Har hytta eget vaskerom, innvendig bod eller sportsbod leveres det med 30×30 cm flis.
Elektroinstallasjoner og utstyr
Elektrikerarbeid med utstyr iht. standard elektrikeroppsett. I utstyrsoversikt kan nevnes:
• Inntaksskap og kabel mellom inntak og sikringsskap.
• Sikringsskap m/overbelastningsvern, jordfeilautomater og overspenningsvern.
• EL-punkter (iht. NEK 400).
• Varmekabler med termostat og føler i vindfang og våtrom.
• Strømforsyning til seriekoblet røkvarslere m/backup batteri.
• Astrour-styrte utelamper.
• Sort el.materiell med lun varme i stue, kjøkken og gang.
• Downlights leveres i vindfang, stue, soverom og bad.
• Panelovner, stikkontakter, komfyrvakt og badstuovn leveres i tråd med tegning.
Oppgradering av leveransen
• Taktyper som tilpasses ønsker og/evt reguleringsplan.
• Beiset sprekkpanel på vegger og himling, listverk, utforinger og innvendig trapp/stige i en av std. fargene til trappeleverandør.
• Innerdører, vinduer, ytterdør og evnt. boddør malt i valgfri NCSfarge.
• Ellers samme leveranse som standard.
Prisen er for ferdig oppsatt hytte inkl. tomt og grunnarbeid. Tomteverdi kr 3 500 000,- , grunnarbeid estimert pris 700 000,-.
For totalpris, div. avgifter og kostnader, se; Fjellsnaret Hyttegrend | Tinde Hytter
Prisene er beregnet med SSB sin sist kjente indeks, og vil bli justert til enhver tids gjeldene indeks.
Det tas forbehold om endelig godkjenning fra kommunen.
Salgsoppgaven beskriver vesentlig og lovpålagt informasjon om eiendommen
Se komplett salgsoppgaveNærområdet
Tindehytter AS
Annonsene kan være mangelfulle i forhold til lovpålagt opplysningsplikt. Før bindende avtale inngås oppfordres interessenter til å innhente komplett informasjon fra meglerforetaket, selger eller utleier.





















