Bildegalleri

Fredrik Christoffersen presenterer: Gvålsheiavegen 55 og 57!
Tuddal - Gvålsheia
Lekker eiendom med 2 hytter! Perfekt for storfamilien -mulighet for utleie - Solrikt og utsikt - Skiløyper KUN 50m unna!
Prisantydning3 850 000 kr
- Omkostninger
- 137 140 kr
- Totalpris
- 3 987 140 kr
- Kommunale avg.
- 38 393 kr per år
Nøkkelinfo
- Beliggenhet
- På fjellet
- Boligtype
- Hytte
- Eieform
- Eier (Selveier)
- Internt bruksareal
- 136 m² (BRA-i)
- Bruksareal
- 143 m²
- Eksternt bruksareal
- 7 m² (BRA-e)
- Balkong/Terrasse
- 43 m² (TBA)
- Tomteareal
- 810 m² (eiet)
- Festeavgift
- 5 977 kr
- Byggeår
- 1993
- Soverom
- 5
- Energimerking
- F - Rød
Fasiliteter
Innlagt vann
Balkong/Terrasse
Barnevennlig
Bilvei frem
Garasje/P-plass
Peis/Ildsted
Rolig
Utsikt
Bademulighet
Fiskemulighet
Innlagt strøm
Offentlig vann/kloakk
Turterreng
Visning
For å delta på visning, ber vi om at du melder deg på. Da sikrer vi at du får nødvendig informasjon og at det er satt av tilstrekkelig med tid. Kontakt megler dersom annet tidspunkt ønskes. Husk å lese salgsoppgaven før visningen, så du stiller forberedt. NB! Visning utgår dersom det ikke er noen påmeldte innen kl 12:00 dagen før visning!
Ønsker du kun å bli holdt orientert, kan du fra eiendommens hjemmeside få varsel om solgtpris, eller kontakte megler.
VisningspåmeldingOm boligen
Mulighet for overtakelse før vinterferien!
En fantastisk eiendom bestående av 2 hytter! Dette er perfekt for deg som har stor familie, ønsker generasjonseiendom eller vil drive med utleie på deler eller hele eiendommen. Den ligger meget godt plassert på Gvålsheia hyttefelt med sol og utsikt, umiddelbar nærhet til godt preparerte skiløyper og turmuligheter hele året. Bilvei helt frem. Kort vei ned til Toskjærvatnet for bademuligheter på sommerstid. Hytta har gode uteområder på terrasse og et flott natursteinsbelagt utekjøkken. Fra jacuzzien på terrassen kan man nyte utsikten til Gaustaknea! Hovedhytta står på eiertomt og hytte 2 på festetomt.
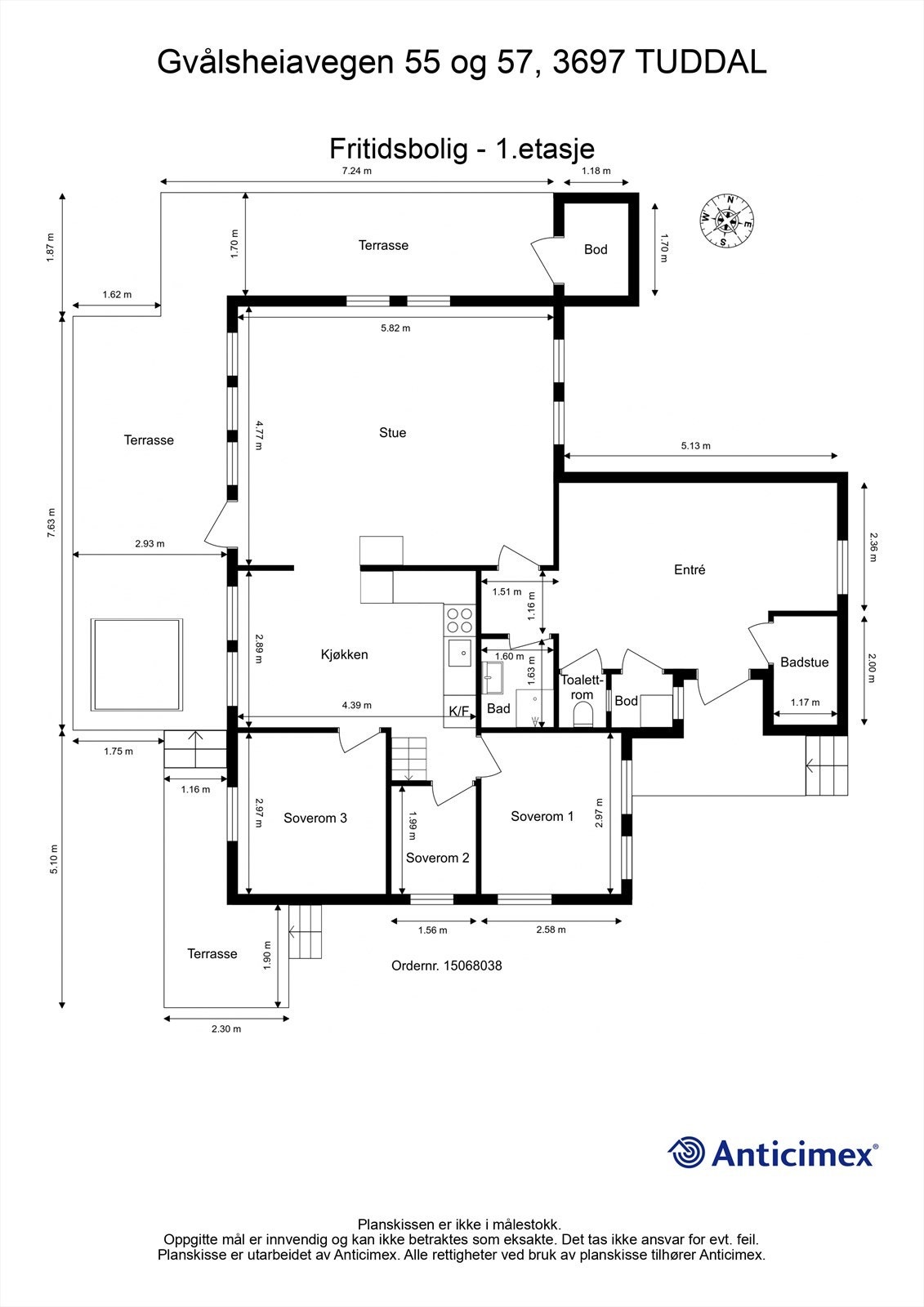
Hytte 1: Entré, bad, badstue, toalett, vaskerom, stue, kjøkken, 3 sov. hems og bod
Hytte 2: Entré, bad, toalettrom, stue med kjøkken, 2 sov og bod
En fantastisk eiendom bestående av 2 hytter! Dette er perfekt for deg som har stor familie, ønsker generasjonseiendom eller vil drive med utleie på deler eller hele eiendommen. Den ligger meget godt plassert på Gvålsheia hyttefelt med sol og utsikt, umiddelbar nærhet til godt preparerte skiløyper og turmuligheter hele året. Bilvei helt frem. Kort vei ned til Toskjærvatnet for bademuligheter på sommerstid. Hytta har gode uteområder på terrasse og et flott natursteinsbelagt utekjøkken. Fra jacuzzien på terrassen kan man nyte utsikten til Gaustaknea! Hovedhytta står på eiertomt og hytte 2 på festetomt.
Hytte 1: Entré, bad, badstue, toalett, vaskerom, stue, kjøkken, 3 sov. hems og bod
Hytte 2: Entré, bad, toalettrom, stue med kjøkken, 2 sov og bod
NB: Knappen for å vise hele beskrivelsen har kun en visuell effekt.
NB: Knappen for å vise hele beskrivelsen har kun en visuell effekt.
Salgsoppgaven beskriver vesentlig og lovpålagt informasjon om eiendommen
Se komplett salgsoppgaveNyttige lenker
Nærområdet
Krogsveen Skien
Verdien av en god megler.
Annonseinformasjon
| FINN-kode | 398586642 |
|---|---|
| Sist endret | 27. jan. 2026 08:25 |
| Referanse | KR26.259 |
Annonsene kan være mangelfulle i forhold til lovpålagt opplysningsplikt. Før bindende avtale inngås oppfordres interessenter til å innhente komplett informasjon fra meglerforetaket, selger eller utleier.





















































