Bildegalleri

Velkommen til Trysil og Fageråsen 352A!
FAGERÅSEN
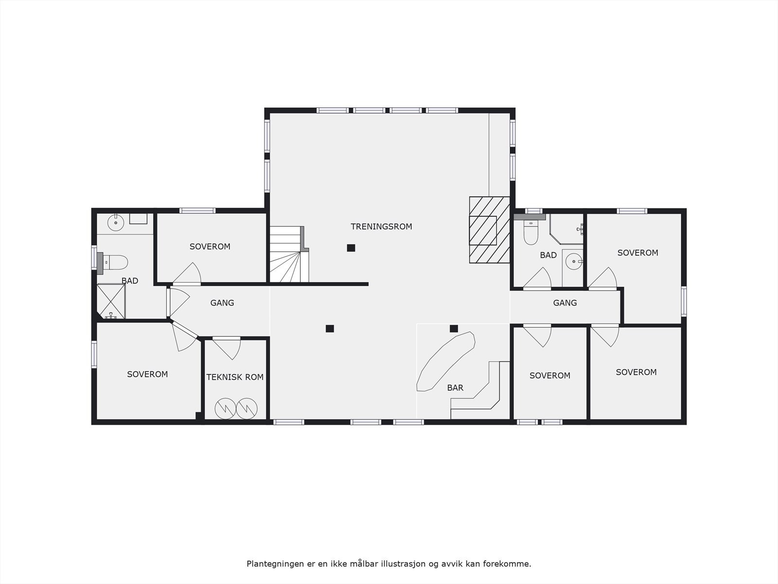
Stor, unik og flott hytte over 2 hele plan + hems. Herlig atmosfære. 6 sov. 3 bad + wc. Badstue. Vaskerom. Møblert.
Prisantydning10 700 000 kr
- Omkostninger
- 268 890 kr
- Totalpris
- 10 968 890 kr
- Kommunale avg.
- 23 502 kr per år
Nøkkelinfo
- Beliggenhet
- På fjellet
- Boligtype
- Hytte
- Eieform
- Eier (Selveier)
- Internt bruksareal
- 266 m² (BRA-i)
- Bruksareal
- 281 m²
- Eksternt bruksareal
- 15 m² (BRA-e)
- Tomteareal
- 694 m² (eiet)
- Byggeår
- 2002
- Soverom
- 6
- Rom
- 8
- Energimerking
- D - Oransje
Fasiliteter
Innlagt vann
Alpinanlegg
Balkong/Terrasse
Barnevennlig
Bilvei frem
Garasje/P-plass
Peis/Ildsted
Rolig
Innlagt strøm
Turterreng
Lademulighet
Visning
Ved annonsert visning er det viktig at du melder deg på visningen ved å bruke visningspåmeldingsknappen eller kontakter megler. Annonserte visninger hvor det ikke er noen påmeldte innen kl. 16.00 dagen før visningsdagen vil ikke bli avholdt.
For visninger utover dette, ta direkte kontakt med megler.
Husk å lese komplett salgsoppgave før visning. Bestill komplett, utskriftsvennlig salgsoppgave.
VisningspåmeldingOm boligen
Velkommen til Trysil og Fageråsen 352A!
En flott og stor familiehytte fra 2002 med blant annet stue, spisestue, kjøkken, 3 bad, badstue, toalettrom, vaskerom, 6 soverom, kjellerstue med bar og lounge samt hems med peis. Hytta fremstår som godt ivaretatt og vedlikeholdt, og med gode løsninger og materialvalg. Hele 1.etasje har skifergulv med varme under.
Hytta ligger fint plassert på et tun ca. 760 moh, i et godt og veletablert hyttefelt. Her er det enkel adkomst til langrennsløyper og til ski inn/ut trasee til alpinbakken. Gangavstand til Park Inn Trysil Mountain Resort, med skiutleie, bakeri, basseng, velværeavdeling, restaurant og afterski.
En flott og stor familiehytte fra 2002 med blant annet stue, spisestue, kjøkken, 3 bad, badstue, toalettrom, vaskerom, 6 soverom, kjellerstue med bar og lounge samt hems med peis. Hytta fremstår som godt ivaretatt og vedlikeholdt, og med gode løsninger og materialvalg. Hele 1.etasje har skifergulv med varme under.
Hytta ligger fint plassert på et tun ca. 760 moh, i et godt og veletablert hyttefelt. Her er det enkel adkomst til langrennsløyper og til ski inn/ut trasee til alpinbakken. Gangavstand til Park Inn Trysil Mountain Resort, med skiutleie, bakeri, basseng, velværeavdeling, restaurant og afterski.
NB: Knappen for å vise hele beskrivelsen har kun en visuell effekt.
NB: Knappen for å vise hele beskrivelsen har kun en visuell effekt.
Salgsoppgaven beskriver vesentlig og lovpålagt informasjon om eiendommen
Se komplett salgsoppgaveNærområdet
Aktiv Innlandet
Annonseinformasjon
| FINN-kode | 397855119 |
|---|---|
| Sist endret | 18. feb. 2026 10:11 |
| Referanse | 1211240125 |
Annonsene kan være mangelfulle i forhold til lovpålagt opplysningsplikt. Før bindende avtale inngås oppfordres interessenter til å innhente komplett informasjon fra meglerforetaket, selger eller utleier.




















































