Bildegalleri

Hafjell. Prosjektert eksklusiv BUEN hytte - nøkkelferdig inklusiv tomt
Nøkkelinfo
- Beliggenhet
- På fjellet
- Boligtype
- Hytte
- Eieform
- Eier (Selveier)
- P-plasser
- 2
- Bruksareal
- 150 m²
- Tomteareal
- 1 100 m² (eiet)
- Byggeår
- 2025
- Soverom
- 4
- Meter over havet
- 700
Fasiliteter
Visning
Ta kontakt for å avtale visning.Om eiendommen
Beliggenhet
Tomta ligger på sørsiden i Hafjell og perfekt plassert med ski-in ski-out til Hafjell alpinanlegg. Anlegget – som er et av de største og mest allsidige skianleggene i Norge - består av 50 km med fantastiske nedfarter og hele 18 skiheiser som tar deg akkurat dit du vil.
Det er også sammenhengende tilgang til hundrevis av kilometer med topp preparerte langrennsløyper.
På et sted som Hafjell er du sikret utmerkede skiforhold hele vinteren.
Generelt
Hytta som er prosjektert er vår populære og eksklusive modell Kløvfjell. Den tilpasses kundens ønsker i stor grad, finnes knapt to like utgaver.
I annonsen her er det lagt inn et eksempel.
Hytta leveres nøkkelferdig inkl. ferdig opparbeidet tomt, støpt plate, torv på taket, peis ovn, kjøkken, hvitevarer, baderomsinnredning +++.
Gode kvaliteter gjennomgående. Tomt til 3,5 MNOK er innkalkulert i pris.
Har du allerede tomt? Ta gjerne kontakt for tilbud på denne modellen på din tomt, eller en av våre øvrige modeller. Se vår hjemmeside.
Adkomst/Tomteforhold
Tomta ligger på Bjørgesætra, adkomst fra E6, via Hundersætervegen, (Hafjelltoppen) og Storsteinvegen. Tomta har betegnelsen H5C-1 i regulert område for Bjørgesætra, ligger sør-vest vendt med direkte tilgang til nedfartsløype til alpinanlegget. Løypa kommer også tilbake fra toppen på samme sted og er samtidig løype ut for langrenn.
Innhold
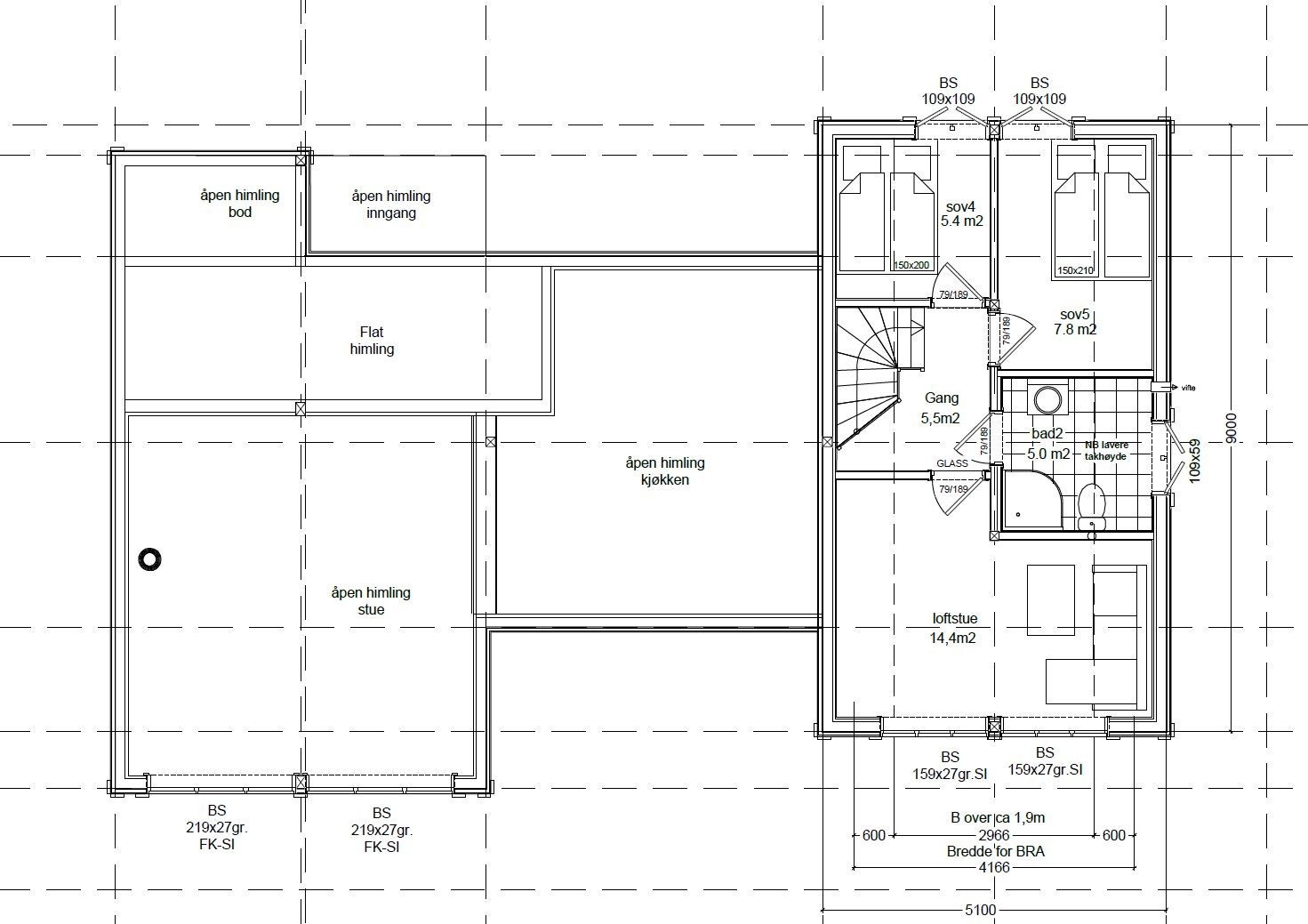
Buen Kløvfjell har håndverksmessige kvaliteter og utforming som man blir glad for å eie og glad for å iakta. Her er det nok av plass til storfamilien eller sosiale anledninger hvor venner blir med. Det er flere soner og oppholdsrom. Se foreslått planløsning med to bad og oppstue.
Pris komplett nøkkelferdig inklusiv grunnarbeid, støpt plate og tomt. Byggestart vår 2025. Visning av tomt og lignende hyttemodell etter avtale. Kjøkken og stue på over 50 m2, 4 soverom inklusive 2 på hemsen, og egen hemsestue som fungerer perfekt som egen boltre plass for gjester/barn/barnebarn osv. Det er lagt vekt på åpne flater og godt med utsyn. Vi guider deg gjerne gjennom alle detaljer i prosjektet. Ta kontakt.
LEVERANSE;
* Aubo kjøkken ihht tegning inklusiv hvitevarer
* Peis/peisovn (design og miljøkvaliteter)
* VVS og utstyr, baderomsinnredninger og utstyr. God standard
* Elektro ihht NEK 400 standard + downlights + opplegg utelys, varmepumpe m.m
* Kvalitetsfliser i 30x60 utførelse og 1 stavs parkett
* Byggesøknad inkludert
* Bygge og prosjektleder inkludert
* Rigg og drift inkludert
* Komplett nøkkelleveranse
Standard
Alle Buen hytter blir produsert i henhold til TEK17 og er gjenstand for stadig utvikling hvor vi utnytter det beste når det gjelder materialvalg, konstruksjonsdetaljer og design, for å skape en hytte som tåler vårt tøffe klima.
Konstruksjonsdelen av hyttene produseres på vår ISO 9001-godkjente fabrikk. Det kjente Buen-designet, spesialtilpasninger, tekniske tjenester og kontroll, leveres fra egen produksjon av Buen Hytter på Gvarv i Telemark.
Alle hyttemodellene er produsert i henhold til samme strenge krav og gjør bruk av velprøvde tekniske løsninger. På alle modeller benytter vi markedets kraftigste dimensjonering.
Dette har vi gjort for å gjøre hyttekjøpet trygt for deg som kunde.
For å se nærmere på standarden som er lagt inn i hytta kan dere ta kontakt med selger for nærmere avtale om visning.
Ta kontakt med megler for komplett informasjon
Nærområdet
BUEN HYTTER AS
Annonsene kan være mangelfulle i forhold til lovpålagt opplysningsplikt. Før bindende avtale inngås oppfordres interessenter til å innhente komplett informasjon fra meglerforetaket, selger eller utleier.

























