Bildegalleri

Velkommen til Lienvegen 23, leil 5303 (Foto Pål Harald Uthus)
Få fjellfølelsen samtidig som du er i nærheten av alt - Gode utleiemuligheter
Prisantydning4 950 000 kr
- Omkostninger
- 125 100 kr
- Totalpris
- 5 075 100 kr
- Kommunale avg.
- 4 136 kr per år
- Felleskost/mnd.
- 1 420 kr
- Eiendomsskatt
- 2 049 kr per år
Nøkkelinfo
- Beliggenhet
- På fjellet
- Boligtype
- Leilighet
- Eieform
- Eier (Selveier)
- Internt bruksareal
- 65 m² (BRA-i)
- Bruksareal
- 71 m²
- Eksternt bruksareal
- 6 m² (BRA-e)
- Balkong/Terrasse
- 10 m² (TBA)
- Tomteareal
- 14 516 m² (eiet)
- Byggeår
- 2023
- Soverom
- 2
- Rom
- 3
- Sengeplasser
- 4
- Energimerking
- B - Rød
Fasiliteter
Balkong/Terrasse
Garasje/P-plass
Offentlig vann/kloakk
Turterreng
Utsikt
Bilvei frem
Innlagt strøm
Innlagt vann
Balansert ventilasjon
Visning
Ta kontakt for å avtale visning.Husk å lese komplett salgsoppgave før visning. Bestill komplett, utskriftsvennlig salgsoppgave.
VisningspåmeldingOm boligen
Highland Lodge Fjellandsby har en unik beliggenhet med nærhet til alt du trenger for en deilig og avslappende, eller aktiv fritid. Her kan du velge blandt et stort utvalg av aktiviteter, restauranter og opplevelser. En leilighet her vil ta fritiden din til nye høyder uten vedlikehold, snømåking og bekymringer. Her skal man bare NYTE livet. Som eier av leilighet er du med i eksklusiv medlemsklubben Owners Club - se www.ownersclubgeilo.no.
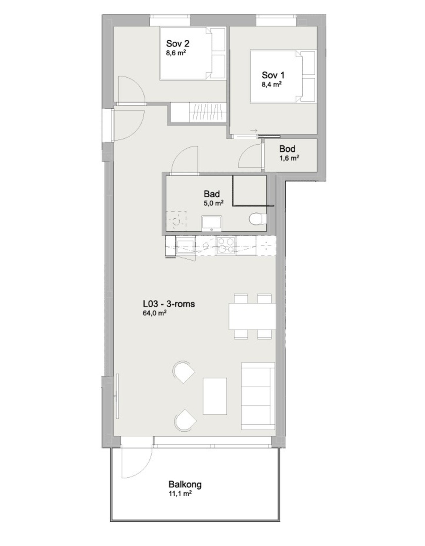
Leiligheten inneholder stue med åpent kjøkken fra Drømmekjøkken, 2 soverom, bad/wc, entré/gang og bod. Stor flislagt terrasse/balkong.
1 p-plass med elbillader, og bod i felles garasjeanlegg.
Det er gulvvarme i alle rom med individuell temperatursetting via Internett, utenom baderom som har el. gulvvarme med termostat. Balansert ventilasjon for alle rom.
Leiligheten inneholder stue med åpent kjøkken fra Drømmekjøkken, 2 soverom, bad/wc, entré/gang og bod. Stor flislagt terrasse/balkong.
1 p-plass med elbillader, og bod i felles garasjeanlegg.
Det er gulvvarme i alle rom med individuell temperatursetting via Internett, utenom baderom som har el. gulvvarme med termostat. Balansert ventilasjon for alle rom.
NB: Knappen for å vise hele beskrivelsen har kun en visuell effekt.
NB: Knappen for å vise hele beskrivelsen har kun en visuell effekt.
Salgsoppgaven beskriver vesentlig og lovpålagt informasjon om eiendommen
Se komplett salgsoppgaveNyttige lenker
Nærområdet
EIE Fjellmegleren Geilo
Vi loser deg trygt gjennom hele boligsalget
Annonseinformasjon
| FINN-kode | 397639304 |
|---|---|
| Sist endret | 13. jan. 2026 10:24 |
| Referanse | 47250034 |
Annonsene kan være mangelfulle i forhold til lovpålagt opplysningsplikt. Før bindende avtale inngås oppfordres interessenter til å innhente komplett informasjon fra meglerforetaket, selger eller utleier.



















