Bildegalleri

Planlagt nøkkelferdig hytte på solrik sør-vest vendt tomt "midt i smørøyet" på Skeikampen! | Varden 121
Nøkkelinfo
- Beliggenhet
- På fjellet
- Boligtype
- Hytte
- Eieform
- Eier (Selveier)
- Internt bruksareal
- 109 m² (BRA-i)
- Bruksareal
- 109 m²
- Balkong/Terrasse
- 13 m² (TBA)
- Tomteareal
- 968 m² (eiet)
- Soverom
- 4
- Rom
- 5
Fasiliteter
Visning
Om eiendommen
Beliggenhet
Snippen ligger vestvendt til på solsiden i et tiltalende hytteområde med attraktiv og meget sentral beliggenhet. Fra hytta har du gangavstand til alt området har å by på, blant annet skiløyper, golfbane, alpinanlegg, butikk, kafèer/restauranter mm. Tomtene har fin solgang og utsikt til både Skeikampen og over til Hafjell. Dette er virkelig hyttetomter for deg som ønsker å bo "midt i smørøyet"!
Adkomst/Tomteforhold
Fra E6, ta av enten rett nord for Lillehammer mot Gausdal og følg skilting mot Svingvoll og Skei, eller ta av ved Tretten og kjør over Musdalen til Svingvoll. Følg deretter Skeisveien. Ta til høyre på Segalstadsetervegen og følg denne til du tar til venstre på Snippen. Tomtene ligger på venstre side etter ca. 100m
Generelt
På disse 2 tomtene prosjekterer vi modellen Glittertind og Varden 121. Begge forslag er godt tilpasset tomtene.
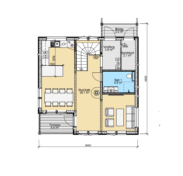
Varden 121 har inngang i hovedplan. Hytta har en god planløsning hvor du finner fire soverom, bad og badstue i underetasjen. Hovedplanet har romslig stue, kjøkken og bad, samt utgang til veranda.
Leveransebeskrivelse
Generell utførelse
- Stående låvepanel mix bredder (ubehandlet), 20 cm isolasjon i yttervegg.
- Valdres takshingel
- Takstige og snøfangere der det er krav.
- Vinduer iht. tegning. 2-lag energiglass, standard farge hvit inne/ute hvit NCS S 0502Y. Vinduer med gjennomgående sprosser.
- Takrenner i sort stål.
- Tinde ytterdør m/vindu, malt hvit.
- Eventuell sportsbod / utebod har Tinde boddør u/vindu, malt hvit.
- Terrasse leveres der det er vist på tegninger uten rekkverk.
- Isolasjon 25 cm i tak, 20 cm yttervegg og 10 cm i innervegger.
- Flytende gulv med 13 mm eikeparkett 3-stavs, type Kährs.
- Innvendige furupanel fra Moelven: 13 mm Sprekkpanel på vegger og himling, ubehandlet.
- Glatt standard listverk, ubehandlet.
- Furu 3-speils innerdører, ubehandlet.
- For hytter som leveres med hems/loft er det inkludert trapp i ubehandlet utførelse.
- For hytter med badstue leveres benk i gran ubehandlet.
- Kjøkken fra Aubo av typen Unik i fargen Sheer Grey (NCS S 3502-Y20R) med laminat benkeplate og slimline kjøkkenventilator (hvitevarer følger ikke med).
Rørlegger/innvendig sanitær
Rørleggerarbeid med utstyr iht. standard rørleggeroppsett.
- Bunnledninger (rør som ligger i betongplate innenfor ringmur fram til toalett, sluker osv.).
- Rette slagdører i dusjnisje evnt. dusjnisjedør (iht. tegning) med dusjgarnityr.
- Vegghengt toalett med innebygd sisterne.
- Unidrainsluk på bad.
- Baderomsinnredning m/skuffer, porselensvask og speil.
- Innredning med vask og speilskap leveres det det er separat WC rom.
- Varmtvannsbereder 200 liter.
- 1-greps blandebatterier på kjøkken, bad og evnt. andre våtrom.
- Opplegg for tilkobling av kjøkkenbenk m/ 1-greps benkebatteri med høy tut, samt opplegg for tilkobling av oppvaskmaskin.
- Lekkasjesikring/vannstoppeventil.
Murer, flis, pipe og ildsted
- Peisovn med sideglass m/glassplate på gulv montert på sort stålpipe.
- Flislagt gulv i vindfang med 30×60cm flis.
- Flislagt gulv på bad med 30×60 fliser. Ved eget WC-rom og badstue leveres det også 30×60 cm flis.
- Flislagte vegger med lik flis som på gulv.
- Har hytta eget vaskerom, innvendig bod eller sportsbod leveres det med 30×30 cm flis.
Elektroinstallasjoner og utstyr
Elektrikerarbeid med utstyr iht. standard elektrikeroppsett.
- Inntaksskap og kabel mellom inntak og sikringsskap.
- Sikringsskap m/overbelastningsvern, jordfeilautomater og overspenningsvern.
- EL-punkter (iht. NEK 400).
- Varmekabler med termostat og føler i vindfang og våtrom.
- Strømforsyning til seriekoblet røkvarslere m/backup batteri.
- Astrour-styrte utelamper.
- Downlights leveres i vindfang og bad. Om hytta har WC og gang i tillegg leveres det også downlights her.
- Taklamper leveres i soverom. For de hyttene som har vaskerom og bod, leveres det taklamper her.
- Panelovner, stikkontakter, komfyrvakt og badstuovn leveres i tråd med tegning.
Prisen er for ferdig oppsatt hytte inkl. tomt og grunnarbeid. Tomteverdi kr 1 780 000 ,- Verdi grunnarbeid estimert kr 700 000,-
Det tas forbehold om endelig godkjenning fra kommunen.
Prisene er beregnet med SSB sin siste kjente indeks og vil bli justert til enhver tids gjeldende indeks.
Diverse avgifter og kostnader - se Snippen Skeikampen | Tinde Hytter
Salgsoppgaven beskriver vesentlig og lovpålagt informasjon om eiendommen
Se komplett salgsoppgaveNærområdet
Tindehytter AS
Annonsene kan være mangelfulle i forhold til lovpålagt opplysningsplikt. Før bindende avtale inngås oppfordres interessenter til å innhente komplett informasjon fra meglerforetaket, selger eller utleier.











