Bildegalleri

Myrkdalen Fjellandsby, Ny Hytte i Mørkveslii, ski inn/ski ut
- Omkostninger
- 55 000 kr
- Totalpris
- 7 465 000 kr
Nøkkelinfo
- Beliggenhet
- På fjellet
- Boligtype
- Hytte
- Eieform
- Eier (Selveier)
- P-plasser
- 2
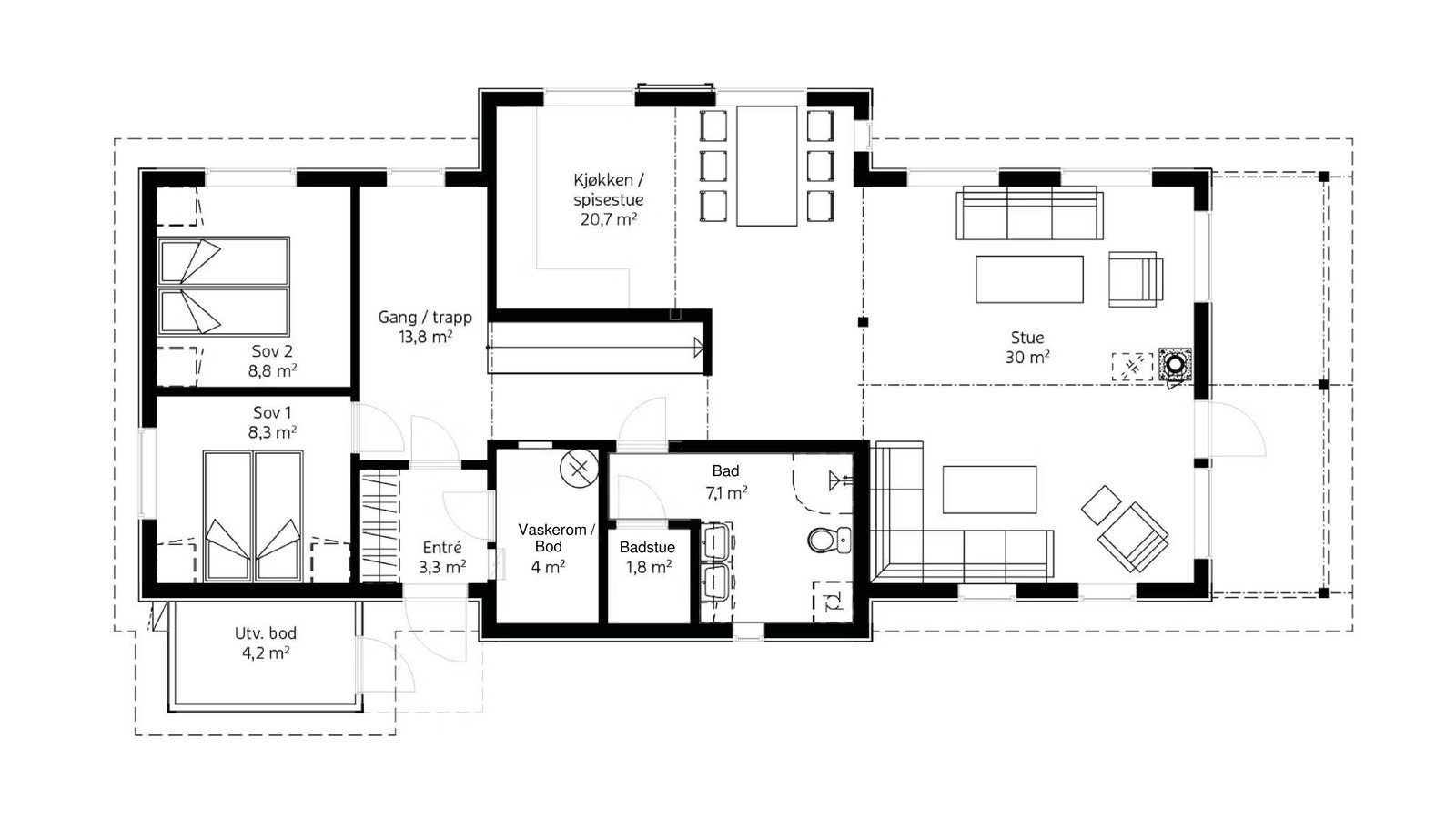
- Bruksareal
- 150 m²
- Balkong/Terrasse
- 15 m² (TBA)
- Tomteareal
- 973 m²
- Byggeår
- 2025
- Soverom
- 4
Fasiliteter
Visning
Ta kontakt for å avtale visning.Om eiendommen
Beliggenhet
Geitasteinane er det nyeste hyttefeltet i Myrkdalen Fjellandsby, og har de garantert fineste tomtene. Sol hele året og solrikt fra morgen til kveld.
Fantastisk flott utsikt over Myrkdalen og fjellområdene omkring.
Generelt
Ski inn / ski ut. Her kan du skri på ski ned til ny alpinheis som skal bygges i 2025, og skri til hytten fra alpinbakken.
Alpinbakker og Parker er varierte med 23 løyper og 8 heiser.
Langrennsløyper oppover i fjellet og 5 km Lysløype.
Veldig mange fine turområder og fjelltopper.
Adkomst/Tomteforhold
Avstand frå Bergen 2t, Nærøyfjorden 30min, Klatreparken 20min, Voss 30min.
Egen innkjørsel og parkering på egen tomt, det kan bygges carport.
Innhold
Prosjektert nøkkelferdig hytte inkludert selveiet tomt med bl.a. strøm, fiberkabel, vann og avløp.
Byggeår 2025, ferdig til Jul 2025.
Gjennomgående høg standard med bl.a. parkettgolv, veggpanel, takpanel, fliser på bad, Sigdalkjøkken, vedovn m.m.
Tegninger og materialer vert og tilpassa etter ønsker fra kunde.
Standard
Ta kontakt via Finn, eller Frode Nummedal Tlf 92 23 80 56 for mer informasjon og visning.
Nummedal Bygg og Anlegg
Vasstrondvegen 387
5713 Vossestrand
Tlf 92 23 80 56
Ta kontakt med megler for komplett informasjon
Nærområdet
Nummedal Bygg og Anlegg
Frode Nummedal
Annonseinformasjon
| FINN-kode | 397474264 |
|---|---|
| Sist endret | 22. sep. 2025 20:32 |
| Referanse | Geitasteinane |
Annonsene kan være mangelfulle i forhold til lovpålagt opplysningsplikt. Før bindende avtale inngås oppfordres interessenter til å innhente komplett informasjon fra meglerforetaket, selger eller utleier.
















