Bildegalleri

Hytten er oppført i 2023.
Inaktiv
Fjellsætra
Ny og lekker hytte med hems i Tudalen hyttefelt fra 2023. Nært Fjellsætra Skiarena. Helårsvei.
Prisantydning4 990 000 kr
- Omkostninger
- 145 340 kr
- Totalpris
- 5 135 340 kr
- Kommunale avg.
- 2 580 kr per år
- Eiendomsskatt
- 1 323 kr per år
Nøkkelinfo
- Beliggenhet
- På fjellet
- Boligtype
- Hytte
- Eieform
- Eier (Selveier)
- Internt bruksareal
- 89 m² (BRA-i)
- Bruksareal
- 89 m²
- Balkong/Terrasse
- 24 m² (TBA)
- Tomteareal
- 1 185 m² (eiet)
- Byggeår
- 2023
- Soverom
- 3
- Rom
- 7
- Sengeplasser
- 6
- Energimerking
- C - Rød
Fasiliteter
Balkong/Terrasse
Garasje/P-plass
Peis/Ildsted
Turterreng
Utsikt
Alpinanlegg
Bilvei frem
Innlagt strøm
Innlagt vann
Visning
Ta kontakt for å avtale visning.Husk å lese komplett salgsoppgave før visning. Bestill komplett, utskriftsvennlig salgsoppgave.
VisningspåmeldingOm boligen
Velkommen til denne fine hytta i Tudalen hyttefelt!
Eiendommen ligger like øst for Fjellsætra Skiarena, like nord for Nysætervatnet. Det er heilårsveg til tomta med egne parkeringsplasser i tillegg til felles parkering ved innkjøring til feltet.
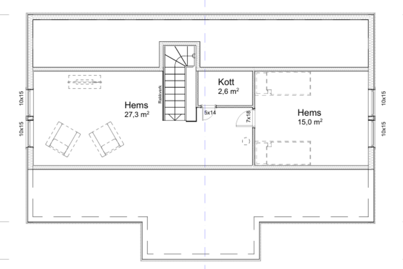
Innhold: 1.etg: Stue/kjøkken, 3 soverom, 2 bad, vaskerom, gang. Hems: Stue, stue 2, kott.
Eiendommens kvaliteter:
- Varmekabler på alle våtrom, vindfang og i stue.
- Vedovn på stue.
- Terrasse.
- Utvendig bod.
- Parkering.
- Stort hemsareal.
- 2 bad og separat vaskerom.
- Sorte kontaktpunkt og brytere.
- Ledspotter på kjøkken, og begge bad.
- Kort vei til FJellsætra Skiarena.
- Aubo kjøkkeninnredning.
- Laminatgulv original Elegant eik natur 1-stavs, type Alloc.
- Skyvedørsgarderobe på alle soverom i 1.etg.
Husk påmelding til visning.
Eiendommen ligger like øst for Fjellsætra Skiarena, like nord for Nysætervatnet. Det er heilårsveg til tomta med egne parkeringsplasser i tillegg til felles parkering ved innkjøring til feltet.
Innhold: 1.etg: Stue/kjøkken, 3 soverom, 2 bad, vaskerom, gang. Hems: Stue, stue 2, kott.
Eiendommens kvaliteter:
- Varmekabler på alle våtrom, vindfang og i stue.
- Vedovn på stue.
- Terrasse.
- Utvendig bod.
- Parkering.
- Stort hemsareal.
- 2 bad og separat vaskerom.
- Sorte kontaktpunkt og brytere.
- Ledspotter på kjøkken, og begge bad.
- Kort vei til FJellsætra Skiarena.
- Aubo kjøkkeninnredning.
- Laminatgulv original Elegant eik natur 1-stavs, type Alloc.
- Skyvedørsgarderobe på alle soverom i 1.etg.
Husk påmelding til visning.
NB: Knappen for å vise hele beskrivelsen har kun en visuell effekt.
NB: Knappen for å vise hele beskrivelsen har kun en visuell effekt.
Salgsoppgaven beskriver vesentlig og lovpålagt informasjon om eiendommen
Se komplett salgsoppgaveNyttige lenker
Nærområdet
PrivatMegleren Ålesund
Kun det beste på dine vegne
Annonseinformasjon
| FINN-kode | 396407379 |
|---|---|
| Sist endret | 14. jan. 2026 11:45 |
| Referanse | 313251005 |
Annonsene kan være mangelfulle i forhold til lovpålagt opplysningsplikt. Før bindende avtale inngås oppfordres interessenter til å innhente komplett informasjon fra meglerforetaket, selger eller utleier.















































