Bildegalleri

Møremegling ved Nils Arne Riise, Eiendomsmegler MNEF har gleden av å presentere denne flotte fjellhytta
Bondalseidet
BONDALSEIDET - Nyere, moderne hytte med nydelig utsikt - Store vindusflater - Innholdsrik hems med rom - ski inn/out
Prisantydning3 300 000 kr
- Omkostninger
- 83 850 kr
- Totalpris
- 3 383 850 kr
- Kommunale avg.
- 6 450 kr per år
- Eiendomsskatt
- 1 945 kr per år
- Verditakst
- 3 300 000 kr
Nøkkelinfo
- Beliggenhet
- På fjellet
- Boligtype
- Hytte
- Eieform
- Eier (Selveier)
- Internt bruksareal
- 74 m² (BRA-i)
- Bruksareal
- 78 m²
- Eksternt bruksareal
- 4 m² (BRA-e)
- Balkong/Terrasse
- 67 m² (TBA)
- Tomteareal
- 873 m² (eiet)
- Byggeår
- 2016
- Soverom
- 2
- Rom
- 3
- Energimerking
- C - Oransje
Fasiliteter
Innlagt vann
Alpinanlegg
Balkong/Terrasse
Barnevennlig
Bilvei frem
Bredbåndstilknytning
Garasje/P-plass
Golfbane
Hage
Peis/Ildsted
Rolig
Utsikt
Bademulighet
Fiskemulighet
Innlagt strøm
Offentlig vann/kloakk
Turterreng
Visning
PÅMELDING!
Husk å melde deg på visningen.
Trykk på lenken "Påmelding til visning", eller kontakt megler på telefon eller e-post. Vi tilbyr også privatvisninger utover oppsatt visningstidspunkt.
Dersom det er ingen påmeldte til visningen innen kl 16:00 dagen før annonsert visning vil denne bli avlyst.
Ta kontakt med megler for visning.
Husk å lese komplett salgsoppgave før visning. Bestill komplett, utskriftsvennlig salgsoppgave.
VisningspåmeldingOm boligen
Møremegling ved Nils Arne Riise, Eiendomsmegler MNEF, har gleden av å presentere flott fjellhytte ved skisenteret på Bondalseidet og med nærhet til fjord og alpelandskap.
Lys og moderne med åpen kjøkken/stue-løsning for sosiale stunder og romslig hemsetasje med soverom gir hytten 3 til 4 soverom.
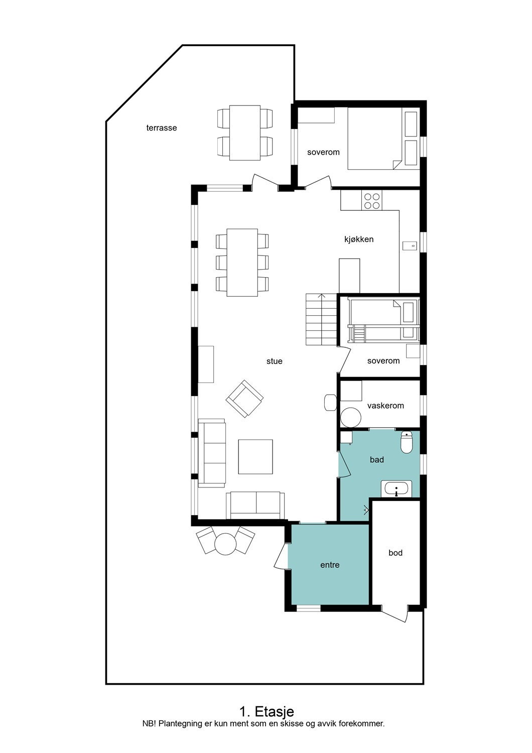
Stue m/kjøkken, bad, 2 stk soverom, vindfang og vaskerom/bod.
Hems med gang, soverom, soverom/loftstue
Utvendig bod og stor terrasse.
Om vinteren er Bondalseidet et populært sted for langrenn og alpint, og har et godt utviklet løypenett for både nybegynnere og erfarne skiløpere.
Flott utgangspunkt for Sunnmøres mest kjente fjelltopper, som Slogen, Saksa, Skårasalen, Dalegubben, Kolåstinden, samt majestetiske fjordene rundt Sæbø med utsikt og Fjordsauna.
Velkommen til visning - Husk påmelding
Lys og moderne med åpen kjøkken/stue-løsning for sosiale stunder og romslig hemsetasje med soverom gir hytten 3 til 4 soverom.
Stue m/kjøkken, bad, 2 stk soverom, vindfang og vaskerom/bod.
Hems med gang, soverom, soverom/loftstue
Utvendig bod og stor terrasse.
Om vinteren er Bondalseidet et populært sted for langrenn og alpint, og har et godt utviklet løypenett for både nybegynnere og erfarne skiløpere.
Flott utgangspunkt for Sunnmøres mest kjente fjelltopper, som Slogen, Saksa, Skårasalen, Dalegubben, Kolåstinden, samt majestetiske fjordene rundt Sæbø med utsikt og Fjordsauna.
Velkommen til visning - Husk påmelding
NB: Knappen for å vise hele beskrivelsen har kun en visuell effekt.
NB: Knappen for å vise hele beskrivelsen har kun en visuell effekt.
Salgsoppgaven beskriver vesentlig og lovpålagt informasjon om eiendommen
Se komplett salgsoppgaveNyttige lenker
Nærområdet
Møremegling avd. Ålesund
En del av Sparebanken Møre
Annonseinformasjon
| FINN-kode | 395520159 |
|---|---|
| Sist endret | 08. des. 2025 12:20 |
| Referanse | ME700.2539 |
Annonsene kan være mangelfulle i forhold til lovpålagt opplysningsplikt. Før bindende avtale inngås oppfordres interessenter til å innhente komplett informasjon fra meglerforetaket, selger eller utleier.












































